Buenos Aires / Argentina

inicio especiales sugerir noticia links newsletter  

especiales >  Escuela Infantil Santa Isabel, Zaragoza - España / Carroquino | Finner Arquitectos [28/11/07]

Escuela Infantil Santa Isabel, Zaragoza (España)

La Escuela Infantil de Santa Isabel se presenta como una pieza geométrica, optándose por una construcción in situ.

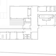
El proyecto se concibe en planta y en sección como dos grandes cajas de hormigón, vidrio y madera en cuyo interior se albergan por un lado el programa educativo (aulas, dormitorios y sala múltiple) y por otro los servicios (sala profesores, comedor, cocina e instalaciones).

Las cajas se cierran a norte protegiéndose de las inclemencias meteorológicas y la calle. Por el contrario, hacia el sur se abren mediante un paño de U-GLAS con carpintería de madera y vidrio buscando el soleamiento y la visión del patio de juego.

En la medianería entre aulas se plantean unos patios menores que ofreciendo áreas de juego acotadas, permiten una visión longitudinal del bloque de aulas.

El encofrado de la envolvente de hormigón, se realiza mediante tablas de madera de distinto formato marcando un despiece vertical en el cerramiento. Todo ello procura que la textura de la envolvente de hormigón no pierda la calidez de la madera del encofrado iniciando un juego con el U-GLAS.

El acceso principal del edificio se produce por la fachada oeste, (C/Iglesia), encaminándose a la franja de unión de las dos cajas (educativa y de servicios).

Los accesos de peatones al Centro Infantil y vehículos se encuentran diferenciados, siendo también independientes las circulaciones de niños y educadores, respecto a las de mantenimiento e instalaciones.

El proyecto procura la versatilidad y plurifuncionalidad de las aulas. Éstas se separan mediante sistemas de tabiquería móvil que permiten la unión de las dos aulas para niños de la misma edad en una, posibilitándose un programa educativo diferente y apto para más alumnos. A ésta disposición se han adaptado los cambiadores, aseos y dormitorios que funcionan bien para las aulas estándar y para la fusión de éstas en una.

Por otra parte, la cota 120 aplicada a las alturas, define en todas las estancias el límite entre el espacio adaptado al niño y el del adulto. Este mecanismo de la existencia de una línea de “nivel” permanente a 1,20 m será determinante en la vida del edificio fijando la posición “no al alcance de niños”.

La consideración del material hasta 1,20 m como rodapié, refleja con claridad los criterios de limpieza y fácil mantenimiento.

La madera tiene una presencia determinante en el juego compositivo, no solo por los distintos usos en carpinterías y suelos tanto interiores como exteriores, sino también en el recuerdo y ausencia que se dibuja en la textura de los muros de hormigón realizados con encofrado de tablas.

Interiormente la omnipresente tarima industrial flotante dota a los suelos de la calidez y resistencia necesaria en un pavimento para niños, orientandose a modo de guía longitudinal del edificio recibiendo y uniendo a su paso las carpinterías de madera interiores y exteriores en sus diversos formatos.

Exteriormente la linealidad del entablonado potencia los juegos compositivos a veces contraponiéndose, como en el entarimado de las puertas, otras trasponiendo el ritmo de la fachada al pavimento, del U-Glass a la tarima de exteriores, y otras dotando de vida al hormigón imprimiéndole una textura de vaciados que deletrea su método constructivo.

 

Ficha técnica

Escuela Infantil Santa Isabel

Proyecto: 2005

Construcción: 2006- 2007

Ubicación: calle de la Iglesia (Barrio de Sta Isabel) Zaragoza - España

Arquitectos: Carroquino | Finner Arquitectos - Santiago Carroquino Larraz, Hans Finner - Calle Arquitecto Lafiguera nº4 local, 50015 ZARAGOZA - ESPAÑA

Aparejadores: Juan José Vera Villamayor / Lara Gimenez Albero / Jerónimo Moya

Instalaciones: TRAGSA / Ingeniería Pilar Peco

Promotor: Ayuntamiento de Zaragoza, Suelo y Vivienda de Aragón

Contrata: UTE EASA-Ebrosa

Constructora principal: Agraconsa

Fotógrafo: Lluis Casals

 

Imágenes gentileza > Carroquino | Finner Arquitectos / Fotógrafo: Lluis Casals

hacer click en las imágenes para ampliarlas

Links >

Carroquino | Finner Arquitectos

Otras obras > Escuela Infantil Oliver, Zaragoza - España / Biblioteca y Centro de Convivencia, Zaragoza - España / Escuela en el Parque, Zaragoza - España

 

diseño y selección de contenidos >> Arq. A. Arcuri