Buenos Aires / Argentina

inicio especiales sugerir noticia links newsletter  

especiales >  Biblioteca y Centro de Convivencia, Zaragoza - España / Carroquino | Finner Arquitectos [25/05/09]

Biblioteca y Centro de Convivencia en Zaragoza (España)

La Biblioteca Benjamín Jarnés está ubicada en el Distrito Actur de Zaragoza y tiene actualmente una superficie insuficiente para desarrollar su función. A propuesta del Consejo de Patronato se propone la construcción de un nuevo equipamiento sociocultural, en el que se reubicará la Biblioteca.

Siguiendo criterios de racionalidad y economización de recursos materiales y medios humanos se acuerda la creación de un edificio que albergue un nuevo Centro de Convivencia para Mayores y la reubicación de la Biblioteca Benjamín Jarnés.

Emplazada en el angular de las calles Pedro Laín Entralgo y Gertrudis Gómez de Avellaneda, la Biblioteca se presenta ante su entorno inmediato como un elemento con vocación urbana. El Actur es un barrio de expansión de 70-80, con una anodina trama de inmensas avenidas y un desarrollo residencial acelerado. Por el contrario las especies arbóreas son de las de mayor porte de la ciudad. Es un barrio que desde el coche te invita a pasear pero que debido al binomio cierzo-sección vial no lo permite.

Con la misma idea se ha considerado que una construcción que genera confort ambiental no debe descuidar los criterios de excelencia medioambiental. Así pues se han utilizado otros mecanismos de arquitectura bioclimática: fachada ventilada, acumuladores solares en cubierta para calefacción y ACS, carpinterías con rotura de puente térmico, uso de maderas con documento de reforestación, control de soleamientos, etc.

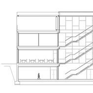
El Centro de Mayores y Biblioteca se conforma como una pieza de tres plantas y sótano. El proyecto ha surgido teniendo en cuenta la prefabricación como método de control y celeridad en la ejecución de la obra.

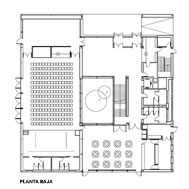
El programa se desarrolla en cuatro plantas. Se plantea un esquema de planta con patio central abierto que comunica las 4 plantas del edificio y que proporciona una gran iluminación y una relación entre los distintos espacios. Las zonas de servicios se han concentrado en la misma vertical del edificio con el objetivo de economizar y facilitar el paso vertical de las instalaciones.

Las estancias destinadas a personas mayores se han ubicado lo más próximas a la cota de la calle para facilitar el acceso a ellas. El acceso principal se produce a través de un porche situado en la esquina Norte de la Calle Pedro Laín Entralgo, lugar donde se produce la máxima apertura hacia la parcela. El vestíbulo se propone como un gran espacio pasante que comunica el interior del edificio con las dos calles laterales, provocando una prolongación del espacio público de la calle hacia el interior del edificio propuesto. El salón de actos se sitúa cercano al acceso, junto a una sala multiusos que ofrece la posibilidad de albergar actividades relacionadas con los eventos celebrados en el salón de actos y una posible utilización de este espacio tras los espectáculos.

La biblioteca se sitúa en la zona Norte del edificio, garantizando una correcta iluminación de este espacio. Ocupa parte de las plantas primera y segunda, relacionándolas entre sí con un gran espacio de doble altura que comunica las distintas áreas. Las zonas más transitadas se sitúan dentro de este gran espacio dejando en un lateral del edificio la sala de estudio que es la zona más silenciosa de la biblioteca.

Otra característica del proyecto es la posibilidad de abrir al público diferentes áreas sin que el resto interfiera en la circulación general. De esta manera, es posible la utilización del edificio con el cierre de las dependencias que no se desea utilizar.

El área del edificio destinada a personas mayores se dispone principalmente en planta baja, con el salón de actos; sótano, con el aula de dinámica y primera, con las aulas y talleres.

Las aulas y talleres se separan mediante sistemas de tabiquería móvil que permiten la unión de los dos en uno, posibilitando un espacio más amplio para más alumnos.

En los acabados exteriores se han seguido los criterios antes citados cubierta plana, fachada ventilada con acabado de tableros aglomerados de madera-cemento, tipo VIROC de acabado natural y carpinterías de acero y madera con rotura de puente térmico.

El mínimo número de huecos aumenta el control del perímetro. En los patios, protegidos del ambiente exterior se permite la opción contraria con carpinterías de muro cortina con rotura de puente térmico Jansen y vidrios bajo-emisivos de control solar.

La biblioteca trata de conciliar al paseante-usuario con el tejido. El edificio seduce con un juego de vistas cruzadas en un aparente prisma ciego. El emplazamiento nos ofrecía un retranqueo de alineación que hemos canalizado en la entrada atravesando visualmente la planta aun sin entrar en ella. Se regala una pausa en el recorrido y una invitación a entrar. Interiormente el edificio es muy sencillo comprensible en un flash a través del patio. El programa de biblioteca y centro de ocio para mayores se ordena en un tetris de cuatro plantas entorno al vacío central aprovechando fachadas y orientaciones. De dentro hacia fuera se generan panorámicas con la tutela del edificio hacia los parking y aprovechando el porte de las especies cercanas.


Ficha técnica

Biblioteca y Centro de Mayores Actur Norte

Proyecto: 2005

Construcción: 2006- 2008

Ubicación: Calle Pedro Laín Entralgo y Gertrudis Gomez de Avellaneda, Zaragoza - España

Arquitectos: Carroquino | Finner Arquitectos - Santiago Carroquino Larraz, Hans Finner - Calle Arquitecto Lafiguera nº4 local, 50015 Zaragoza - España / Maria José Iturralde Navarro (arq. municipal, co-autor proyecto)

Aparejadores: Juan José Vera Villamayor / Jeronimo Moya / Lara Gimenez Albero

Instalaciones: TRAGSA / Ingeniería Pilar Peco

Promotor: Ayuntamiento de Zaragoza, Suelo y Vivienda de Aragón

Contrata: UTE EASA-Ebrosa

 

Imágenes gentileza > Carroquino | Finner Arquitectos / Fotógrafo: Jesús Granada

hacer click en las imágenes para ampliarlas

Links >

Carroquino | Finner Arquitectos

Otras obras > Escuela Infantil Santa Isabel, Zaragoza - España / Escuela Infantil Oliver, Zaragoza - España / Escuela en el Parque, Zaragoza - España

 

diseño y selección de contenidos >> Arq. A. Arcuri