Buenos Aires / Argentina

inicio especiales sugerir noticia links newsletter  

especiales >  Escuela Infantil Oliver, Zaragoza - España / Carroquino | Finner Arquitectos [18/08/08]

Escuela Infantil Oliver, Zaragoza (España)

Enmarcada en las actuaciones del Plan de Barrios del Ayuntamiento y emplazada en la calle Antonio Leyva de Zaragoza y anexa a una dolina hoy inactiva, la Escuela Infantil Oliver se presenta ante su entorno inmediato como un elemento urbanizador.

La escala de los bloques de viviendas con los que linda, representantes de la acelerada construcción residencial con una altura baja+8, convierten el equipamiento, desarrollado únicamente en planta baja, en parte del mobiliario urbano; es en si la continuación del área verde contempla el plan urbanístico para la dolina.

El efecto báscula de la orografía generado por la depresión del parque reclamaba una contraposición volumétrica. La idea generatriz es la transposición en espacio construido de un tepe. El terreno se extrusiona por la acción del jardinero, mostrando su superficie verde y la tierra oscura y viva bajo ella.

El contraste volumétrico, estudiado en fase de proyecto reveló la cubierta como la mayor superficie visible de la edificación. Se vislumbra por tanto la continuidad entre cubierta ajardinada y parque como elementos generadores de calidad visual y ambiental ante la construcción de bloque en altura.

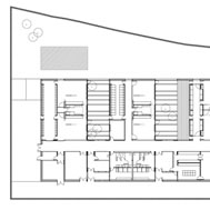
La solución en planta, se solventa en la relación epacios servidos y servidores intentando dar fluidez al conjunto e interés la volumetría.

El programa educativo orientado al parque se resuelve en cuatro módulos: sala multiusos, 4-12 meses, 12-24 y 24-36, adheridos a respectivos patios. Como unión de todos y barrera ante las viviendas se sitúa la batería de espacios anexos, que permiten el correcto funcionamiento del equipamiento.

Para unificar el volumen se recurre a celosías de madera, subrayando el límite construido.

El edificio procura la versatilidad de las aulas separando estas por tabiquería móvil que permite la unión de los pares de edad en una única, posibilitando un programa educativo diferente. A esta disposición se adaptan cambiadores, aseos y dormitorios que funcionan para el estándar y la fusión.

Si bien la escuela es una pieza orgánica, no abandona la prefabricación como método de control y rapidez. Todo el proyecto se modula en factores de 30 cm, carpinterías, fachada, acabados, alturas, mobiliario... La cota 120 aplicada a las alturas define en toda estancia un "nivel" permanente fijando la posición "no al alcance de los niños".

Los acabados interiores se diferencian al situarse inferior o superiormente al nivel 1,20 m. La tabiquería base es doble placa pladur a dos caras (15+15+90+15+15) aplicándose sobre ella un acabado de vidrio de seguridad 3+3 mm (se considera el vidrio como una gran baldosa, fácilmente limpiable y no rompible) en el espacio niños.

En las estancias húmedas (aseos, vestuarios, cocina, almacenes, etc) se eleva la cota 120 hasta la 210 (120+90) definiendo el perímetro mojable en el cual se ejecuta un aplacado de gres de 10 x 10 cm.

Igualmente se diseñan diferentes encuentros con las carpinterías en los cuales la existencia de la junta de cambio de material se hace evidente y necesaria. La práctica constructiva auto impuesta es la sinceridad con los materiales sin por ello olvidarnos de las necesidades de estos.

La solución constructiva se plantea desde el ahorro energético. La fachada perimetral es ventilada, pero realizada con sistemas de junta seca.

De exterior a interior se compone de placas de hormigón prensado, cámara de 8 cm, placa aislamiento wallmate, lamina impermeabilizante fábrica de bloque de hormigón aislante aligerado YTONG y acabado interior de trasdosado semidirecto pladur con doble placa. El mínimo número de huecos aumenta el control del perímetro. En los patios, protegidos del ambiente exterior se permite la opción contraria con carpinterías de muro cortina con rotura de puente térmico Jansen y vidrios bajo-emisivos de control solar.

Siendo la mayor fachada la cubierta, se opta en ella por el sistema de cubierta vegetal de Gisconatur, ejecutándose esta sobre una cubierta tipo deck. El resultado es una cubierta vegetal ligera que no supera los 150 kg/m2 aportando todos los beneficios térmicos del acabado natural. Tambien en cubierta se colocan placas solares para acs, habiéndose calculado la instalación de calefacción con el aporte combinado de estas y caldera de gas.

En obra los problemas no aparecieron por indefinición sino más bien por lo contrario. Al haber estudiado a escala 1:5 la totalidad del volumen, la tendencia de las constructoras por soluciones historicas colisionaba con nuestra investigación previa de soluciones, si bien habituales, aun no asumidas en nuestra ciudad. Por el contrario tras sucesivos diálogos con las subcontratas obtuvimos, en muchos casos y en proporción a la sensibilidad de cada gremio con su material, la adecuada ejecución a nuestra propuesta. Del proceso mutuo de adaptación habla el resultado final.

Proyecto y obra los afrontamos siendo conscientes de la especial sensibilidad con que deben concebirse entornos cuyos principales usuarios serán niños de temprana edad. El resultado son espacios austeros, muy luminosos y fluidos, acogedores y protectores. La imagen, en cierto modo dura, desde el exterior contrasta con la materialización de la luz en el interior.


The site is situated in a typical spanish present-day urban expansion surrounded by uniformed eight storey high residential buildings. Our small scale intervention is dominated by a green sloping roof which relates to the topographie of the adjacent park. In its contrast to the neighbouring buildings it orientates itself by the dynamic of the direct surrounding.

The concept is built up on two focus points. On one hand, there is the crucial connections to the landscape which does not only give the building its character but also strengthens the area interactively. On the other hand, it concentrates on its function as a place for children and provides an individual approach for the different age groups and their special needs. Consequently a variety of volumes are combined underneath a multiple folded roof wherein spaces offer response to different usage. There are wide open areas used for festivities and fairs as well as bespoke low areas specifically for the toddlers.

The single storey volume is organised within a comb-shaped building layout. Therein four tracts are divided by grassy shaded playgrounds and connected by a service and storage space in the rear.

The kindergarden is an introverted building with only few openings in the external walls cladded with blackened artificial stone.


Ficha técnica

Escuela Infantil Oliver

Proyecto: 2005

Construcción: 2006- 2007

Ubicación: calle Antonio Leyva s/n, Zaragoza - España

Arquitectos: Carroquino | Finner Arquitectos - Santiago Carroquino Larraz, Hans Finner - Calle Arquitecto Lafiguera nº4 local, 50015 Zaragoza - España / Maria José Iturralde Navarro (arq. municipal, co-autor proyecto)

Aparejadores: Juan José Vera Villamayor / Jeronimo Moya / Lara Gimenez Albero

Instalaciones: TRAGSA / Ingeniería Pilar Peco

Promotor: Ayuntamiento de Zaragoza, Suelo y Vivienda de Aragón

Contrata: UTE EASA-Ebrosa

Constructora principal: Agraconsa

Fotógrafos: (cubierta) Jesus Granada / (resto) Roland Halbe

 

Imágenes gentileza > Carroquino | Finner Arquitectos / Fotógrafos: Jesus Granada / Roland Halbe

hacer click en las imágenes para ampliarlas

Links >

Carroquino | Finner Arquitectos

Otras obras > Escuela Infantil Santa Isabel, Zaragoza - España / Biblioteca y Centro de Convivencia, Zaragoza - España / Escuela en el Parque, Zaragoza - España

 

diseño y selección de contenidos >> Arq. A. Arcuri