Buenos Aires / Argentina

inicio especiales sugerir noticia links newsletter  

especiales >  Escuela en el Parque, Zaragoza - España / Santiago Carroquino, Ignacio Grávalos Lacambra y Patrizia Di Monte  [27/12/10]

Escuela en el Parque, Zaragoza - España

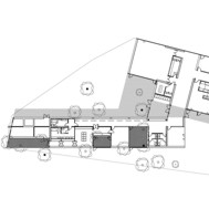
La implantación de la escuela en el parque (dentro del parque de San Pablo) supone la materialización de una dotación largamente demandada y responde a la voluntad de revitalizar las riberas del Ebro mediante equipamientos públicos. El edificio es sensible a su entorno, inmerso en un espacio verde con una arboleda cambiante según las estaciones. La Escuela articula sus piezas y crea patios que le permiten incorporar los árboles al edificio. El edificio refleja los dos frentes existentes en la parcela, uno de carácter más urbano, perteneciente al Paseo Echegaray Caballero, y otro más orgánico, el de las riberas, relacionado con el parque y el río. En este sentido, el edificio muestra un perfil plano en su frente urbano, y presenta un perfil irregular a medida que se adentra en el parque y se aproxima al río. La escala de los bloques de viviendas del paseo Echegaray y Caballero así como su situación en depresión frente a la cota del paseo, la próxima plaza Europa o la terraza mirador de Ingeniería de Montes, hacen de la cubierta la superficie más visible de la edificación y una de las fachadas importantes de esta. Se adopta la cubierta vegetal como piel superior, beneficiándose no solo de sus cualidades estéticas sino también de las mejoras térmicas y acústicas que genera. Las fachadas que generan los volúmenes responden con claridad a su contenido y posibilidad interior, cerrando el bloque de servicios así como la zona de dormitorios y abriéndose en toda su extensión el área de aulas al parque. La fachada de las aulas, orientada a la zona verde, presenta una composición abstracta, ordenada mediante bandas verticales y perforada mediante huecos rasgados y estrechos (como troncos de árboles), proponiendo mantener una relación “fondo verde-tronco” en sintonía con su entorno. Desde el interior estos huecos verticales recrearán una percepción de la luz y del espacio muy parecida a la de un bosque natural. Los materiales de fachada permiten tamizar la luz, que entra filtrada por las láminas de policarbonato en colores verdes permitiendo un nivel de iluminación interior máximo y evitando el deslumbramiento. El edificio dispone las aulas a este por sus visuales privilegiadas, evitando los problemas de asoleamiento de la orientación oeste. Los huecos se abren al máximo en esta fachada este y tienen su expresión mínima en su fachada oeste para cerrar las vistas más duras a la plaza Europa. En el lado oeste se disponen los dormitorios donde se situarán las cunas. El muro es de hormigón visto perforado por unos huecos circulares. La luz que entra por estos huecos se reflejará en las paredes interiores ofreciendo a los niños un juego natural según las horas del día. El edificio cede el protagonismo absoluto a los niños. Las aulas disponen de diversas proporciones según las diferentes etapas, lo que permite establecer diferentes apropiaciones del espacio según los diversos cursos. Todas las medidas están basadas en ellos, disponiendo de ventanas inferiores fijas, que pertenecen al “mundo de los niños”, y una serie de ventanas altas practicables, más relacionadas con el mundo adulto. Otra característica del proyecto es la versatilidad y plurifuncionalidad de las aulas. Estas se separan mediante sistemas de tabiquería móvil que permiten la unión de las dos aulas de misma edad en una, posibilitando un programa educativo diferente y apto para más alumnos. A esta disposición se han adaptado los cambiadores, aseos y dormitorios que funcionan bien para las aulas estándar como para la fusión de estas en una. Se orienta al futuro parque resolviéndose en cuatro módulos: sala multiusos, lactantes (4-12 meses), alumnos 12-24 meses y alumnos 24-36 meses. Articulando la entrada como unión de todos ellos y actuando de barrera respecto a los bloques de viviendas se sitúa la batería de espacios anexos, oficinas e instalaciones que permiten el correcto funcionamiento de la escuela. Se han utilizado diversos mecanismos de arquitectura bioclimática: muros de doble inercia térmica (interior-exterior), acumuladores solares en cubierta para calefacción y ACS, carpinterías con rotura de puente térmico, control de soleamientos, etc. En toda la redacción de este proyecto se ha querido jugar con el romántico recuerdo de nuestra infancia. El cuento de Pinocho y su pasaje en el interior de la ballena, han sido el leiv motive de la composición volumétrica


Ficha técnica

Escuela en el Parque

De la realización:

Proyecto: 2009

Construcción: 2009- 2010

Inauguración: 2010

Ubicación: Pº Echegaray y Caballero, parque de San Pablo, (Ribera del Ebro) Zaragoza, España

Denominación: Escuela Infantil en el Casco histórico

De la autoría:

Autores proyecto: Santiago Carroquino, Ignacio Grávalos Lacambra, Patrizia Di Monte

Dirección de obra: Santiago Carroquino, Ignacio Grávalos Lacambra, Patrizia Di Monte

Arq. Colaborador: Marta Quintilla

De los agentes:

Aparejadores: Víctor Martos, Ignacio Uriol, Cristina Navarro

Instalaciones: Raúl de la Mata

Promotor: Ayuntamiento de Zaragoza, Suelo y Vivienda de Aragón

Contrata: Construcciones Enrique De Luis (CELSA)

 

Imágenes gentileza > santiago carroquino arquitectos, gravalosdimonte arquitectos / Fotógrafo: Jesús Granada

hacer click en las imágenes para ampliarlas

Links >

santiago carroquino | arquitectos

gravalosdimonte arquitectos

Otras obras > Escuela Infantil Santa Isabel, Zaragoza - España / Escuela Infantil Oliver, Zaragoza - España / Biblioteca y Centro de Convivencia, Zaragoza - España

 

diseño y selección de contenidos >> Arq. A. Arcuri