Buenos Aires / Argentina

inicio especiales sugerir noticia links newsletter  

especiales > Colin's House, Girona (España) / ARCHIKUBIK - Marc Chalamanch – Miquel Lacasta – Carmen Santana [29/03/07]

COLIN’S HOUSE

VIVIENDA UNIFAMILIAR EN AIGUA XELIDA, GIRONA A DIEZ GRADOS SUR DE LONDRES

Este proyecto es mucho más fácil de explicar que de entender. En arquitectura esto pasa muchas veces. La lógica del proyecto atiende a situaciones inesperadas, vertebradas como si fuera un hilo narrativo, una especie de corto cinematográfico. Una pequeña historia que en este caso acaba con final feliz; la casa por fin está acabada.

Existe una serie de requisitos previos en este proyecto fundamentales para entender el mismo. En según que universidades a eso se le llama el “Contexto”. En nuestro caso el contexto será el verdadero hilo narrativo del proyecto, la escritura con la que confeccionaremos el guión de la vivienda. Un solar “con_texto” implícito. Nuestro trabajo finalmente consistirá en estructurar el texto, la narración del lugar.

La localización del proyecto encierra casi directamente la solución al mismo.

1.- Solar alargado de 900m2. Por 1 lado linda a otra propiedad. Por los lados cortos linda con calles. Por el otro lado linda a un paso peatonal de 3mts. Que a su vez linda con un bosque de pinos protegidos que a su vez linda con el mar. Por suerte este último linde esta orientado a sur.

2.- La separación a lindes es la habitual en este tipo de proyectos excepto en el linde al paso peatonal: No existe separación.

3.- Sol, vistas y geometría están aliados en el mismo lado, el linde largo sobre el que descansa el paso peatonal.

4.- El Solar tiene una pendiente considerable aunque bastante constante. Aproximadamente un 10%.

5.- La normativa nos indica la idoneidad de una solución en cubierta inclinada.

6.- El cliente se involucra con el proyecto mediante un dossier espléndido de referencias “a priori”. Detectamos rápidamente que domina la cultura de la imagen, que responde a un perfil marcadamente hedonista. El vive y trabaja en Londres. Es inglés.

 

La descripción del proyecto es prácticamente la solución del mismo. No necesitamos en este caso de grandes estructuras conceptuales para soportar nuestras decisiones. La arquitectura será muy cruda, sin amaneramientos, sin salsas enmascaradoras. El solar es el proyecto... y poco más. No queremos intervenir más allá. El proyecto viene a ser como la receta del Sushi, ordenes tácticas, en vez de construcción de procesos. La única condición es ser estricto con las decisiones. No podemos dejarnos llevar por la autocomplacencia.

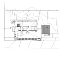
A.- Acceso a la cota –0.60 desde la calle superior. Entrada por garaje.

B.-La sala de estar se abre al paisaje, las vistas, el mar y el sol precisamente donde tenemos el paso peatonal. Por un lado haremos una gran ventana de 13x3 mts. Por otro lado deberemos elevar la cota de la sala de estar para evitar las miradas indiscretas.

C.- Un pasillo-escalera divide la vivienda en dos. Esta escalera de grandes rellanos permite subir 1,50mts hasta el nivel de la sala de estar y desde los rellanos se accede a las habitaciones en planta baja.

D.- Este pasillo-escalera no puede ser oscuro. Abriremos un patio en cada habitación. Serán fuente de luz natural, y crearán una fachada interior a la sala. Desde las habitaciones veremos los pinos.

E.- La vivienda se estructura en dos cuerpos: Sala de estar y cocina con la gran ventana y cuerpo de habitaciones con los baños. La fachada exterior de las habitaciones da a norte. Haremos unas ventanas a la altura del forjado pero será una gran pared ciega con apenas 4 ventanas alargadas. Como en el ayuntamiento prefieren cubierta inclinada cada cuerpo tendrá una cubierta inclinada hacia el interior de los patios. Cada cuerpo tiene su lógica estructural; El volumen de la sala de estar será de estructura metálica, cubierta de chapa, será un volumen ligero. Para la gran ventana hacemos una jácena metálica para evitar cualquier pilar en la abertura de 13x3mts. El otro cuerpo será pesado, forjados unidireccionales de hormigón y cerramientos en termoarcilla. El volumen se protege del Norte, acoge las habitaciones. Una parte de la casa esta expuesta, la otra esta recluida.

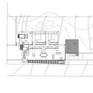
F.- Ahora toca decidir donde colocamos la piscina. Está claro que la piscina también es la casa. Debe de estar totalmente integrada en la casa. La subimos de cota respecto al terreno y la bajamos un poco desde la cota de sala de estar. Aún así la piscina vuela. El mar está muy cerca por lo que la piscina será pequeña. Decidimos finalmente hacer un único carril siguiendo el lado largo del solar, al igual que la casa. Es una piscina de 20mtsx2mts. Debido a la inclinación del solar la piscina quedara exenta por todas las caras. Una U de hormigón, una gran jácena de agua acabada con un cristal. La piscina queda suspendida en el aire, no hay más remedio.

La casa una vez explicada se entiende. Ahora si. Cada impedimento provoca una decisión arquitectónica. La arquitectura es tomar decisiones, apenas poco más. Una decisión al día es suficiente.

Ahora podemos hablar de naturalezas artificiales, de proyectos reactivos, de indisciplinas, de lógicas extremas. O también de sensaciones, imágenes poéticas y fenomenologías. Pero preferimos dejar estos temas para la universidad, para las conferencias o para clientes con ganas de escuchar.

Este proyecto para nosotros es sencillamente arquitectura cruda.

 

ARCHIKUBIK - Marc Chalamanch – Miquel Lacasta – Carmen Santana - www.archikubik.com
c. luís antunez nº6 – Barcelona 08006 - +34 93 415 2762 tel - +34 93 415 2440 fax. info[at]archikubik.com

Colaboradores: Garazi Burgoa – Marta Jiménez – Antonia Genovart – Dagmar Ross – Marcus Blum – Bjorn Stürmer

 

Imágenes gentileza > ARCHIKUBIK

hacer click en las imágenes para ampliarlas

ampliar imagen

ampliar imagen

ampliar imagen

ampliar imagen

ampliar imagen ampliar imagen ampliar imagen ampliar imagen
ampliar imagen ampliar imagen ampliar imagen ampliar imagen

Links >

ARCHIKUBIK

Otras obras > Casa H - Sant Andreu de Llavaneras (España) / Concurso de ideas para el centro de la tercera edad 'Sandaru'  Barcelona / Nueva casa matriz para el Banco de Albania / Viviendas Coll i Vehí, Barcelona / Casa P3, Barcelona / Less tha a Tower, Barcelona / Aparcamiento 'Saint Roch' - Montpellier, Francia

 

diseño y selección de contenidos >> Arq. A. Arcuri