Buenos Aires / Argentina

inicio especiales sugerir noticia links newsletter  

especiales > Casa P3, Barcelona / ARCHIKUBIK [28/10/08]

Casa P3, Sant Just Desvern - Barcelona

Hablar de arquitectura puede ser relatar los ejes del espacio, las coordenadas que configuran un volumen. X,Y,Z. Si pudiéramos explicar cada decisión tomada según la dirección de los ejes tendríamos la letra de una partitura espacial. Es un modo de hablar.

Eje X – Dirección Norte/Sur – Paisajes

La edificación se sitúa en lo alto de una colina, de hecho sobre la misma carena de la misma. El sol y el paisaje a Sur, la calle y el frio a Norte. La decisión sobre el eje X es banal, abrirse al paisaje y ocultarse del norte.

La fachada Sur es prácticamente vidriada. Las piezas principales se abalanzan sobre las vistas y el sol. La decisión no es arriesgada, sencillamente se fundamenta de la buenas condiciones iniciales del solar. En esta fachada, prolongando la sala de estar aparece una terraza mirador con un a pequeña piscina.

La fachada Norte es un plano de piedra flotante. Muro de lamas matemáticamente dispuestas de manera que la repetición de las mismas se estructure desde la diferencia. De hecho hay tres anchos de lamas, aleatoriamente dispuestos de manera que "entreguen" exactamente con los accidentes de las fachadas (ventanas, porticones, etc). Piedras que no pesan, como si de piedra pómez fuera construida.

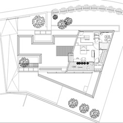
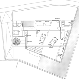
Eje Y – Dirección Este/Oeste – Pliegue

Uno de los retos a resolver en términos de programa era el hecho de construir el máximo en planta baja y retirar toda la edificación en Planta Primera y Segunda sobre la fachada Este. Esta restricción inicial nos obligaba a resolver la transición de una altura a tres alturas. El volumen necesariamente se convertía en una pieza del Tetris. Para armonizar ambas alturas, recurrimos a un vector quebrado, explicito en el perfil metálico que recorre ambas fachadas, a modo de plano plegado sobre sí mismo. Este plano imaginario rompe totalmente la lógica rígida de la entrega entre ambas alturas y provoca una lectura dinámica a lo largo del Eje Y. En esta dirección las paredes macizas se construyen con tocho castellano elaborando una piel cerámica y de cristal. El tramo de cubierta de Planta Baja no ocupado por las plantas superiores se aprovecha para realizar una cubierta ecológica con plantas aromáticas a modo de jardín elevado.

Eje Z – Dirección Arriba/Abajo – Patios

EL macizo edificado descrito está atravesado por 3 patios que estructuran las circulaciones interiores y enfatizan diferentes aspectos de la vivienda. El primer patio a Norte da la bienvenida, para llegar a la casa hay que atravesar el patio por un puente de madera y refuerza el ritual de entrar mediante una aproximación interior/exterior del volumen.

El patio central es un foco de luz natural. Visualmente relaciona el comedor y la cocina y “hace” transparente la masa del espacio edificado. Sobre este patio se organizan las circulaciones interiores en un bucle comedor, estar biblioteca, cocina y entrada.

El tercer patio es una hendidura en la fachada, un remate del testero y un homenaje al WALDEN7 de Ricardo Bofill.

Los patios se han aprovechado como grandes tiestos (el primero y el tercero) o como espacio dentro/fuera (en el segundo). Estos agujeros provocan la aparición de la luz natural en todas las estancias de la Planta Baja y aligeran por contraste, la materialidad de la vivienda.

Cualquier ejercicio de arquitectura parte de un complejo sistema de indeterminaciones hacia una arquitectura única, una sola arquitectura posible, una obra determinada por su condición física; material, volumen, vacios, flujos, veladuras...

Por ello pensamos que hacer arquitectura es tomar decisiones. Si fuimos capaces de tomar decisiones concretas sobre los tres ejes X,Y,Z del espacio pensamos que fuimos capaces de determinar una realidad tectónica.

Este es un proyecto, un edificio que plantea y en la medida de lo posible vehicula como solución, algunos de los aspectos esenciales de nuestra arquitectura; pliegues, diferencia y repetición y contundencia tectónica. Usados como mecanismos de avance, como herramientas de precisión, para filtrar entre lo indeterminado una determinación necesaria.


Autores: ARCHIKUBIK Marc Chalamanch - Miquel Lacasta - Carmen Santana - www.archikubik.com / Blog Archikubik

Colaboradores: Antonia Genovart, Eskubi – Turró Arquitectes - Cálculo Estructuras

Constructora: SAPIC


Imágenes gentileza > ARCHIKUBIK

hacer click en las imágenes para ampliarlas

ampliar imagen

ampliar imagen ampliar imagen
ampliar imagen ampliar imagen ampliar imagen
ampliar imagen ampliar imagen ampliar imagen

Links >

ARCHIKUBIK

Blog Archikubik

Otras obras > Colin's House, Girona (España) / Casa H - Sant Andreu de Llavaneras (España) / Concurso de ideas para el centro de la tercera edad 'Sandaru'  Barcelona / Nueva casa matriz para el Banco de Albania / Viviendas Coll i Vehí, Barcelona / Less tha a Tower, Barcelona / Aparcamiento 'Saint Roch' - Montpellier, Francia

 

diseño y selección de contenidos >> Arq. A. Arcuri