|
Buenos Aires / Argentina |
| especiales > Zamet Centre, Rijeka - Croacia / 3LHD architects [02/11/09] |
|
|
| |
|
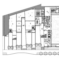
Zamet Centre, Rijeka - Croatia Situated in Rijeka’s quarter Zamet, the new Zamet Centre in complete size of 16830 m2 hosts various facilities: sports hall with max 2380 seats, local community offices, library, 13 retail and service spaces and a garage with 250 parking spaces. One third of the sports hall’s volume is cut in the ground, and the rest of the Centre is fully fitted into the surrounding landscape. The building’s main architectural element are ribbon-like linear stripes stretching over the site in a north-south direction, functioning at the same time as an architectural design element of the object and as a zoning element which forms a public square and a link between the park on the north and school and B. Vidas street on the south. The stripes were inspired by “gromača”, a type of rocks specific to Rijeka, which the centre artificially reinterprets by colour and shape. They are paved with 51.000 ceramic tiles designed by 3LHD and manufactured specially for the centre. The steel construction, girder span of 55 meters and their varying height allow the natural light illumination of the sports hall. The hall has been designed in accordance with the latest world sports standards for major international sports competitions. The concept is based on flexibility of space. Playground size is 46 x 44 meters, for two handball courts. The hall contains all the supporting facilities for professional training and competition, and the auditorium designed as a system of telescopic stands enables the transformation for everyday use as well as for other activities such as concerts, conferences and congresses. Selected interior materials - wood and acoustic panels, suggests that the hall is a large living room for athletes. The main access to the hall and other facilities is located west of the hall from the public square and from the underground garage. Project name: Zamet Centre Program: public, cultural, business, sport Status: completed Project year: 2004 Project start date: 2004 Project end date: 01.2008 Construction start date: 21.12.2007 Construction end date: 10.09.2009 Address: B. Vidas Street, Zamet City: Rijeka Country: Croatia Geolocation: 45-20-39 N, 14-24-0 E Site area (m2): 12289 Size (m2): 16830 Volume (m3): 88075 Footprint (m2): 4724 Author: 3LHD Project team: Sasa Begovic, Tatjana Grozdanic Begovic, Marko Dabrovic, Silvije Novak, Paula Kukuljica, Zvonimir Marcic, Leon Lazaneo, Eugen Popovic, Nives Krsnik Rister, Andrea Vukojic Colaborators: Mateo Bilus, Building Physics / Details; Berislav Medic, UPI-2M, Structural Engineering; Branko Čorko, IPZ-elektroinzenjering 22, Electrical Engineering; Mario Lukenda, Termoinzenjering-projektiranje d.o.o., HVAC; Slavko Simunović, HIT PROJEKT, MEP Engineering - Plumbing; Nenad Semenov, PASTOR, sprinkler installation; Rok Pietri, LIFT MODUS, elevators; Zeljko Arbanas, IGH PC Rijeka, diaphragm wall; Zeljko Stipković, Fire Protection; Ivica Babic, Zavod za zastitu na radu Rijeka, Safety at Work; Marija Babojelic, Special Consultant - Cost Consultant; Ines Hrdalo, Landscape Architect; Damir Bralić, Lana Cavar i Narcisa Vukojevic, signage and environmental graphics design; Nikola Durek, "Typonine Zamet" typeface design Main contractor: GP Krk Imágenes gentileza > 3LHD architects hacer click en las imágenes para ampliarlas |
![]() |
![]() |
![]() |
![]() |
![]() |
![]() |
![]() |
![]() |
![]() |
![]() |
![]() |
![]() |
|
Links > Otras obras > House K, Zagreb - Croacia / House V, Zagreb - Croacia |
|||
|
|
|
diseño y selección de contenidos >> Arq. A.
Arcuri
|
|
|
|
|
|