Buenos Aires / Argentina

inicio especiales sugerir noticia links newsletter  

especiales > Lisboa 7, Colonia Juarez - México DF / at.103 - Julio Amezcua + Francisco Pardo [05/07/10]

Lisboa 7, México DF - at. 103

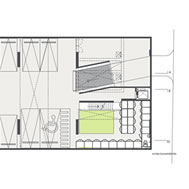
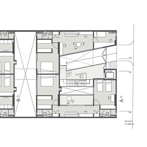
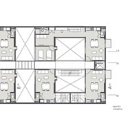
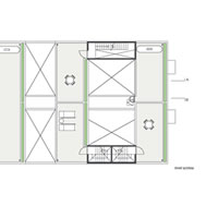
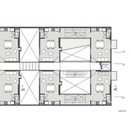
El nuevo corredor reforma propone un esquema de re-densificación en la zona: Departamentos de lujo, m2 de oficinas tipo A y comercio. Pero, ¿qué pasa con lo que queda detrás? (a) Las cuadras posteriores al corredor en las diferentes colonias como: Juárez, Tabacalera, San Rafael y Cuauhtémoc, serán afectadas por estos desarrollos, éstas cuadras servirán naturalmente como zonas de apoyo y servicios del lujoso corredor. Para evitar la gentrificación en la zona y aprovechar mayor los espacios que quedan en estas colonias o los huecos que existen desde los terremotos de la ultima mitad del siglo 20, es necesario desarrollar vivienda de nivel bajo y medio, que sirva de contrapeso al Paseo de la Reforma y ayude a evitar recorridos largos de la gente con ingresos menores que trabajarán en estos nuevos edificios. Estas cuadras, deben de verse como parte de este esquema formando una simbiosis, alimentándose mutuamente en vivienda y servicios, unos de lujo y otros de necesidades básicas. El proyecto logró identificar un conjunto de variables de diseño permitiendo que la vivienda se valorice en el tiempo, y la zona mejore integrándose al tejido social existente. Se desarrolló un edificio lo mas denso posible que permitiera financiar el predio que anteriormente era un estacionamiento. El edificio funciona por medio de seis placas de 3.60 metros de ancho y seis patios de iluminación para dar una máxima superficie de fachada oriente-poniente la cual nos permite ventilaciones cruzadas y mejor iluminación a los departamentos mas bajos. Todos los espacios habitables ven al poniente, la fachada oriente es cerrada casi en su totalidad para permitir la privacidad de los espacios (d). En vivienda saturada es importante la calidad de los espacios, iluminación y vistas, la fachada poniente es un jardín vertical con plantas que cuelgan de las terrazas. El proyecto tiene 60 módulos (e) de 36m2 (medida mínima de vivienda en México). En este ejercicio se mezclaron 4 tipos de vivienda, desde 36 m2 (1módulo) hasta 144m2 (4 módulos) (f) dando la oportunidad de incluir créditos para la vivienda mínima o para vivienda media. El edificio de 5 pisos tiene solo dos pasillos de circulaciones horizontales, en el piso 2 y 4, se accede a las unidades en estos pisos que tienen 2 (g) y hasta 3 pisos dependiendo de los módulos de cada unidad, la unidad es habitada como pequeñas casas verticales. Cada módulo es de planta libre y tiene un muro húmedo para servicios como cocinas y baños (h), los cuales se pueden programar dependiendo de las necesidades de cada usuario. Los materiales que se utilizan son materiales que no necesitan de maquillaje adicional, concreto y block de cemento aparente.

 

Mexico City’s most important avenue, Reforma, is going under mayor changes of density including: Luxury apartments, retail and office spaces. The question is, what happens with what’s left behind? The adjacent blocks in the different neighborhoods will be affected by these new developments, and will act naturally as service areas for this new corridor. In order to avoid massive gentrification in the area and to take advantage of the empty sites left from the earthquakes, its important to develop low and middle income housing as a counter balance to Reforma´s developments and avoid long commutes of people with lower incomes that work in this new area. These blocks have to serve as a symbiotic system all together, feeding from each other and not competing.

Our Project was able to identify a series of design variables that allow the housing to gain value through time, and allow it to form a part of the existing social fabric. We developed a dense building that is designed by cutting the maximum density allowed into six volumes. Each volume is 3.60 meters wide and a separation within each other of 4 meters, this allowed each space to have cross ventilation and light. All the living spaces face west; the east side is closed almost entirely to have privacy between the units. When working with dense housing, the quality of the spaces is very important, natural light, ventilation and views when possible, the east elevation of each volume is a vertical garden to allow views for all the units.

The project has 60 modules, each has 36 square meters (the minimum area for housing in Mexico). In this exercise we incorporate a mix of different and modularly units, from 36 sqm (1 module) to 144 sqm (4 modules) giving the opportunity to include bank credits for minimal housing for workers. The building has 5 levels with only 2 corridors, in the 2nd and 4th floor, the units are accessed at the same floor, and each unit has 1 to 3 floors interiorly, understanding this more as a little house than an apartment. Each module has a free plan and a service area for either kitchen or bathroom that could be programmed as needed. The materials are basic construction materials with no further finishes, cinder block and exposed concrete for the structure.

 

Arquitectos: at.103 Julio Amezcua + Francisco Pardo

Equipo: Margarita Flores, Tanya Martinez, Hanni Paz, Tiberio Wallentin, Jorge Vázquez, Arturo Peninche

Proyecto: 2006

Construcción: 2010

Ubicación: Lisboa 7, Colonia Juarez México DF

M2: 2700

 

Imágenes gentileza > at.103 / Fotografías: Rafael Gamo, Axel Fridman

hacer click en las imágenes para ampliarlas

Links >

at.103

Lisboa 7

Otras obras > Estación de Bomberos Ave Fénix de la Delegación Cuauhtémoc, Ciudad de México / Casa Romero, Querétaro - México / Ozuluama, Ciudad de México / Foros Azteca Novelas, Ciudad de México / TK 139, Ciudad de México

 

diseño y selección de contenidos >> Arq. A. Arcuri