|
Buenos Aires / Argentina |
|
at.103 + BGP, Estación de Bomberos Ave Fénix de la Delegación Cuauhtémoc / Ciudad de México [08/08/07] |
|
|
| |
|
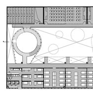
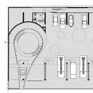
Estación de Bomberos Ave Fénix – Cd. De Mexico 2006 Debido a las condiciones del sitio y el programa, que en adición a las áreas básicas requeridas para una estación de bomberos, se entretejen espacios públicos y privados incorporando programas de capacitación y consulta para el público en general, así como una bomberoteca (biblioteca de bomberos), el proyecto funciona al exterior como una caja elevada que desaparece detrás de su fachada, apropiándose del contexto urbano mediante una gama de reflejos flotando desde el interior del patio de maniobras, extendiéndose en un tejido de luz hacia la calle (o a la inversa), funcionando como una lectura del funcionamiento del edificio, generada a través del flujo de los sistemas de transporte utilizados en su interior. En el interior de la caja cromada, los programas públicos y privados se auto-organizan a través de planos con perforaciones de distintos diámetros que generan tejidos verticales y horizontales de circulaciones, iluminación, vistas cruzadas, y usos, compartiendo el espacio a través del patio cívico, y que sin mezclarse, logran interactuar y complementarse, conectándose con el nivel de la calle gracias a la altura del primer nivel (7m). Una vez terminada la construcción, el completo y complejo funcionamiento de la pieza tomará el equipamiento urbano requerido como una reflexión y acción arquitectónica
Especial publicado el 21/11/05 >>> Imágenes de la inauguración >>>
Imágenes gentileza > at.103 / Fotógrafos: Adolfo Pardo / Matt Dirk / Jaime Navarro hacer click en las imágenes para ampliarlas |
![]() |
![]() |
![]() |
![]() |
![]() |
![]() |
![]() |
![]() |
![]() |
![]() |
![]() |
![]() |
![]() |
![]() |
![]() |
|
|
Links > Delegación Cuauhtémoc (sitio oficial) Especial sobre esta obra publicado el 21/11/05 >>> Imágenes de la inauguración >>> Otras obras > Casa Romero, Querétaro - México / Ozuluama, Ciudad de México / Lisboa 7, Col Juarez - México DF |
|||
|
|
|
diseño y selección de contenidos >> Arq.
A. Arcuri
|
|
|
|