Buenos Aires / Argentina

inicio especiales sugerir noticia links newsletter  

especiales > Edificio de Viviendas, calle Clay, Buenos Aires / DIEGUEZ FRIDMAN arquitectos & asociados [27/11/06]

Edificio de Viviendas, calle Clay, Buenos Aires

En un barrio residencial de Buenos Aires, el proyecto de este edificio de departamentos busca incorporar a sus viviendas distintos espacios, recorridos, situaciones y detalles propias de la arquitectura de las casas unifamiliares.

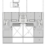
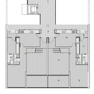
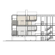
Los ocho departamentos se organizan en dos niveles con el estar como espacio de doble altura que los vincula. La cocina, el lavadero y el comedor ocupan junto con el estar la planta baja de los departamentos, mientras que los dormitorios ocupan la planta superior. Tanto el estar como el dormitorio principal tienen una terraza profunda por delante que balconean una sobre la otra y que se cierran en el nivel superior con un sistema de parasoles horizontales de vidrio. Esto transforma la fachada en un espacio intermedio entre el interior y el exterior, al aire libre pero protegido del viento y de las vistas desde la planta baja.

La organización general del edificio refuerza el carácter de pequeñas casas de las unidades. Autos y personas ingresan por el mismo espacio, una planta baja libre con piso de madera de quebracho que durante la noche es ocupada por los autos y durante el día se convierte en lugar de juego para los niños como sucede en muchas casas. Esta planta baja y las escaleras y los puentes por los que se llega a las viviendas son semicubiertos. Solo se accede a un espacio interior cerrado al entrar al hall de cada una de las viviendas.

Las divisiones interiores de vidrio esmerilado hacen que la luz pase de un ambiente a otro y generan un juego de reflejos y sombras entre los distintos ambientes, mucho mas frecuente en el diseño de locales comerciales. Los parasoles, las fachadas exteriores, las divisiones de vidrio y las fachadas al patio forman una serie de velos paralelos a la calle que se superponen, permitiendo que la luz los atraviese de distinta forma en el transcurso del día.

A lo largo del siglo XX los proyectos de vivienda permitieron a muchos de los edificios mas relevantes construidos en la ciudad plantear reflexiones o experimentar sobre diversos temas; algunos relacionados al problema especifico de la vivienda y los modos de habitar y otros referidos a temas generales de la arquitectura como su relación con la naturaleza, con los sistemas constructivos o con el clima y el asoleamiento. El proyecto de Clay busca trascender las limitaciones que las regulaciones y la necesidad de maximizar la rentabilidad económica imponen hoy a este tipo de emprendimientos, para intentar dar un paso en dirección a esta tradición de experimentación.

Ficha técnica

EDIFICIO DE VIVIENDAS EN LA CALLE CLAY Clay 2928, Buenos Aires, Argentina
Proyecto: 2004 / Construcción: 2004-2006

PROYECTO Y DIRECCION

DIEGUEZ FRIDMAN arquitectos & asociados

Arq. Tristán Dieguez, Arq. Axel Fridman, Arq. Asociado Germán Dyzenchauz

COLABORADORES

Arq. Brenda Levi, Odile L’Hardy

CONSULTORES:

Estructura: Ing. Sebastián Berdichevsky

Iluminación: Arq. Pablo Pizarro

Paisajismo: Arq. Cora Burgin

Diseño de carpinterías metálicas: Estudio Gigli: Ing. Andrés de Aguirre, Arq. Santiago Herrera

Documentación de obra: Arq. Martín Torrado, Arq. Gabriel Galván

CONSTRUCCIÓN

Brunetta SA

FOTOGRAFIAS

Arq. Tristán Dieguez

 

Imágenes gentileza > DIEGUEZ FRIDMAN arquitectos & asociados

hacer click en las imágenes para ampliarlas

ampliar imagen

ampliar imagen

ampliar imagen

ampliar imagen

ampliar imagen ampliar imagen ampliar imagen ampliar imagen
ampliar imagen ampliar imagen ampliar imagen ampliar imagen

Links >

DIEGUEZ FRIDMAN arquitectos & asociados

Visita a obra (septiembre 2006) >>>

Otras obras: Museo de la prehistoria Gyeonggi-do Jeongok, Corea / The Seoul Performing Arts Center / Facultad de Psicología, Universidad de Buenos Aires / Local Ayres - El Solar de la Abadía, Buenos Aires - Argentina / Guiyang Huaxi Urban Center, China / Local Ayres - Calle El Salvador, Buenos Aires - Argentina

 

diseño y selección de contenidos >> Arq. A. Arcuri