Buenos Aires / Argentina

inicio especiales sugerir noticia links newsletter  

especiales > Casa XS... en el bosque de Mar Azul - Argentina / Besonías - Almeida - Kruk, arquitectos [17/11/08]

CASA XS,  vivienda de veraneo en el bosque de Mar Azul - Argentina

El lugar

Mar Azul es un balneario a 400 Km. al sur de la ciudad de Buenos Aires, con una extensa playa de médanos vírgenes y un frondoso bosque de coníferas. El terreno que forma parte de dicho bosque posee la particularidad de ser muy angosto y largo y de tener una superficie casi sin pendiente hasta 5 metros antes de la linea de fondo. A partir de ese punto el médano presenta una depresión abrupta cubierta de vegetación baja (acacias) pero sin pinos. De manera que mirando desde el lote hacia esa zona, las coníferas del propio terreno se recortan en ese claro de forma muy especial al atardecer cuando el sol cae y va entrando horizontal entre los árboles. Esta singularidad hace de ésta, sin duda, la vista más privilegiada.

El encargo

Conformes con la solución estético constructiva propuesta por el estudio para otras casas de veraneo en la zona, los clientes solo condicionaron el proyecto desde la superficie a construir: la casa no podía superar los 50m2 con semicubiertos incluidos y se debería dejar previsto el crecimiento de un dormitorio en una segunda etapa no determinada en el tiempo.

La propuesta

El hecho de haber podido experimentar en temas funcionales y estético constructivos en este ambiente tan particular -el bosque marítimo- con otras obras recientemente construidas y haber obtenido resultados muy satisfactorios, permitió en esta oportunidad, poner el énfasis en perfeccionar el sistema experimentado y resolver su adaptación a este programa mínimo en un angosto terreno con una casa lindera sobre su lado derecho y una propiedad de gran tamaño, lote de por medio, sobre el opuesto.

La búsqueda de alternativas debería, como en las demás experiencias, seguir teniendo pocas pero insalvables limitaciones: fundamentalmente tener muy bajo impacto en ese paisaje, que se ajustarse a un bajo presupuesto, que su mantenimiento posterior fuera casi nulo y que el tiempo de construcción se acortase todo lo posible ya que el seguimiento se haría a distancia.

Con estas premisas, la casa fue resuelta como un prisma de hormigón de proporción muy alargada, de altura mínima, separado de ambas líneas divisorias ubicado aprovechando un claro en el terreno y con una decidida búsqueda de vistas hacia la particularidad del paisaje descrito. Un gran ventanal prolonga el pequeño estar comedor en su expansión semicubierta permitiendo vistas al paisaje y el reflejo del mismo desde afuera. Los lados más largos tienen aberturas muy controladas para evitar las vistas tan próximas desde y hacia las casas vecinas. Estas se resolvieron horadando el muro de hormigón a la vista realizado con tablas de pino colocadas en algunos casos en vertical para permitir que de manera aleatoria se produjeran aberturas de toda la altura y del ancho de una o dos tablas de encofrado. Hacia el frente la abertura del prisma se ubica de lado a lado y a una altura tal que no comprometa la intimidad del único dormitorio de la casa. El hecho de haber decidido que tres de los lados del prisma fueran muy cerrados hizo que pensáramos en otro material además del hormigón a la vista para resolverlos, de manera que la imagen no resultara demasiado monótona o inapropiada para una casa unifamiliar. El material elegido por su calidad estética, pero sobre todo por su falta de mantenimiento, fue tablas de madera de quebracho utilizadas formando un muro bajo en el dormitorio y para resolver un portón de entrada, que si bien aparece como desproporcionado para esta pequeña vivienda, tiene como objetivo destacar el acceso como único gesto en una fachada con poquísimos recursos formales.

La organización funcional

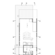
Se ingresa a través del "desproporcionado" portón a un pequeño hall que junto con el baño y el sector para cocinar dividen el prisma en dos funciones diferenciadas: el dormitorio y el estar comedor. Este último ambiente se prolonga como expansión en un deck cubierto por una generosa visera hacia el fondo y en un deck descubierto para comer al aire libre sobre el lateral izquierdo, próximo al sector cocina.

Las actividades exteriores no pretenden estar determinadas por razones funcionales, sino que es la propia topografía la que va definiendo el lugar para dejar el automóvil, o para ubicar la parrilla. Se ha recomendado a los clientes no ajardinar el lote para mantener la calidad del paisaje natural que además presenta la ventaja de no necesitar más mantenimiento que el retiro de los pinos que se van secando.

La solución constructiva

La planta de la vivienda de 4.00 m x 12,00 m queda cubierta por una losa de hormigón armado a la vista que descansa, en los tabiques laterales con un voladizo de 2,00 m soportado por una viga invertida que recorre el estar comedor cocina y refuerzos en la losa que colaboran con ella.

Los tabiques interiores son de ladrillos huecos revocados y pintados con latex blanco, el piso es de paños de alisado de cemento divididos por planchuelas de aluminio. El encuentro entre muros y el suelo se resolvió con un perfil rehundido de aluminio a manera de zócalo. Las aberturas son de aluminio anodizado color bronce oscuro. El sistema de calefacción, dado que no existe gas natural en la zona, se resolvió con un sistema que combina salamandra, estufa a gas envasado y estufas eléctricas.

Un sistema estético constructivo para un hábitat particular

La experimentación que se menciona en los primeros párrafos de la memoria está relacionada con que el uso habitual de la casa en épocas templadas o cálidas y el microclima reinante en el bosque marítimo (mucha sombra, escaso viento) hace viable la solución constructiva de bajo costo y rápida ejecución, de una envolvente de hormigón a la vista sin complementos que mejoren la aislación térmica e hidrófuga. Para esto se utilizó un hormigón con el agregado de un plastificante que optimiza una mezcla con escasa cantidad de agua que al fraguar resulta de mucha compacidad. Gracias a este procedimiento la cubierta se puede resolver sin contrapiso de pendiente ni membrana hidrófuga, simplemente la losa se realiza desde el vamos con la suficiente pendiente como para permitir el libre escurrimiento del agua de lluvia hacia sus cuatro lados. Además, la calidad expresiva del hormigón visto y sus propiedades de resistencia e impermeabilidad, hacen innecesario cualquier tipo de acabado superficial, lográndose también, un bajo costo de ejecución en las terminaciones y un mantenimiento futuro innecesario ya que los paramentos tanto exteriores como interiores del hormigón visto solo requirieren como acabado de un lijado a mano para remover las adherencias propias de la ejecución. Por otro lado el color y la textura del hormigón armado realizado con encofrado de tablas de madera resulta de una presencia contundente y discreta a la vez, permitiendo que la obra se exprese en armonía con el bosque. Por último la elección de la madera de quebracho garantiza un envejecimiento de este material que lo irá mimetizando con la corteza de los árboles sin riesgo constructivo, debido a su dureza y estabilidad.

El tratamiento de la luz

Conocedores de la atmósfera ambiental que genera el bosque, era primordial asegurar una generosa llegada de luz a todos los locales. Como refuerzo de la iluminación proveniente de las diferentes aberturas del perímetro se pensó en incorporar una entrada de luz cenital en todo el ancho del prisma a la altura del baño (ya que este es interno) y del acceso. Con ese objetivo fue proyectada una caladura coincidiendo con la mesada que contiene el lavatorio, que se prolonga tanto en el pasillo que va al dormitorio como el hall de entrada y que produce al igual que los múltiples “tajos” en las fachadas laterales, efectos lumínicos que van variando con el transcurrir del día.

El control de la luz y las visuales desde el exterior se resolvió con cortinas black out.

 

Ficha técnica

Ubicación: Mar Azul, provincia de Buenos Aires, Argentina

Arquitectos: María Victoria Besonías, Guillermo de Almeida, Luciano Kruk

Colaborador: Sebastián Indri

Sobrestante: Alejandro Sanchez

Superficie del terreno: 475 m2

Superficie construida: 52 m2

Año de construcción: 2007

 

Imágenes gentileza > Besonias - Almeida - Kruk arquitectos

hacer click en las imágenes para ampliarlas

Links >

Besonias - Almeida - Kruk arquitectos

Otras Obras > Casa de veraneo en Mar Azul / Casa de Hormigón / Casa de Ladrillo / Casa en la Playa / Casa Cher / Casa Levels / Casa BA

 

diseño y selección de contenidos >> Arq. A. Arcuri