Buenos Aires / Argentina

inicio especiales sugerir noticia links newsletter  

especiales > Casa Cher, Mar Azul - Argentina / BAK arquitectos [19/04/10]

Casa Cher,  vivienda de veraneo en el bosque de Mar Azul - Argentina

El lugar

El terreno de 20m x 30m sobre el que debíamos intervenir se encuentra en el borde de la urbanización del bosque de Mar Azul frente a un gran predio de características paisajísticas similares. Este territorio de médanos fijados por acacias y pinos marítimos aún no ha sido loteado y para los comitentes esa condición era una característica muy valorada ya que todo hace suponer que se mantendrá así por un largo tiempo y ellos podrán disfrutar de vistas a un paisaje privilegiado sin construcciones que lo modifiquen. El lote algo más elevado que los terrenos lindantes, no presenta diferencias de nivel muy marcadas. Su superficie es suavemente ondulada y esta muy forestado.

El encargo

Los comitentes, un matrimonio con dos hijos adolescentes, nos habían prometido en el 2004 cuando descubrieron nuestra primer obra en Mar Azul que iban a comprar un lote para que les hiciéramos una casa de las mismas características. En el 2008 lo concretan y fiel a la promesa nos encargan su vivienda de veraneo. La misma debía tener aproximadamente 100 m2, estar muy integrada al paisaje y aprovechar las vistas privilegiadas al bosque vecino.

El programa

Necesitaban contar con dos dormitorios, dos baños, uno de ellos en suitte y un lugar común (con la cocina integrada) lo mas generoso posible. Les sugerimos que dado que lo hijos eran adolescentes parecía lógico brindarles la posibilidad de tener dormitorios separados pero como la superficie no podía aumentarse le plantemos hacerlos angostos, tipo camarote (les mostramos imágenes de dormitorios de esas características). La idea les pareció aceptable siempre y cuando esos espacios no resultaran muy encerrados.

La propuesta

El relieve particular del lote, las vistas lejanas a ese bosque no urbanizado y la particularidad de la composición familiar, son los temas que hacen singular a esta casa con una propuesta estético constructiva similar a las otras construidas por el estudio en Mar Azul.

Dentro de una volumetría elemental (un prisma con su lado mayor paralelo a la calle) resolvimos una organización de espacios a medios niveles que aprovechan la natural ondulación del predio. Es así que los dormitorios se proyectaron en dos plantas para de esta manera ofrecer mayor independencia entre las actividades de los padres y los adolescentes. A medio camino entre estos lugares de descanso se planteó la zona de reunión de la familia, vidriada en sus lados mayores buscando las vistas lejanas al bosque vecino y al paisaje del propio lote. Todos los ambientes en contacto con el terreno se prolongan al exterior mediante decks a diferentes alturas relacionados entre si con una escalera.

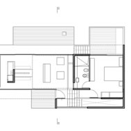
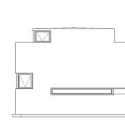
La organización funcional

Se accede a la planta principal de la casa salvando un desnivel a través de una escalera de hormigón. Una vez atravesada la puerta de entrada y desde un pequeño hall se observan los dos tramos de escaleras que llevan, medio nivel hacia arriba, al dormitorio principal con su baño incorporado y medio nivel hacia abajo, a un espacio de doble altura semi-enterrado en el médano desde el que se accede al baño general y a los dormitorios camarotes. Desde estos se puede salir a un patio también semi-hundido que sirve de expansión de los mismos pero sobre todo es utilizado como recurso para hacer indefinido el cierre de uno de los lados y que de esa manera queden también integrados al paisaje. La planta de acceso es un espacio único donde mediante diferencias de altura y tabiques de hormigón quedan definidos los lugares para cocinar comer y estar.

La construcción

La vivienda se desarrolla dentro de un prisma de hormigón y vidrio que no destaca los diferentes niveles en que esta resuelta. Para eso dos grandes vigas que recorren los lados mas largos se van resolviendo como simples o invertidas permitiendo así diferentes posiciones de la losa de cierre. En el sector del estar comedor esta situación se aprovecha para crear con la diferencia de altura no sólo sectorizaciones funcionales sino también vistas hacia la copa de los árboles en la separación entre losas. Se utilizó un hormigón H21 con el agregado de un fluidificante para que esta mezcla con escasa cantidad de agua al fraguar resulte de mucha compacidad y no requiera de impermeabilización. Los tabiques interiores de ladrillos huecos están revocados y pintados con latex blanco, el piso es de paños de alisado de cemento divididos por planchuelas de aluminio. El encuentro entre muros y el suelo se resolvió con un perfil rehundido de aluminio a manera de zócalo. Las aberturas son de aluminio anodizado color bronce oscuro. El sistema de calefacción, dado que no existe gas natural en la zona, se resolvió con un sistema que combina salamandra, estufas a gas envasado y estufas eléctricas.

Mobiliario

Salvo la cama matrimonial y los sillones y sillas el resto del equipamiento de esta vivienda está resuelto en hormigón. Incluso las camas de los dormitorios camarotes son losas perforadas resueltas en voladizo.

 

Ficha técnica

Ubicación: Mar Azul, partido de Villa Gesell, provincia de Buenos Aires, Argentina

Arquitectos: María Victoria Besonías, Luciano Kruk

Colaboradores: Sebastián Indri, Arq. Leandro Pomies

Superficie del terreno: 600 m2

Superficie construida: 105 m2

Año de construcción: 2009

 

Imágenes gentileza > BAK arquitectos / Fotografia: Gustavo Sosa Pinilla

hacer click en las imágenes para ampliarlas

Links >

BAK arquitectos

Otras Obras > Casa de veraneo en Mar Azul / Casa de Hormigón / Casa de Ladrillo / Casa XS / Casa en la Playa / Casa Levels / Casa BA

 

diseño y selección de contenidos >> Arq. A. Arcuri