Buenos Aires / Argentina

inicio especiales sugerir noticia links newsletter  

especiales > Casa en Funes Hills San Marino - Funes - Argentina / Juan José Perseo + Matías Blas Imbern [06/04/08]

Casa en Funes Hills San Marino - Funes - Argentina / Juan José Perseo + Matías Blas Imbern

La obra se encuentra emplazada en la ciudad de Funes, dentro del barrio cerrado Funes Hills, cercano al acceso a la autopista Rosario-Córdoba. La continua luz solar, los abundantes espacios verdes, y la calma del lugar se presentan como una oportunidad única para el desarrollo de una vida en contacto con la naturaleza, constituyéndose de este modo en un fuerte destino para las personas que deciden abandonar el agitado ritmo de vida de las ciudades desarrolladas.

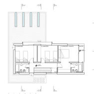
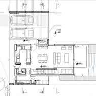
Para el diseño de esta vivienda unifamiliar se trabajó con un programa de necesidades para una familia promedio. El partido se define disponiendo la masa edilicia hacia el sur y el oeste, generando de este modo una contención del terreno, delimitando claramente los espacios públicos y privados, evitando caer en cercados para ello, adhiriendo a la cultura propuesta por el barrio, viviendas implantadas sobre un único manto verde sin fragmentación. Así todos los espacios de mayor jerarquía se orientan hacia el noreste, en contacto con el parque. La fachada sur se concibe como una espalda más dura sobre la cual se apoyan los diferentes sistemas de servicios.

Dentro de un entorno de arquitectura diversificada, donde conviven formas e intenciones de las más diversas, la propuesta intenta asumir un papel de sobriedad y claridad, dando lugar a que la naturaleza, los espacios verdes y los horizontes sean los protagonistas.

La propuesta se define con solo tres elementos protagónicos: un cuerpo blanco 'suspendido' como contenedor de las actividades de planta alta en donde se disponen las habitaciones con vistas elevadas hacia las extensiones del country perdiéndose en el horizonte verde; un basamento de ladrillo en planta baja para las funciones sociales de la vivienda en contacto directo con el parque y la pileta, haciéndolos partícipes de la vida interna de la casa, disponiendo esta última en una fluida continuidad espacial con el estar como nexo de integración interior-exterior; y por último un plano plegado organiza los espacios de servicio y resuelve los ingresos peatonales y vehiculares a la vivienda.

 

Ficha técnica

Ubicación: Funes Hills San Marino [Unidad 31] - Funes - Argentina.

Proyecto: Arq. Juan José Perseo, Matías Blas Imbern

Superficie lote: 810 M2

Superficie cubierta: 140 M2

Superficie semicubierta: 65 M2

Superficie espejo de agua: 38 M2

Ejecución: PyD SRL

 

Imágenes gentileza > Matías Blas Imbern

hacer click en las imágenes para ampliarlas

Links >

Matías Blas Imbern

Otras obras > Casa Film, Funes Hills Cadaqués, Santa Fe, Argentina / Casa H, Funes Hills Miraflores, Santa Fe, Argentina / Casa V - Funes Hills Cadaques - Santa Fe - Argentina

 

diseño y selección de contenidos >> Arq. A. Arcuri