Buenos Aires / Argentina

inicio especiales sugerir noticia links newsletter  

especiales > Casa Film, Funes Hills Cadaqués, Santa Fe, Argentina / Matías Blas Imbern + Agustina González Cid [02/05/10]

Casa Film - Funes Hills Cadaqués - Santa Fe - Argentina / I + GC [arquitectura] - Matías Blas Imbern + Agustina González Cid

La Emplazada en la ciudad de Funes (santa Fe, Argentina), dentro del barrio cerrado Funes Hills Cadaqués y presentando las ventajas características del asentamiento suburbano, la obra busca lograr el contacto permanente interior-exterior, tan deseado por la gente que elige vivir en dichos lugares.

La casa, concebida para una familia joven con hijos, se resuelve a partir de una estrategia simple: el empleo de dos cintas -films- que a modo de planos plegados la implantan en el terreno, la organizan programáticamente y definen la identidad formal de la obra. Estas van a ser las encargadas de dar unidad a la totalidad de las partes.

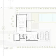
La disposición de las mismas en L, abre la vivienda hacia las mejores orientaciones, buscando la fluidez espacial hacia el interior del lote. La pileta, ubicada en el centro del conjunto, fue pensada como el corazón alrededor del cual se dispone la totalidad de los locales y el parque, convirtiéndose de este modo en protagonista de la vida de la casa, a la cual miran todos los espacios de la misma. A su vez, la implantación de esta permite liberar una importante superficie de terreno para el desarrollo de actividades deportivas y/o recreativas.

Todos los espacios comunes de la vivienda se disponen en planta baja, privilegiando el contacto directo con el terreno en los ambientes más dinámicos -living, cocina, comedor, quincho-. En la planta alta se ubican los dormitorios, favoreciendo la intimidad y las visuales elevadas por sobre el manto verde del country.

El ingreso principal se produce a través de un hall en doble altura que aloja la escalera y genera una verdadera continuidad visual del terreno a través de su transparencia, produciendo una sensación de atravesamiento entre el frente y el parque. Este espacio vertical articula en la planta baja la relación entre los servicios y el estar; y separa en la planta alta el mundo de los padres del de los hijos, otorgando un nuevo nivel de privacidad.

Una de las innovaciones funcionales que introduce el proyecto es el uso del retiro sur para el ingreso vehicular, ubicando de este modo la cochera en el centro del terreno. La misma puede funcionar también como quincho, en contacto directo con la cocina comedor, con la pileta y con el parque; y en el futuro como una posible expansión de la vivienda, desplazando el espacio de estacionamiento a continuación.

Para los cerramientos se utilizaron volúmenes y planos apelando a una variedad material de modo de no afectar el juego formal propuesto, en donde las cintas grises son protagonistas y el resto se subordina hacia éstas; disponiendo a su vez las aberturas dentro de un juego de llenos y vacios entre los distintos componentes.

 

Ficha técnica

Ubicación: Funes Hills Cadaqués [Unidad 73] - Funes - Argentina.

Proyecto: I + GC [arquitectura] - Matías Blas Imbern + Agustina González Cid

Arquitectos Asociados: Guillermo Bas, Juan José Perseo

Colaborador: Fernando Imbern

Cálculo Estructura: Ing. Gustavo Bordachar

Superficie lote: 800 m2

Superficie cubierta: 170 m2

Superficie semicubierta: 60 m2

Superficie espejo de agua: 37 m2

Año: 2008

 

Imágenes gentileza > I + GC [arquitectura]

hacer click en las imágenes para ampliarlas

Links >

I + GC [arquitectura]

Otras obras > Casa en Funes Hills San Marino - Funes - Argentina / Casa H, Funes Hills Miraflores, Santa Fe, Argentina / Casa V - Funes Hills Cadaques - Santa Fe - Argentina

 

diseño y selección de contenidos >> Arq. A. Arcuri