Buenos Aires / Argentina

inicio especiales sugerir noticia links newsletter  

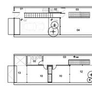
especiales > Casa '5 x 30', Ramos Mejia, Provincia de Buenos Aires - Argentina / Borrachia arquitectos [09/10/09]

Casa  '5 x 30', Ramos Mejia, Provincia de Buenos Aires - Argentina

Que un lote de 10 metros (medida indicadora de factores urbanísticos) se parta al medio en el suburbio de buenos aires tiene varios significados intrínsecos relacionados con las posibilidades y carencias de un segmento social y esconde como siempre el verdadero gen que construye y a veces destruye nuestras urbes : la especulación inmobiliaria.

La repetición de estas particiones en la ciudad, equivocadas o no y con el paso del tiempo, culminan en el nacimiento por imposición de una tipología arquitectónica.

Esta tipología, que inunda casi sin cambios la trama de la ciudad, arrastra con su repetición errores que conllevan al detrimento de la vida del hombre pero que de alguna forma han sido consensuados por una sociedad adaptada a ellos por mera rutina.

Conocida comúnmente como dúplex (Nosotros preferimos llamarla casa 5 x 'el largo del lote') nos ha dado la posibilidad, en los varios casos en los que hemos trabajado con ella, de pensar en una serie de temas relacionados con el hábitat, con la ciudad y sobre todo con la crítica al modelo existente:

La 'Casa Filtro' por ejemplo: una serie de colchones de aire constituidos por vallas, sean estos muros, parasoles cerramientos o patios, construyen un límite necesario entre el afuera agresivo y anodino del suburbio y un adentro que debe ser vivido, a medida que el afuera se aleja, con toda la intensidad posible (una vez en el interior del sistema, el exterior sólo será descubierto a través de una nueva mirada); la 'casa oasis': el encuentro con un espacio inesperado, una vez atravesado el filtro, produce efectos comparables con un oasis en el desierto; el descubrimiento paulatino de espacios y rincones a pesar de las reducidas dimensiones del lote, un alejamiento con la rutina de la urbe.(el desprendimiento final pasa por la generación de espacios aptos, por sus características singulares , para la introspección y el descanso) ; la 'casa 2 en 1': ordenada como un sistema de dos en uno permite que los espacios privados puedan desarrollarse de manera independiente de los otros y que existan lugares intermedios de múltiple función. (A pesar de su pequeñez la casa plantea variantes en el uso); la 'casa patio': sin las posibilidades inherentes de la tipología conocida como casa patio, donde los espacios se estructuran alrededor de este, Las casas '5 x' encuentran en un sistema de regulación interna – cada espacio con su patio- ciertas cualidades vivenciales que la emparentan con aquella; y la 'casa total': la ruptura entre interior y exterior y la creación de espacios híbridos a esta clasificación provocan la utilización total del espacio casa, entendiendo como sus límites a los propios del lote; son algunos de los temas que desarrollamos y seguiremos desarrollando en busca de la construcción del habitar contemporáneo.


Ficha técnica

Obra: Casa 5 x 30

Autores: Estudio Borrachia arquitectos. Oscar A. Borrachia -Alejandro H. Borrachia

Colaboradores: Esteban Planes

Comitentes: Flia. Lenge

Ubicación: Ramos Mejia

Superficie: 195 m2

Año de construcción: 2009


Imágenes gentileza > Borrachia arquitectos

hacer click en las imágenes para ampliarlas

ampliar imagen

ampliar imagen

ampliar imagen

ampliar imagen

ampliar imagen ampliar imagen ampliar imagen ampliar imagen
ampliar imagen ampliar imagen ampliar imagen ampliar imagen

Links >

Borrachia arquitectos

Otras obras > Casa en Campos de Alvarez, Moreno, Provincia de Buenos Aires, Argentina / Comedor P11, Universidad de Morón, Argentina / Módulo de vigilancia y vestuario, Haedo - Pcia. de Buenos Aires, Argentina / 'Cabaña Torre' - Hotel en Misiones, Karadya BIO-RESERVA, Misiones, Argentina

 

diseño y selección de contenidos >> Arq. A. Arcuri