Buenos Aires / Argentina

inicio especiales sugerir noticia links newsletter  

especiales > Aeropuerto Lleida-Alguaire, España / b720 Arquitectos [27/04/10]

Aeropuerto Lleida-Alguaire, España, b720 Arquitectos

La primera consideración al abordar la cuestión de cómo debe expresarse un pequeño aeropuerto en la escala del paisaje del altiplano de Lleida ha sido la de encontrar un equilibrio entre el intento de evitar un artefacto extraño aterrizado y la de no perder el carácter de hito, de referencia reconocible en la distancia.

Sobre la superficie limpia y amplia de los campos de cultivo, fragmentada únicamente en su mismo plano por las texturas de los diferentes colores, no se busca una referencia a las habituales metáforas formales referidas a las alas, las aves o al mundo de la aerodinámica y la tecnología. El patchwork agrícola remite al lugar concreto y vincula el aeropuerto al territorio en el que se inserta.

La traslación, cambiada de escala y regularizada, de los colores de las parcelas de cultivo de Alguaire, y por extensión de las tierras de Lleida, a la cubierta y la fachada no pretende un mimetismo de camuflaje sino una alusión directa al carácter del terreno, a su identidad.

Unidad visual

La envolvente principal se plantea como un manto continuo que cubre las caras más visibles del edificio para dar unidad formal al conjunto y consolidar su presencia dentro del contexto. De este modo, las variadas funciones y estructuras de ambos volúmenes quedan unificadas formal y visualmente mediante la cobertura de toda la fachada con una chapa metálica perforada de tonos verdes, ocres y amarillos, que sugieren la vinculación del edificio con el paisaje circundante. Asimismo, las chapas metálicas conviven con franjas vegetales de sedums y tiras de madera de pino tratado.

La cubierta, a ambos lados de la torre, se curva y pasa a ser fachada de la torre. La marcada curva dibujada por la cubierta articula la singularidad de este proyecto en el cual ambos planos (horizontal y vertical) tienen diferentes funciones y estructura, pero comparten características formales y materiales que los hacen actuar como elemento unitario.

Programa

El programa de necesidades incluía un edificio Terminal, la torre de control y dos espacios destinados a talleres. Ninguno de ellos, debido a sus reducidas dimensiones, reunía las características suficientes como para representar el nuevo aeropuerto, por lo que la estrategia seguida busca la unión de los tres programas mediante un único gesto visual: un manto verde elevado, flotando sobre el terreno y con capacidad para plegarse suavemente y adecuarse a las funciones de cubierta y de fachada al mismo tiempo.

Este manto agrícola permite que las futuras ampliaciones queden recogidas por el mismo gesto, de manera que el aeropuerto no se disgregue en numerosas edificaciones aisladas y exentas de relación entre sí, como se caracterizan habitualmente este tipo de grandes equipamientos. De esta manera, se potencia la flexibilidad del edificio gracias a la alfombra vegetal que lo cubre para un crecimiento futuro sin que el proyecto modifique sustancialmente su identidad y su huella en el lugar.

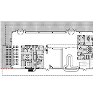
Edificio Terminal

El edificio Terminal, que filtra al usuario del lado tierra al lado aire y viceversa, se enmarca en un rectángulo de unos 64x22m en una sola planta, por lo que el embarque y las llegadas discurren en un mismo nivel. El vestíbulo principal, que aprovecha la mayor altura libre creada por la ondulación de la cubierta, vincula ambos espacios y busca maximizar la transparencia visual con el exterior, ayudando a que el pasajero se sienta en todo momento perfectamente ubicado. Para ello se ha optado por un muro cortina acristalado que delimita la zona de paso de los pasajeros y que consta de una altura entre 3,5 y 6 metros, ocupados por dos módulos de vidrio con eje de división a 2,5 metros de altura. La ausencia de carpintería en la parte interior de este muro cortina permite maximizar la permeabilidad visual interior-exterior. Asimismo, los espacios generados por la ondulación de la cubierta se emplean como lucernario para lograr aumentar la luminosidad interior, generar sensación de amplitud y ver el cielo desde el interior.
El diseño del propio edificio alberga una visera de 4 metros que ejerce de generador de sombra en la zona acristalada, por lo que no se ha previsto de ningún tipo de protección solar adicional para los vidrios.

Dos bloques técnicos opacos, entendidos como volúmenes compactos cubiertos por el orden superior de la cubierta, alojan las dependencias que necesariamente deben estar separadas de los espacios diáfanos, tales como servicios, equipajes, oficinas, salas de personal y de instalaciones.

Torre de control

La torre, de 42 metros de altura, se ha diseñado como una obra singular que va más allá de la propia estructura, englobando e integrando arquitectónicamente los proyectos de la terminal y los edificios anexos. En él, la arquitectura responde con igual efectividad a los requerimientos aeronáuticos, a los territoriales y a los paisajísticos.

La torre se subdivide en planta baja y nueve alturas, acogiendo las funciones específicas de control aeronáutico. Programáticamente, en planta baja se disponen el acceso, el soporte técnico y de servicios propios de la torre de control; de planta tercera a la quinta, los espacios destinados a entidades de seguridad, mientras que de la sexta a la novena se ubican las estancias de descanso de controladores, instalaciones y administrativo. La planta técnica, en el primer nivel, aprovecha el espacio entre la planta baja y el resto de plantas, ventilando naturalmente a través de la fachada perforada.

La fachada de la torre se forma por la continuación en vertical del manto de la cubierta de la Terminal, creando una doble piel traslúcida de madera, chapa metálica microperforada y lacada en diferentes colores, que homogeniza los huecos de cada sala interior, actuando a su vez como eficaz filtro solar.

Por último, el fanal, pieza de geometría y materiales estrictamente invariables en una torre de control, permite la correcta visualización de las cabeceras de pista y plataforma, entendiéndose como una pieza técnica más, una antena parabólica más de las que necesariamente se deben colocar sobre la cubierta de la torre.

 

Ficha técnica

'Aeroport Lleida-Alguaire'

Localización: Alguaire (Lleida). España

Superficie
Edificio Terminal: 1412m2
Torre de control: 2.890m2
Talleres: 640m2

Arquitectos: Fermín Vázquez - b720 Arquitectos

Ingeniería: Aertec

Fecha de concurso: Julio 2007

Fecha de finalización: Enero 2010

 

Imágenes gentileza > b720 Arquitectos

hacer click en las imágenes para ampliarlas

Links >

b720 Arquitectos

Artículo relacionado: Aeropuerto con paisaje, por Fredy Massad y Alicia Guerrero Yeste

 

diseño y selección de contenidos >> Arq. A. Arcuri