Buenos Aires / Argentina

inicio especiales sugerir noticia links newsletter  

especiales > Edificio de 68 viviendas de protección oficial en Zaragoza /  MAGÉN ARQUITECTOS [04/06/07]

Edificio de 68 viviendas de protección oficial en Zaragoza

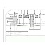
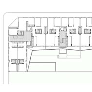
El proyecto desarrolla un programa residencial de viviendas de protección oficial, de diversos tipos y superficies, en un edificio longitudinal de cuatro plantas alzadas, escalonado en tres tramos para adaptarse a la pendiente del emplazamiento. La situación del solar, en el límite sur entre la ciudad construida y el territorio, y su acusada dimensión longitudinal, configuran una pieza de borde urbano que responde de manera distinta a las evidentes diferencias en las condiciones del entorno. La orientación del edificio apoya la idea de contraste entre el exterior cerrado y masivo, orientado hacia el norte, y el interior, quebrado y abierto hacia el sur y las vistas.

Las unidades de vivienda participan de esta doble orientación, con los dormitorios hacia la calle, al norte, y las estancias de día, estares y cocinas, hacia el espacio interior ajardinado, al sur. La banda de servicios ocupa una posición central que permite la doble circulación a su alrededor, así como la ampliación de visuales en el interior de la vivienda, aportando una mayor sensación de amplitud para su reducida superficie.

Exteriormente, el edificio presenta una configuración cerrada, opaca, buscando una adecuada y silenciosa integración en el entorno inmediato -un conjunto de viviendas sociales de los años sesenta-. Las fachadas exteriores, de ladrillo blanco, siguen las alineaciones normativas. Un zócalo en planta baja de paneles de hormigón resuelve el encuentro del edificio con la pendiente inclinada de la acera.

En los puntos donde el edificio se recorta en altura para adaptarse a la pendiente, y en el final del bloque, se sitúan los porches o zaguanes de acceso, de amplias dimensiones, que comunican la vía pública con el espacio interior ajardinado, que contiene los accesos a las viviendas. Este espacio interior intermedio, zona de acceso, encuentro y relación, crea una secuencia entre el espacio público y el privado. Las diferencias de cotas, tanto en los accesos como en el patio interior, dada la pendiente del solar, se resuelven mediante planos inclinados de suave pendiente y rampas de acceso a los portales.

Sobre el espacio interior, el edificio se caracteriza por una serie de paños quebrados definidos por una poligonal. Las distintas directrices de la fachada y las posiciones variables de los paneles correderos de lamas de aluminio, en función de su posible uso frente a la cocina o al estar, dotan a la fachada de movimiento y un aspecto cambiante a lo largo del día.

 

Ficha técnica

Arquitecto: MAGÉN ARQUITECTOS (Jaime Magén)

Arquitectos colaboradores: Francisco J. Magén.

Promotor: Sociedad Municipal de Rehabilitación Urbana de Zaragoza.

Aparejadores: Fernando Bardavío, Felisa Sánchez, Miguel A. Romero y Adrián Zorraquino

Situación: Calle Biescas 15-29. Zaragoza

Superficie construida total: 8.397 m2

Presupuesto: PEM 3.715.254,15 €

Empresa Constructora: Construcciones Galve y Gil.

Jefe de obra: Zorba Shabaro

Concurso: 2002

Proyecto: 2003

Construcción: 2004-2006

Fotógrafo: Roland Halbe

Premios:
Bauwelt Prize 2007. Primer Premio. Categoría: Vivienda Colectiva
Premio Accesibilidad 2006 COA Aragón. Primer Premio Obra Construída.
Seleccionado en el Concurso Nacional de Ideas sobre las experiencias de cambio y las tipologías de futuro de la Vivienda Social y la Vivienda de Protección Oficial en España. Propuestas construidas o proyectadas en los últimos cinco años. CSCAE, 2003

 

Imágenes gentileza > MAGÉN ARQUITECTOS / Fotógrafo: Roland Halbe

hacer click en las imágenes para ampliarlas

Links >

MAGÉN ARQUITECTOS

Otras obras > Club de fútbol en Zaragoza  / Centro de Educación Infantil 'Rosales del Canal', Zaragoza / Nueva Sede del Servicio de Medio Ambiente de Zaragoza en el Parque de Riberas del Río Ebro / Edificio de 44 Viviendas VPA en Tauste, Zaragoza, España / Sede de la Comarca del Bajo Martín. Híjar - Teruel, España

 

diseño y selección de contenidos >> Arq. A. Arcuri