Buenos Aires / Argentina

inicio especiales sugerir noticia links newsletter  

especiales > Edificio de 44 Viviendas Sociales en Tauste, Zaragoza, España / MAGÉN ARQUITECTOS [27/09/10]

Edificio de 44 Viviendas Sociales en Tauste (Zaragoza)

El origen del proyecto parte del análisis de la relación entre el espacio público y el espacio privado en una ordenación prevista por la normativa como manzana cerrada, definida por una edificación existente en el lado sur y el nuevo edificio, con planta en forma de U. La definición del espacio público interior, capaz de generar relaciones con el entorno edificado existente y de dotar de espacios atractivos de transición, mejora las condiciones de las viviendas, limitadas dado su carácter social, aportando un espacio exterior de acceso y relación.

El edificio está situado en el límite Sur de Tauste, población situada a 50 km. al noroeste de Zaragoza. El proyecto evita el diálogo directo en términos formales con el entorno descontextualizado más próximo – el solar limita al norte con una zona verde, al sur con edificios de vivienda colectiva, al este con una zona industrial, y al oeste con la vía de acceso desde Zaragoza y el polideportivo municipal - siendo el espacio público interior el encargado de establecer relaciones y continuidades con los espacios adyacentes para la adecuada implantación de la actuación en su entorno.

Con el objetivo de abordar el carácter urbano del interior de la manzana se plantean dos restricciones en la volumetría del edificio: la primera, encajar el aparcamiento en semisótano en la anchura de la doble crujía de las plantas alzadas de viviendas, renunciando a la ocupación máxima permitida para no reducir las dimensiones del espacio público; la segunda, liberar un porche de generosas dimensiones en el lado norte, bajo el edificio, que relaciona el espacio interior con la zona verde existente. Esta apertura, junto a las situadas en los lados oeste y sur del solar, el arbolado y el mobiliario urbano, contribuyen a entender el interior de la manzana como un espacio público.

El proyecto también debía responder a la accidentada topografía del solar, con importantes desniveles entre el comienzo y el final del bloque, y a las limitaciones programáticas y económicas, habituales en este tipo de promociones. Los condicionantes del proyecto – la economía, presente en la elección de los materiales, y la adaptación a la topografía- se transforman en los argumentos formales del edificio mediante un lenguaje abstracto de bandas horizontales escalonadas, de color blanco y negro. Esta composición, que agrupa y ordena los diferentes huecos de las viviendas, aporta un cierto dinamismo horizontal a la rotundidad volumétrica de la manzana. El encuentro del edificio con el suelo se resuelve mediante un aplacado de piedra caliza en color blanco.

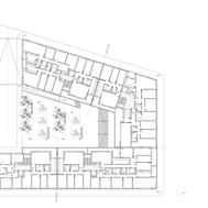
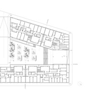
En términos tipológicos, se trata de una promoción de vivienda pública de Suelo y Vivienda de Aragón, con un programa de 44 viviendas de protección oficial, de 3 y 4 dormitorios, aparcamientos y trasteros, en un bloque con planta en forma de U, de cuatro plantas alzadas que albergan las viviendas y una planta semisótano de aparcamiento. Los cuatro núcleos de comunicación dan acceso a tres viviendas por planta con doble orientación. Una de ellas es pasante, con doble circulación en torno al núcleo de servicios, a través del vestíbulo y de la cocina, comunicada directamente con el estar, ambos orientados hacia el espacio interior. En las dos viviendas restantes, el salón, en esquina cuenta con doble orientación, mientras que los dormitorios y la cocina se sitúan a cada lado respectivamente y el núcleo de servicios en el interior.

La especial atención prestada desde el origen del proyecto al tratamiento del interior de la manzana como un espacio exterior cualificado tuvo un feliz corolario administrativo: al término de las obras, el espacio central fue objeto de segregación del resto de la parcela para pasar a ser de titularidad municipal, incorporándose a la red de calles, plazas y espacios públicos de Tauste.


44 Social Housing in Tauste (Zaragoza)

The origin of the project starts from the analysis of the connection between public and private spaces. Planned in the regulation as a city block, the organization is defined for the pre-existing building on the south and the new building, with a “U” shape plan. The definition of the interior public space is able to generate connections with the pre-existing buildings in the surrounding and to provide with attractive transition spaces. It also improves housing conditions, limited due to their social character, giving them an external space of access, meeting and gathering.

The building is located at the south urban edge of Tauste, which is situated 50 km away from Zaragoza. The project avoids the direct dialog in a formal way with the closest out of context surrounding – the site borders at the north with a green space, at the south with housing buildings, at the east with an industry zone and at the west with the access road from Zaragoza and the municipal sports centre. The interior public space establishes connections with the adjacent spaces to get an appropiated integration in the place.

With the purpose of dealing with the urban character of the interior of the city block two restrictions are proposed: the first one is to fit the garage of the semibasement floor in the same width as the other floors, renouncing the allowed highest occupation, in order not to reduce the dimensions of the public space; the second one is to free a big porch at the north side, under the building, which relates the interior space with the pre-existence green space. This opening, together with the openings situated at the west and the south of the site, the trees and the urban furniture, helps understand the interior of the block as a public space.

The project also had to respond to the topography of the site, with an important slope between the beginning and the end of the block, and to the programmatic and economic limitations, which are common in this kind of development. The determining factors of the project - the economy present in the material election and the adaptation to the slope – are converted into the formal arguments of the bulding by means of an abstract language based on horizontal leveled black and white strips. This composition, which arranges and brings together the different openings of the housing units, gives a certain horizontal dynamism to the volume of the block. The detail between the building and the floor is resolved with panels of white limestone.

Regarding typology, this is a public promotion from the public enterprise Suelo y Vivienda de Aragón, with a program of 44 subsidized housing of 3 or 4 bedrooms, garages and storages rooms, in a block with a “U” shape plan, with three stories for the housing units and the garage located in the semibasement.

The four circulation core give access to three housing units with double orientation in each floor. One of them is cross-through with a double circulation around the services core, through the hall and the kitchen, and communicated directly with the living room, both orientated towards the interior space. In the other two housing units, the living room is in the corner and has a double orientation, while the bedrooms and the kitchen are located on each side respectively and the service core in the interior.

The special attention given from the origin to the treatment of the interior of the block as a good quality exterior space had a happy administrative end: at the completion of the works, the central space was segregated from the rest of the site and added to the net of streets, squares and public spaces of Tauste, property of the town council.


Ficha técnica

Ubicación: Tauste, Zaragoza, España

Arquitectos: Magén Arquitectos (Jaime Magén, Fco. Javier Magén)

Desarrollador: Suelo y Vivienda de Aragón

Colaboradores: Beatriz Olona (arquitecto); Carlos Munilla (quantity surveyors); Rafael González (ingeniero); José Luis Sánchez (ingeniero estructural)

Superficie: 6.546,10 m2

Presupuesto: 24.073.091,92 €

Constructor: UTE Afer Ecsa Aragon SA – Fonorte ECSA

Concurso: 2006

Proyecto: 2006

Construcción: 2007-2010

 


Imágenes gentileza > MAGÉN ARQUITECTOS / Fotógrafos > Jesús Granada / Pedro Pegenaute

hacer click en las imágenes para ampliarlas

Links >

MAGÉN ARQUITECTOS

Otras obras > Edificio de 68 viviendas de protección oficial en Zaragoza / Club de fútbol en Zaragoza / Centro de Educación Infantil 'Rosales del Canal', Zaragoza / Nueva Sede del Servicio de Medio Ambiente de Zaragoza en el Parque de Riberas del Río Ebro, España / Sede de la Comarca del Bajo Martín. Híjar - Teruel, España

 

diseño y selección de contenidos >> Arq. A. Arcuri