Buenos Aires / Argentina

inicio especiales sugerir noticia links newsletter  

especiales > Viviendas en Carabanchel, Madrid - España / Foreign Office Architects  [21/01/08]

Carabanchel Housing, Madrid - Spain

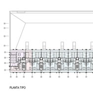
The site is a 100x45 parallelogram oriented north-south and limiting on the west with a new urban park and on the north, east and south with similar housing blocks, located into a new development in the south of Madrid. The regulation sets the number and type of units, that have to meet certain percentages of larger and smaller areas, and have a maximum height, but not the alignment within the rectangular plot.

Given the adjacency to the future urban park and the North-South orientation of the site, our proposal was to compact the volume within the given height so that every unit will have double orientation East-West. In order to achieve this, the units become a sort of 13,40m long “tubes” that connect both façades and avoid any type of structure in the partitions between apartments. This concentration on the Western side of the plot allows us the possibility of providing a private garden for the units on the eastern side, to be located above the parking belonging to the units.

The residential units are therefore opened to two different gardens on each orientation, and are fully glazed in the façades. Each side of the building is provided with a 1.5m wide terrace along the full façade that will make possible a semi-exterior type of use during certain seasons. These terraces are enclosed with bamboo louvers mounted on folding frames that will provide with the necessary protection from the strong East-West sun exposure, provide security to the units and open entirely to the side gardens when desired.

There has been much talk in the past few years about exploring the potentials of customised residential typologies, and the possibility of a differentiated appearance of the units so that inhabitants would have the opportunity to acquire some form of personal identification with their residences. Even if the approach is a legitimate and interesting one, the experiments developed so far have evolved into rather arbitrary arrangements of difference where some of these identities become purely colourful and cosmetic. The risk of this approach is to fall into some sort of provincial ideology in which contemporary urban inhabitants are looking to their homes to be different and specific, while in fact one of the advantages of metropolitan living lies in the possibility of being anonymous, of losing the sort of rural or bourgeois identification between the home and its inhabitant.

These sort of developments absorb substantial resources in this sort of cosmetic contortions sometimes at the expense of quality of detail and quality of space. Our experiment with this project of low-cost residences was to provide the maximum amount of space, flexibility and quality to the residences, and to erase the visibility of the units and their differences into a single volume with a homogeneous skin able to incorporate some gradation of differences not dependent on the architect’s vision, but on each inhabitants desires.


Credits

Foa team: FOREIGN OFFICE ARCHITECTS
Farshid Moussavi, Alejandro Zaera Polo with: David Casino, Leo Gallegos, Joaquim Rigau, Caroline Markus, Nerea Calvillo

[On-site team: David Casino, Detail Project: David Casino, Leo Gallegos, Joaquim Rigau, Caroline Markus, Basic project: Nerea Calvillo]

Client: EMPRESA MUNICIPAL DE LA VIVIENDA Y SUELO (EMVS)

Contractor: ACCIONA - c/ Arturo Baldásano Nº7, escalera derecha, 4º B, 28043 Madrid – Spain

Structural engineer: Jesús Hierro - JHS Proyecto de Estructuras y Arquitectura, S.L. Avda/ Menéndez Pelayo Nº 2, 2º Derecha, 28009 Madrid – Spain - T: +34917811700

Quantity surveyor: Alfonso Cuenca Sánchez - c/ Sirio nº28, escalera derecha, 1º D, 28007 Madrid – Spain - T: +34 607937467

Electrical engineer: FASEVEN - c/Teodoredo Nº 1, 28019 Madrid - Spain - T: +34 914723132

Mechanical engineers: ASETECNIC - c/Mesena 83 bajo, 28033 Madrid – Spain - T: +34 913836416

Telecomunication engineer: Raúl Heranz , S.D.C - Ingeniero Superior de Telecomunicaciones - T: +34 949201020

Detail directions to the building:
ENSANCHE DE CARABANCHEL 16. PARCELA 1.23.1
CALLE DE LOS CLARINETES 9,11,13,15,17,19 y 21
CALLE DE LAS TUBAS Nº 2

Contract value: 6.060.530,12 euro

Gross internal area: 8.183,65 sqm (apartments), 3.200,62 sqm (parking and storage), 11.384,27 sqm (total)

Photography Copyrights:

Francisco Andeyro García y Alejandro García González
e-mail: andeyro[at]archytas.es
M: 0034 647 43 36 19
M: 0034 609 09 84 23

Sérgio Padura
e-mail: sergiopadura[at]telefonica.net
Tel. + 34 666 22 59 58


Imágenes gentileza > FOREIGN OFFICE ARCHITECTS

Fotógrafos > Francisco Andeyro García y Alejandro García González / Sérgio Padura

hacer click en las imágenes para ampliarlas

ampliar imagen

ampliar imagen

ampliar imagen

ampliar imagen

ampliar imagen ampliar imagen ampliar imagen ampliar imagen
ampliar imagen ampliar imagen ampliar imagen ampliar imagen
ampliar imagen ampliar imagen ampliar imagen ampliar imagen
ampliar imagen ampliar imagen ampliar imagen ampliar imagen
ampliar imagen ampliar imagen ampliar imagen ampliar imagen

Links >

FOREIGN OFFICE ARCHITECTS

 

diseño y selección de contenidos >> Arq. A. Arcuri