Buenos Aires / Argentina

inicio especiales sugerir noticia links newsletter  

especiales > tecARCHITECTURE HQ, Ermatingen, Suiza / tecARCHITECTURE [14/06/10]

tecARCHITECTURE HQ, Ermatingen, Suiza (2008)

This project is a compound of spaces on lake constance, recently finished by tecARCHITECTURE swiss AG/ tecDESIGN Los Angeles.

Tec's new offices are part of the building as well as the residence of tec coo Heiko Ostmann and his family.

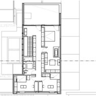
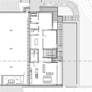
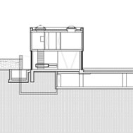
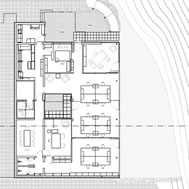
Our company in Switzerland (tecARCHITECTURE swiss AG) acquired the site about 3 years ago to put our office , 2 rental apartment units and a house for tec coo Heiko Ostmann on it. The structure is basically a terrasse house with 4 levels (Heikos house being the upper 2), overlooking lake constanze. people shied away from that site for years (under them formula 1 racer Michael Schumacher) because of legal and structural issues.

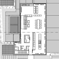
We decided to come up with a steel/concrete construction to maximize thermal storage, and guarantee large spans, in order to pull the outside and the breathtaking views into the building. all units share that view. our office on the lowest level is a simple exposed concrete loft. the building faces north, so the solar impact on the glass is negligible. the south elevation is almost completely closed--it also faces the local cemetry...

The structure is roughly 900m2 and also contains some underground parking accessible by car lift.

Heiko, who lives in the house with his family, and me have been with the first group of architects to address issues of sustainability in -then- Germany.

We designed some of the first naturally ventilated low - impact office buildings, and have carried those ideas through our work.

The Ermatingen building features state of the art sustainable technologies. Energy is being generated geothermally (we drilled 800 ft down), and solar. heating and cooling works through activated masses - hence the concrete, open floors etc.

tecARCHITECTURE


Imágenes gentileza > tecARCHITECTURE

hacer click en las imágenes para ampliarlas

Links >

tecARCHITECTURE

 

diseño y selección de contenidos >> Arq. A. Arcuri