Buenos Aires / Argentina

inicio especiales sugerir noticia links newsletter  

especiales > Viviendas para Estudiantes Poljane, Liubliana - Eslovenia / Bevk Perovic Arhitekt [08/01/08]

Student Housing Poljane, Ljubljana

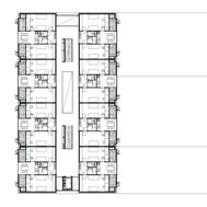
Student Housing project by Bevk Perovic Arhitekti is a building on the edge of Ljubljana city centre, near the river bank, comprising of 56 dwelling units for students of Ljubljana University.

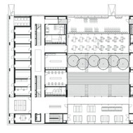
It is a building of high programmatic clarity – a series of public programs (spaces for teaching, communal living and leisure) are concentrated in a horizontal transparent base – while series of student living units hover above in two slabs.

Student units are organized around central service cores containing bathrooms and kitchen/dining rooms, which appear on the elevation of the buildings as huge openings – windows like 'eyes', overlooking the street. Adjoining student bedrooms are, in turn, screened from the street by series of folding panels in aluminium, intricately perforated, protecting private lives of inhabitants from the street bustle.


Student Housing Poljane

Address: Potočnikova 52, SI-1000 Ljubljana

Client: Ministry of Education and Sport

Programme: Student Housing, 56 units, 220 beds, total 13.000m2 including carpark

Project team: Bevk Perovic Arhitekti - Matija Bevk, Vasa J. Perović, Ana Čeligoj, Ursula Oitzl

Project: 2004-2005

Execution: 2005-2006


Imágenes gentileza > Bevk Perovic Arhitekti / Fotógrafo > Miran Kambič

hacer click en las imágenes para ampliarlas

ampliar imagen

ampliar imagen

ampliar imagen

ampliar imagen

ampliar imagen ampliar imagen ampliar imagen ampliar imagen
ampliar imagen ampliar imagen ampliar imagen ampliar imagen

Links >

Bevk Perovic Arhitekti

Ljubljana University

Otras obras > House D, Liubliana - Eslovenia

 

diseño y selección de contenidos >> Arq. A. Arcuri