Buenos Aires / Argentina

inicio especiales sugerir noticia links newsletter  

especiales > Sirolli - Resta arquitectos/ Concurso Nacional de Anteproyectos para el Edificio del Área de Investigación en Agronomía de la Estación Experimental Agropecuaria (EEA) Balcarce (Argentina) [05/11/05]

Concurso Nacional de Anteproyectos para el Edificio del Área de Investigación en Agronomía de la Estación Experimental Agropecuaria (EEA) Balcarce (Argentina), promovido por el Instituto Nacional de Tecnología Agropecuaria (INTA)

1er premio: Julián Sirolli - Claudia Resta arquitectos / Colaboradores: Gabriela Pasquini y Verónica Sposato

 

Memoria descriptiva

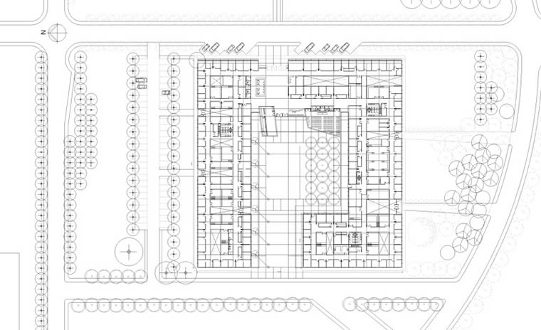
La propuesta plantea una estructura de alto nivel de flexibilidad. Un contenedor de planta profunda con un gran patio central, que permite gran variedad de cambios en la organización de los sectores internos. Estos sectores pueden cambiar internamente, crecer a expensas de otros que se achican, o adaptarse a variaciones organizativas en el tiempo, sin alterar el orden planteado para el conjunto del edificio. La continuidad de la superficie de la planta y de sus sistema circulatorio supera en este sentido las limitaciones y rigideces de las organizaciones por pabellones.

Un sistema de bandas paralelas concéntricas, con oficinas en los bordes exteriores y laboratorios en el centro, es atravesada, casi de manera aleatoria, por pequeños tajos o patios, a veces internos, y a veces conectados con las fachadas, de modo de permitir el ingreso de la luz y el verde en el interior del edificio. La posición casi aleatoria de estos patios produce una gama de contextos de trabajo siempre diferentes y por lo tanto claramente identificables

Las pieles exteriores son siempre vidriadas de piso a techo cuando están en contacto con el patio principal y en los patios más pequeños, de modo de plantear una planta diáfana, con diferencias sutiles entre el interior y el exterior.

Los ajustes al programa pueden producirse en la etapa de proyecto, cambiando de lugar estos patios, sin alterar la estructura general de la propuesta.

El patio central, con una galería perimetral, permite un sistema múltiple de relaciones entre los distintos sectores a través de un espacio exterior controlado. En el cincuenta por ciento de su superficie, un pequeño macizo de árboles provee de sombra a la fachada norte, y actúa como regulador de la luz hacia el interior.

Sobre el lateral sur del patio, una línea de aerogeneradores de energía eléctrica plantea la necesidad de comenzar a pensar tecnologías, inagotables y no contaminantes, alternativas a las tradicionales no renovables. Esta idea se refuerza con la inclusión de colectores solares sobre la terraza, para la provisión de agua caliente.

 

Memoria técnica

La estructura es un sistema concéntrico de losas paralelas de hormigón armado, armadas en una sola dirección, de manera de evitar vigas transversales, que pudieran obstaculizar la distribución flexible de las instalaciones. Este sistema se apoya sobre una grilla de columnas de 9.30m x 5.00/7.00m. La cubierta de losas hormigón con sus sistemas de aislación hidrófuga protegido por un piso de baldosas flotantes removibles, actúa como una terraza técnica que hace de soporte a los sistemas de colectores solares, equipos de extracción e inyección, condensadores de aire acondicionado, y demás artefactos que fueran necesarios, incluidos los interiores en las cuatro salas de máquinas.

La envolvente se plantea con muros de mampostería de ladrillo hueco y carpinterías de aluminio, de distintas dimensiones, protegidas por distintas pieles de parasoles, también de aluminio, de acuerdo a la orientación de cada una de las fachadas.

En el interior, excepto en los núcleos de servicios concentrados, o en los pequeños paquetes sanitarios distribuidos en toda la planta, que se construyen con tabiques de ladrillos huecos, se proponen sistemas de tabiques modulares removibles de aluminio, vidrio y paneles. En los casos de aislaciones especiales, se procede de acuerdo a los requerimientos planteados por las bases para cada uso particular.

Cuatro núcleos de servicios e instalaciones principales y se ubican estratégicamente, con salas de máquinas en la terraza, de modo de distribuir desde estas últimas los distintos sistemas de instalaciones. La distribución se produce por el cielorraso técnico sobre una de las circulaciones horizontales que recorre todo el edificio.

El agua caliente para consumo se alimenta con un sistema mixto y complementario de termotanques a gas y tanques acumuladores alimentados por grupos de colectores solares en la terraza, próximos a cada sala de máquinas. Este sistema permitiría prácticamente eliminar el consumo de gas durante el verano, y reducirlo en una proporción importante durante el invierno.

La calefacción se plantea desde cada una de las cuatro salas de máquinas, con calderas que alimentan serpentinas de intercambio por sector, en equipos descentralizados de distribución de aire caliente. Estos mismos equipos contienen los ventiladores y evaporadores que proveen de aire frío, Sobre la terraza se ubican en una relación directa de proximidad, los correspondientes condensadores que alimentan conjuntos de equipos.

Un conjunto de aerogeneradores, proveen de energía eólica para la generación de electricidad que puede acumularse en un sistema de baterías que permiten una alimentación complementaria a la red de 220 volts. Este sistema, que colabora parcialmente en el ahorro del consumo de electricidad, pretende expresar la necesidad de comenzar a enfrentar el no muy lejano agotamiento de las energías no renovables, desde un edificio emblemático como puede ser el de los laboratorios del INTA.

 

Imágenes gentileza > Sirolli - Resta arquitectos

Links >

Un edificio rural para el INTA [Página 12]

 

I inicio I sugerir noticia I especiales I newsletter I links I agregar a favoritos

 

diseño y selección de contenidos >> Arq. A. Arcuri