Buenos Aires / Argentina

inicio especiales sugerir noticia links newsletter  

especiales > Shell House, Karuizawa - Japón / Kotaro Ide - ARTechnic architects  [27/07/09]

Shell House, Karuizawa - Kitasaku - Nagano, Japan

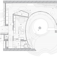
The plan was to build the villa around the big fir tree as the center of the site, with a row of pine trees as the main view. Initially, we had planned to build a shell structure with three dimensionally curved surfaces, and the C shaped section was to surround the fir tree and the plan of the building resembled the letter J In addition, certain parts were planned to hold double volume space. Yet, going over the budget, construction method and finish, the plan was revised down to a shell structure of two dimensionally curved surfaces. The J shaped structure is constructed by two different size oval cylindrical masses cut with curves. The straight part of J, a smaller mass connects to a curved part to J, a larger mass. The top of the oval shaped building wall thickens by 350mm and its width continuously increases up to 750mm at both sides to meet the structural requirements. The free-curved lines appear on the edge, and the three dimensionally curved surface with a twist partly appears on the cut surfaces. However the entire structure was composed by two dimensionally curved surfaces. The floor is built 1400mm above the ground, with the lower half of the shell structure protruding greatly towards the outside, supporting the terrace of the same height. All air and exhaust outlets are installed beneath the sash, letting air run outside through the terrace louver. In addition, by devising unfixed windows, we tried to maximize natural ventilation (we haven’t arranged air conditioning in general parts). While at a glance, the oval shaped cylinder space might appear as wasteful use of space, the functional use of space is maximized by the installation of furniture in the lower half of the oval cylinder.

Description of air conditioning system >>>

Considering the often short and intermittent use of villas, the expanded hard urethane form has been installed to cover 60 mm of the interior wall of the oval cylinder, which will reduce thermal capacity. As for the interior finishing touch and for adding surface strength, synthetic resin with vermiculite material sprayed directly on the urethane form surface was the choice. Often the type of finish seen on the back of panels, it is efficient in preventing fire, absorbing sound, and insulating heat and moisture.

As previously mentioned, the warm air in-floor heating system has been installed. By dividing the oval section with a flat floor, a bow shaped space will appear on the bottom of the oval, which will serve as a heat chamber and be filled with pipes. Warm air that blows from locations of frequent use will efficiently heat the flooring. Eventually, the warm air will also be released through slit installments by the window, preventing cold drafts. At times of absence, if the temperature drops to freezing point, an automatic system installed beneath the flooring will run its antifreeze procedure. Since the system first heats the plumbing space, and as a result, the antifreeze procedure is run by dramatically reduced energy. The system was further customized by adding a dehumidification and ventilation drive, which runs by automatic operation throughout the year. The efficiency of this system is truly remarkable.

 


 

Shell House

Architects: Kotaro Ide / ARTechnic architects

Assistants: Moriyuki Fujihara, Ruri Mitsuyasu, Takashi Mototani (former member), Kenyu Fujii

Collaborator: Manami Ide (designer of customized metal work)

Structural engineer: Naomi Kitayama / NAO

Mechanical engineer: Hiroshi Nakayama / TNA

Electrical engineer: Jyunetsu Satou / EPS

Constructor: Kenji Kusunoki / GIKAKU

Client: Mr.Kunimoto

Location: Karuizawa, Kitasaku, Nagano - Japan

Structure: Reinforced concrete

Foundation: Spread foundations

Building scale: 2stories / Maximum height 6.45m

Site area: 1711.03m2

Building area: 274.38m2 (building coverage ratio 16.04% legal max.20%)

Total floor area: 329.65m2 (floor area ratio 19.27% legal max.20%)

Design and construction management period: October, 2005- May, 2008

Construction period: September, 2006- May, 2008

 


Imágenes gentileza > ARTechnic architects / Fotos > Nacasa & Partners Inc.

hacer click en las imágenes para ampliarlas

Links >

ARTechnic architects

 

diseño y selección de contenidos >> Arq. A. Arcuri