Buenos Aires / Argentina

inicio especiales sugerir noticia links newsletter  

especiales > Pabellón de Italia - Expo Shangai 2010, China  [24/05/10]

Italian Pavilion Expo Shanghai 2010

The project, in fact, proposes a building which integrates a typical model of the Italian urban building, with the architectural structure of the Chinese construction game called Shanghai.

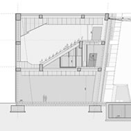
Distribution characteristics

The pavilion covers an area of 3.600 square metres and is 20 metres high. Inside it is divided into irregular sections of different dimensions, connected by a steel bridge structure where the connecting galleries are visible. If needed, the structure can be dismantled and reconstructed, on a smaller scale, in another part of the city.

Architectonic characteristics

The different sections of the building make up a geometrical variety symbolizing the tradition and regional customs which define the Italian identity: a type of mosaic of which each of the parts show a single picture. The form also highlights the topographic complexity of Italian cities, with its numerous short narrow roads and alleys which suddenly open onto a large square, a characteristic which can also be found in the traditional Chinese urban centres. A psychophysical effect of comfort is given by an internal garden, the presence of water and natural light which spreads throughout the area across the patios and by the walls.

New material

The building is decorated on three sides by a film of water that reflects the structure highlighting the natural shinny effects. The brilliance of the structure is reproduced inside both via slits which evoke the narrow alleys between the city buildings, and also thanks to the use of transparent cement, a new, recently created multifaceted material. Because of its particular and diverse component on the different sides of the building, this material generates a twofold architectural effect, from the outside a nocturnal effect of the liveliness inside, and from the inside, the outside daylight atmosphere.

The surface of the pavilion will appear transparent with the sides made up of self-cleaning glass.

Bioclimatic function

The Pavilion has been created as if it were a bioclimatic ‘machine’ with the aim of saving energy. The photovoltaic elements integrated in the glass covering guarantee protection from radiation, while the light-technologies of the building not only aims at highlighting the spaces, but also favours the saving of energy.

 

Title: Italian Pavilion Expo Shanghai 2010

Architects: Giampaolo Imbrighi, Teresa Crescenzi, Antonello De Bonis, Cosimo Dominelli, Francesco Iodice (iodicearchitetti), Giuseppe Iodice (iodicearchitetti), Marcello Silvestre (iodicearchitetti)

Client: Ministero degli esteri

Project area: 6000 m2

Project year: 2008-2010

 

Imágenes gentileza > iodicearchitetti

hacer click en las imágenes para ampliarlas

Links >

iodicearchitetti

Expo Shanghai 2010

Otras obras > Casa Doppia, Aversa - Italia

 

diseño y selección de contenidos >> Arq. A. Arcuri