Buenos Aires / Argentina

inicio especiales sugerir noticia links newsletter  

especiales > Parque Bicentenario y Museo de la Memoria, Medellín, Colombia [17/10/10]

Parque Bicentenario y Museo de la Memoria, Medellín, Colombia

En conmemoración de los 200 años de independencia de Colombia, se propone desarrollar un proyecto urbano Arquitectónico que genere un impacto social, ambiental y espacial en un sector que a través de los años fue deteriorándose por la invasión de viviendas no planeadas y la mala utilización de los recursos naturales.

El proyecto hace parte del plan maestro del PUI Centroriental, ubicado en el entorno del barrio Boston en la comuna 10 de Medellín, entre las carreras 39 y 36 con calle 54 (caracas) y calle 51 (la playa). Su criterio de emplazamiento responde a la necesidad de recuperar un elemento Histórico y natural como la Quebrada Santa Elena, fuente hídrica importante para la memoria colectiva de los habitantes, donde se genero el primer asentamiento que dio como origen a la ciudad y que pretende ser el eje estructurante del proyecto recuperando el valor histórico que algún día tuvo.

EI Proyecto plantea un área de nueva intervención en espacio público de 21.620 m2, a través de los cuales se busca la recuperación del espacio físico y ambiental de la Quebrada Santa Elena haciendo una considerable siembra de flora nativa, diseño paisajístico, consolidando el sector como una nueva zona de recreación y esparcimiento lúdico, acompañado de un teatro abierto en grama natural y de una pantalla digital interactiva de agua. Sera el inicio y el proyecto detonante de la recuperación ambiental y espacial de la quebrada como eje estructurante de espacio público.

Al interior de esta propuesta se inserta un equipamiento cultural de 3.800 m2 llamado ¨Museo Casa de la Memoria¨, que busca consolidarse como un lugar de conmemoración a las víctimas de la violencia, promoviendo en sus recintos espacios que posibilitan la reconstrucción y difusión de la memoria histórica con exposiciones museográficas, con el objetivo de transformar hechos violentos en aprendizajes sociales. Es una excusa para encontrar en esta ciudad un espacio en donde los ciudadanos nos encontremos para revisar nuestra historia y ser capaces de hacer el tránsito de la oscuridad de la muerte que recorrió nuestras calles por varias décadas, a la luz de la esperanza por lograr vivir frente una ciudad que se construye con nuevos espacios para su vida.

A partir de esta primicia, el edificio se desarrolla como un Túnel, de recorrido descendente, que pretende generar en su recorrer sensaciones de esta transición de la oscuridad a la luz, apoyadas con guiones museográficos y educativos, itinerantes y permanentes, que contaran historias de nuestro conflicto que se ha extendido por más de 40 años.

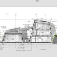
Su programa se desarrolla en tres niveles, siendo el nivel intermedio (N 0.0) el que albergue el acceso, las taquillas y dos grandes salas de exposición divisibles dependiendo de los guiones museográficos a exponer; un nivel superior (N +4.00) donde se ubicara el Centro de Documentación , Archivo y espacio para consulta; y un nivel inferior ( N-5.00 y -6.50) donde se establecerán talleres educativos, un auditorio para 270 personas, Oficinas administrativas, Galería Infantil, Galería 3 o de salida, La Sala de Reflexión, Restaurante, tienda y Zonas técnicas.

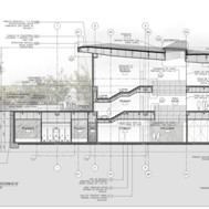
La estructura será mixta, pórticos y losas de concreto que albergaran el programa, envueltos por un esqueleto metálico que conformara la envolvente en fachadas y cubierta del edificio. Es una gran piel plegada, imagen unificada del edificio, que alberga acciones pasivas, como una cámara de aire para el control térmico, una adecuada ventilación natural para evacuar el aire caliente contenido en la cámara, disposición de vanos profundos en ángulo para evitar la incidencia directa del sol y lucernarios compuestos con la geometría del edificio para una adecuada iluminación con luz natural indirecta.


In commemoration of Colombia’s 200 years of independence, rises a proposal to develop an urban project with aims to generate a social and environmental impact in a city’s sector which through the years has been deteriorating by housing invasion and the constant misuse of natural resources.

The project makes part of a master plan called Central-PUI, and it is located at Boston’s neighborhood, in the 10th district of Medellín, Colombia; between the 39th till 36th Carrera and the 54th till 51st street. The design criteria for this project, responds to the need to restore a historical and natural element such as the Santa Elena Stream, an important water source for the collective memory of the inhabitants of the city. Along this stream the first settlements where originated, which later led to the development of the city as known today. This element intends to be the main and guiding axis of the project by the recovery of its historical meaning.

The Project intervention develops 21,620 m2 of new public space, through which it seeks a physical and environmental recovery of the Santa Elena Stream. This will be done by a considerable amount of native flora planting, landscape design, strengthening of the sector as a new area of recreation with leisure facilities, including an open theater with natural grass and an interactive digital display of water. As said before, this project will trigger the environmental and spatial recovery of the stream, with the streams borders as the structure and primary target for public space generation.

Within this proposal, a cultural facility of 3,619 m2 called ¨ Museo Casa de la Memoria " is included, and seeks to assign a special place for the remembrance of victims of the violent conflict in Colombia and all around the world, promoting in its enclosures, spaces to recreate and disseminate throughout exhibits, historical events, with the aim of transforming violent acts into social learning. The museum is another good excuse to find in this city a place where people meet to review our history and be able to assimilate the transition from the darkness of the death that swept our streets for decades, into the light of hope of living in a city less violent and with more public spaces for social interaction.
Starting form this premise, the building is like a tunnel, looking to revive a descending journey, pretending with this, to recreate sensations of the so called transition from darkness to light, supported by itinerant or permanent educational scripts, which will tell stories of our conflict that has been present for over 40 years.

The building’s program is divided into three levels. The intermediate level is the museum’s principal access, where we can find the ticket office and two large exposition rooms. The exposition rooms can be divided depending the museum’s need of space for each exhibit. A higher level houses the Documentation Centre, an adequate space for files and documentation to be consulted by the community. And finally at a lower level it is establish de following: an educational workshops, an auditorium for 270 people, administrative offices, a children's gallery, the 3rd Gallery or exit, the Reflection Chamber , the restaurant, a small shop and technical areas.

The building will use two different structural methods. Porticos and concrete slabs will hold the inside program, mean while a metallic skeleton structure will surround and sustain the building facades and inside roofing. This last structure is like a big folded double skin, which will act as an air chamber for thermal control, adequate for natural ventilation and for hot air evacuation. It will also have deep bays available to prevent direct incidence of sunrays and skylights designed with the same geometry as of the building for an excellent and efficient indirect natural lighting.


Ficha técnica

Promotor
Alcaldía de Medellín- Obras Publicas

Gerencia:
Empresa de Desarrollo Urbano (EDU)
gerencia Auxiliar de Proyectos urbanos integrales- PUI Centoriental

Equipo de Diseño:
Arquitectos
Juan David Botero, Maria Fernanda Vasco O, Carla Cristina Gil, Jorge Adrian Gaviria, Catalina Jaramillo, Daniel Santiago Herrera, Elías José Gomez, Víctor Hugo Rodriguez, Alejandro Naranjo, Oscar Santana
Asesor diseño: Arq. Carlos Mario Rodriguez

Ingenieros:
Ing. Civil Sergio Alberto Cuervo, Ing. Civil Luz Tatiana Medina, Ing. Forestal Lady Orjuela
Ingeniero Calculista: Gabriel Gutiérrez Ingenieros, Jaider Sepulveda

Asesor Iluminación
Ligth Cube

Asesor Bioclimático:
PVG Arquitectos

Estudio de Suelos:
Suelo y Ambiente

Contratistas:
Consorcio Bicentenario 2010

Ubicación:
Medellín- Colombia

Año de construcción:
Etapa 1 - 2010
Etapa 2 - 2011

Area de Superficie:
Etapa 1 - 6.000 m2
Etapa 2 - 15.000 m2


hacer click en las imágenes para ampliarlas

 

 

diseño y selección de contenidos >> Arq. A. Arcuri