Buenos Aires / Argentina

inicio especiales sugerir noticia links newsletter  

especiales > Otto Bock Science Center Medical Technology, Berlin, Alemania / Gnädinger Architects [15/03/10]

Otto Bock Science Center Medical Technology, Berlin - Gnädinger Architects

For the exterior wall, the architects designed a bold, expressive, aluminum and glass façade, thus embarking on a path, which is unusual to the city. They provide a kind of acupuncture of new architecture within the traditional stone buildings and glassy modernism of Berlin.

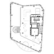
In architectural design, high-tech and nature should blend in a harmoniously. Organic, white, exterior buckled bands encircle the rounded structure, based on the model of human muscle fibers, a metaphor for the simulation of complex biological processes and structures of the human body. The pearl-white-coated, high-gloss aluminum façade was completed as a curtain-wall construction. The cut aluminum plates and the flush-bonded, black enameled stepped profile glazing are reminiscent of modern automotive design. The structural system is a six-storey reinforced concrete frame. Inside, the functional surfaces surround a central access and technical core. The zoning of the plan with a windmill-like access system allows the planning of different room sizes. Here, the architects arrange the floor space on the periphery and along the glass cladding, so that even behind the dynamic facade, daylight is guaranteed throughout the room, giving the building high quality as a residence and workplace. The training and conference rooms dynamically adjust to what is required and can be transformed according to the event by way of retractable walls.

The interior is consistently minimalist, in accordance with the wishes of the client. The surfaces are white, with silver-gray stone or carpet on the floors. Even the furniture and the exhibits are predominantly white. At the core, in contrast, are colored glass panels with integrated TV monitors to provide information. Dark, wooden panels create atmospheric accents in the elevator and a few select places. Illumination is provided by means of so-called "light cells", which are freely arranged, round light fields of various sizes and heights. The central, three-storey, steel staircase in the exhibition area was designed as a giant, sculptural light object. The translucent foil on the underside is fully backlit.

For this prominent location, special emphasis was placed on a dynamic lighting design with high visibility. The media installations, designed by the Berlin media designers ART+COM, set the building in motion: computer-controlled LED light points integrated into the façade panels create two towering, virtual "Walkers", which are visible from afar.

In the entrance, a “kinetic sculpture” equipped with interactive screens illustrates the logic of the human grasping mechanism. Beneath the entrance canopy, a curved LED strip serves as a dynamic information medium for passers-by.

 


Imágenes > © 2010 Otto Bock HealthCare GmbH

hacer click en las imágenes para ampliarlas

Links >

Gnädinger Architects

ART+ COM

Otto Bock Science Center Medical Technology

 

diseño y selección de contenidos >> Arq. A. Arcuri