Buenos Aires / Argentina

inicio especiales sugerir noticia links newsletter  

especiales > Oficinas VLT , Vicente López - provincia de Buenos Aires, Argentina/ KLM arquitectos [19/01/09]

Oficinas VLT, Vicente López - provincia de Buenos Aires - Argentina

Sobre la construcción existente, la nueva intervención se destaca a la distancia. Levanta la mirada por encima de las casas vecinas mientras busca nuevos horizontes lejanos e infinitos. Levita, se lanza al más allá, mantiene el equilibrio deseado.

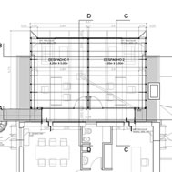
A la distancia se percibe el contraste intencionado que genera la tensión en el paisaje. El uso ha cambiado. Transformado en un espacio de trabajo, la ampliación encomendada recibe a los nuevos habitantes que, alojados en los nuevos despachos directivos, podrán contemplar la naturaleza cercana e inmediata.

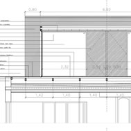
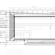
El contraste se manifiesta de múltiples formas: el interior de las oficinas es extremadamente blanco mientras el exterior es sobriamente negro.

La construcción, realizada como un mecano, tiene que poder ser retirada casi a voluntad. Tiene que poder, una vez transcurrida la utilidad programada, volver en silencio a su estado original.

KLM - Enero 2009


Ficha técnica

Autores: KLM arquitectos - Arq. Federico Kelly, Arq. Paula Lestard, Arq. Hernán Maldonado

Ubicación: Vicente López, Provincia de Buenos Aires, Argentina

Superficie: 200m2

Año: 2008


Imágenes gentileza > KLM arquitectos

hacer click en las imágenes para ampliarlas

ampliar imagen

ampliar imagen

ampliar imagen

ampliar imagen

ampliar imagen ampliar imagen ampliar imagen ampliar imagen

Links >

KLM arquitectos

Otras obras > Casa BR , Tigre - provincia de Buenos Aires, Argentina

 

diseño y selección de contenidos >> Arq. A. Arcuri