Buenos Aires / Argentina

inicio especiales sugerir noticia links newsletter  

especiales > Oficinas Estudio AG, Martinez – Pcia. de Buenos Aires - Argentina / Alric Galindez Arquitectos [15/10/08]

Oficinas Estudio AG, Martinez – Pcia. de Buenos Aires - Argentina

Después de años de trabajo, decidimos encarar la construcción de nuestro estudio. Físicamente se encuentra en un terreno en esquina en la intersección de las calles Catamarca y Caracas, en Martinez (Provincia de Buenos Aires, Argentina). La zona está en pleno desarrollo modificándose el uso de studs de caballos de carrera por nuevos emprendimientos de oficinas y restaurants, consolidándose como una nueva centralidad en la zona de San Isidro.

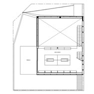
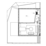
El código de edificación establece una altura máxima y retiros a respetar. Debido a su situación de esquina decidimos que la construcción debía actuar en ese sentido, por lo que decidimos armar un volumen de chapa que a través de distintos desplazamientos generase distintas situaciones hacia la esquina, tanto en horizontal como en altura. La cubierta se levanta generando una entrada de luz, la terraza de la planta superior se tensiona hacia la esquina, en planta baja se abre una de sus caras generando un patio.

Decidimos trabajar con la chapa como material expresivo, con el fin de darle un carácter de fábrica, taller. y a su vez la posibilidad de una construcción rápida y económica. Utilizar este material nos hizo reflexionar de que forma había que trabajarlo, de como se podía expresar el modo en que se iba abriendo esa lata, y como se debían resolver sus terminaciones. Consideramos importante la resolución de la esquina. que mediante la posibilidad de doblar la chapa, no fue necesario el uso de de zinguerías, enfatizando de esta forma el concepto de piel continua.

Buscamos tener un espacio de trabajo continúo y flexible, de modo de poder soportar distintas configuraciones posibles, siendo importante en ese sentido, la decisión de ubicar por fuera de la caja, los servicios.

Consideramos importante la búsqueda de un espacio acorde con la forma que entendemos el trabajo y la profesión, considerando también los espacios exteriores como espacios de trabajo o de reflexión.

Como situación peatonal, se le dio un tratamiento especial a la vereda, entendiéndola como una sola pieza que genera el camino y el semicubierto de acceso.

La construcción vecina es de baja altura por lo fue posible darle a la medianera, un tratamiento por medio de varias rajas de luz que generan distintos efectos de luz de día y de noche.


Ficha técnica

Obra: Oficinas Estudio AG

Ubicación: Catamarca 2292 – Martinez – Pcia. de Buenos Aires - Argentina

Arquitectos: Carlos Galíndez, Santiago Alric, Federico Lloveras / Colaboradores: Alfredo Quiroga, Sofía Peluffo, Joaquín Adot

Año de realización: 2008

Metros cuadrados cubiertos: 185m2

Metros cuadrados descubiertos: 60m2


Imágenes gentileza > Alric Galindez Arquitectos

hacer click en las imágenes para ampliarlas

ampliar imagen

ampliar imagen

ampliar imagen

ampliar imagen

ampliar imagen ampliar imagen ampliar imagen ampliar imagen
ampliar imagen ampliar imagen ampliar imagen ampliar imagen
ampliar imagen ampliar imagen ampliar imagen ampliar imagen

Links >

Alric Galindez Arquitectos

 

diseño y selección de contenidos >> Arq. A. Arcuri