Buenos Aires / Argentina

inicio especiales sugerir noticia links newsletter  

especiales > Museo de Bellas Artes de Québec, Canadá / OMA, Rem Koolhaas [04/04/10]

Musée national des beaux-arts du Québec (MNBAQ) - OMA

31 March 2010 – The Office for Metropolitan Architecture (OMA), has won the competition for a major expansion to the Musée national des beaux-arts du Québec (MNBAQ). The 12,000m2 new building, a cascade of three overlapping boxes at the juncture of downtown Quebec City and the historic Battlefields Park, will be OMA's first built project in Canada.

The winner was announced by MNBAQ President Pierre Lassonde and the Quebec Minister of Culture, Mme. Christine St-Pierre. The design, led by OMA partners Shohei Shigematsu and Rem Koolhaas in collaboration with associate Jason Long, was chosen unanimously from five submissions by internationally renowned architecture offices.

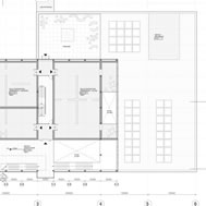
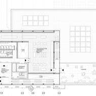
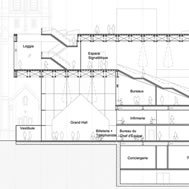
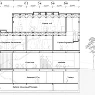
OMA's expansion of MNBAQ – linked underground with the museum's three existing buildings - is located on Quebec's main promenade, Grande-Allée, adjacent to St. Dominique Church. The design aims to integrate the building with the surrounding park and initiate new links with the city. Three stacked galleries of decreasing size – housing contemporary exhibitions (50m x 50m), the permanent contemporary collection (45m x 35m) and design / Inuit exhibits (42.5m x 25m) – ascend from the park towards the city, forming a dramatic cantilever towards the Grande-Allée and a 14m-high Grand Hall, welcoming the public into the new building.

Shohei Shigematsu commented: "Our ambition is to create a dramatic new presence for the city, while maintaining a respectful, even stealthy approach to the museum's neighbours and the existing museum. The resulting form of cascading gallery boxes enhances the museum experience by creating a clarity in circulation and curation while allowing abundant natural light into the galleries."

The project will be executed by OMA's New York office in collaboration with Provencher Roy + Associés, architectes with an anticipated completion date of fall 2013.

OMA


Imágenes > Catalogue des Concours Canadiens

hacer click en las imágenes para ampliarlas

Links >

OMA, Rem Koolhaas

Provencher Roy + Associés, architectes

Musée national des beaux-arts du Québec (MNBAQ)

Catalogue des Concours Canadiens

 

diseño y selección de contenidos >> Arq. A. Arcuri