Buenos Aires / Argentina

inicio especiales sugerir noticia links newsletter  

especiales > Juzgados en Sant Boi de Llobregat, Barcelona / Jordi Badia - BAAS Arquitectes [18/05/08]

Juzgados en St Boi de Llobregat, Barcelona / BAAS. Jordi Badia

Entorno

El edificio debe ubicarse en una plaza de nueva creación que pretende ser un punto de nueva centralidad con varios edificios de uso público. El solar está claramente orientado hacia la plaza puesto que por la parte de atrás la vía del tren corta cualquier comunicación peatonal.

Esta plaza queda conectada con el centro del casco antiguo a través de la rambla, de manera que el edificio deberá presidirla y cualificarla para convertirse en un polo simbólico que contrapese a la plaza del ayuntamiento, por lo que la sala de espera a las salas de vistas (pieza más representativa) se abre a ésta.

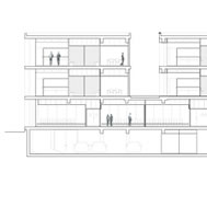
Distribución

El esquema propone organizar el programa a partir de tres barras apoyadas sobre un zócalo, y separadas entre ellas mediante tres patios, que, a través de grandes lucernarios, iluminarán el vestíbulo en planta baja. Este vestíbulo actúa como rótula de todas las piezas de acceso público, y sus núcleos verticales.

El zócalo contiene las salas de vistas, la parte más pública del programa y las barras superiores las oficinas judiciales, una por sala.
Cuatro núcleos verticales, uno en cada esquina, garantizan el buen funcionamiento del edificio, sirviendo a unas comunicaciones concretas: público, jueces, personal interno, etc…

La sala de matrimonios y el registro civil se abren a la calle posterior, apropiándose de su fachada, entendiendo el papel que ésta juega en la conformación de la fachada urbana y del espacio público.

Volumen

El volumen exterior, muy simple, configurado a partir de la imagen de las barras dispuestas sobre un zócalo, se desdibuja intencionadamente con la aplicación de una piel continua, uniformadora, con una componente marcadamente vertical que monumentaliza la pieza y le otorga el carácter que merece. Esta verticalidad se la proporcionan unas grandes lamas de hormigón blanco, que filtran la visión desde el exterior y permiten la máxima transparencia desde el interior.

Piel

Las lamas se colocan con diferentes separaciones e inclinaciones, lo que da un cierto dinamismo al edificio (los juzgados deben parecer vivos, ágiles), a la vez que permite orientar y encuadrar ciertas visiones del entorno.

De esta manera, la imagen de las fachadas irá cambiando según la posición del observador en su recorrido: en perspectiva el edificio será opaco y sólido, mientras que al acercarse será ligero y transparente tal y como se entiende que debe ser la justicia para el ciudadano.

La utilización de vidrios de colores en algunas partes del edificio identificará algunos usos y favorecerá la imagen cambiante de la pieza.

En la fachada de atrás, el sol se filtrará por los patios, iluminando las lamas desde el interior.

 

Ficha técnica

NOMBRE DEL PROYECTO: Juzgados en Sant Boi de Llobregat

SITUACIÓN: Sant Boi de Llobregat. Barcelona.

FECHA PROYECTO: 2002 OBRA: 2007

PROYECTO DE ARQUITECTURA: Jordi Badia

Arquitectos Colaboradores: Jordi Framis, Rafael Berenjena, Sergi Serrat, Marcos Catalán

COLABORADORES EXTERNOS

Cálculo estructural: Eduard Doce, arquitecto

Arquitecto técnico: Francesc Belart

Instalaciones: Consulting Lluís Duart

PROMOTOR: GISA.Departament de Justicia. Generalitat de Catalunya

 

Imágenes gentileza > BAAS Arquitectes / Fotógrafos > Pedro Pegenaute - Duccio Malagamba - Eugeni Pons

hacer click en las imágenes para ampliarlas

Links >

BAAS Arquitectes

Otras obras > CEIP Ferrer i Guàrdia. Granollers, Barcelona

 

diseño y selección de contenidos >> Arq. A. Arcuri