Buenos Aires / Argentina

inicio especiales sugerir noticia links newsletter  

especiales > Sede del Instituto Técnico Judicial Dra. Cecilia Grierson, Buenos Aires / ABA Agencia Buenos Aires [18/08/09]

Sede del Instituto Técnico Judicial Dra. Cecilia Grierson / Primer Premio: ABA Agencia Buenos Aires; Orlando - Bracco + Gigli Socolovksy

Memoria Descriptiva

Introducción-Marco Conceptual

El Concurso Nacional de Anteproyectos Instituto Técnico Judicial Cecilia Grierson, presenta una gran oportunidad de poder establecer un pensamiento integrador y reflexivo de la escala urbana del sector y del carácter funcional de los edificios públicos.

Es por estos motivos que basamos la propuesta en estas dos grandes premisas.

La Escala Urbana

El área en donde se implanta el nuevo edificio, una fracción de parcela del denominado Antepuerto y cuyo normativa urbanística corresponde a la zonificación U10 del Código de Planeamiento Urbano, se halla caracterizada por edificios monumentales, emblemáticos, de usos duros y sin voluntad de armar un tejido con relación a la calle y las actividades cotidianas.

Es por ello que, esta propuesta pretende, aprovechando la máxima superficie edificable y tomándose silenciosamente de algunas líneas del entorno, conformar un edificio de escala baja, contenedor social, que aporte cierta vitalidad al área circundante.

Esta decisión se niega a una competencia en altura con los edificios linderos, ya que esta condicionante afectaría la funcionalidad necesaria que creemos necesitan los edificios judiciales y en especial este programa: un desarrollo horizontal y compacto, con claridad circulatoria y eficiencia constructiva.

El carácter de los edificios públicos

Creemos que un edificio público debe ser entendido a simple vista, clarificar sus recorridos y circulaciones y reflejar en su imagen el funcionamiento interno. Se propone entonces un edificio basado en tres aspectos esenciales:

Claridad funcional y morfológica: geometría simple y circulaciones claras.

Claridad constructiva: utilización de técnicas tradicionales de construcción y el empleo de materiales fácil mantenimiento, perdurables en el tiempo.

Imagen institucional: utilización de materiales nobles (piedra, hormigón, madera) logrando una imagen contemporánea con carácter institucional.

Premisas:

Se plantea así, un proyecto que intenta convertir lo complejo en simple, resolviendo con su corte , la claridad circulatoria y edilicia.

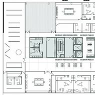
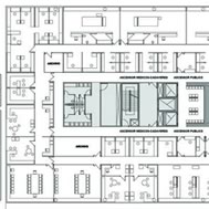
1-Se adopta, una planta que garantize la máxima pisada construible y perímetro de iluminación y ventilación narural. A su vez, un patio interior ilumina y ventila los locales interiores y aporta criterios de sustentabilidad edilicia. Los núcleos circulatorios centrales, garantizan el máximo perímetro funcional...con la máxima flexibilidad y adaptabilidad a futuro.
Un árbol de la vida en el interior y material vegetal en el techo hacia el interior, revitalizan la dureza del uso en cuestión.

2- accesos independientes:

-2°subsuelo-estacionamiento y servicios

-Entrepiso sobre 2° subsuelo -alcaldia detenidos y servicios

-1°subsuelo- tanatologia –ambulancias y enntrada de cadaveres

-Nivel o,25m- acceso medicos

-Nivel +3.5-plano noble- publico gral (el piano nobile, el auditorio, la cafeteria, el hall de contencion a los familiares de las victimas, son aportes al desarrollo de una mayor relacion con la calle, el espacio publico y el entorno)

-1°2°3°Nivel-áreas con afluencia pública y menor restricción.

3- la alcaldia en el entrepiso técnico ,permite el acceso de patrulleros(2xdia) con acceso directo al núcleo de presos..

4- Los autos particulares y de servicio siguen al 2°subsuelo.

5- Las ambulancias tienen ingreso y egreso diferenciado y rápido por cuestiones de catástrofes y operatividad, sobre la margen sudoeste del predio

6-Se plantea una clara la diferenciación circulatoria vertical, en núcleos con palieres privados, que segregan el tránsito de médicos con material cadavérico, de los presos y del público en general. En horizontal, se materializa una doble circulación, técnica, para médicos. Resulta importante el sistema de esperas adyacentes a cada núcleo. Las mismas contaran con plasmas con aviso de turnos (monitoreados en la PB, ingresos y egresos al sistema...para garantizar un acceso a las circulaciones, sin cruces entre detenidos, material cadáverico y público.) Esta organización permite, la máxima seguridad edilicia con la mínima circulación.

7- La imágen contemporánea, simple y austera , pretende reflejar las funciones internas del edificio (la forma sigue a la función), a expensas de una mayor complejidad exterior que no creemos necesaria en este caso


Imágenes gentileza > ABA Agencia Buenos Aires

hacer click en las imágenes para ampliarlas

Links >

ABA Agencia Buenos Aires

 

diseño y selección de contenidos >> Arq. A. Arcuri