Buenos Aires / Argentina

inicio especiales sugerir noticia links newsletter  

especiales > Instituto Modelo del Sur. Nivel Primario - Avellaneda, Buenos Aires, Argentina / Esteban-Gaffuri-Torrado Arquitectos + Tannenbaum Arquitectos [13/04/10]

Instituto Modelo del Sur. Nivel Primario - Avellaneda, provincia de Buenos Aires, Argentina

No sabemos de ningún problema formal, solo de problemas constructivos. La forma no es la meta sino el resultado de nuestro trabajo. La forma por si misma no existe….Precisamente nos interesa mas liberar la practica de la construcción de los especialistas en estética, para que vuelva a ser aquello que únicamente debería ser, es decir, CONSTRUCCION “. Mies van der Rohe 1923

La construcción de una escuela primaria en Avellaneda, provincia de Buenos Aires, durante los ajustados tiempos del receso escolar de verano, nos permitía solamente un poco menos de 60 días hábiles de obra. La definición de una estructura clara, marco la estrategia del proyecto. La búsqueda de ligereza y autonomía de los elementos constructivos nos llevo a dar con un lote de perfiles grey de 32 cm de alto abandonados a muy bajo costo, que originariamente servirían para una obra vial no realizada. Este hallazgo nos obligo a invertir el proceso de cálculo de secciones de la estructura por la verificación de las piezas en función del proyecto. Así la estructura define el proyecto y se convierte en el orden interno y espacial de la propuesta.

Cuatro pórticos paralelos, arriostrados por secciones menores, definen una retícula espacial. Dónde cada módulo responde a una función programática especifica. Esta trama de columnas y vigas se completo con losas pretensadas livianas apoyadas sobre los pórticos de borde y centrales. Para facilitar el montaje en obra, los apoyos se proyectaron desplazados; sobre los pórticos centrales, las losas se apoyan sobre las vigas metálicas, mientas que en los pórticos de borde, en el ala interior del perfil.

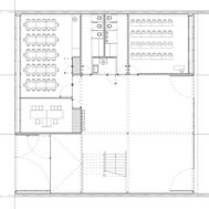
El programa es sencillo, en planta baja se ubicó la dirección, comedor de alumnos, baños y sala de computación. Un espacio semicubierto hace las veces de hall de acceso, patio de juego o salón de actos. En planta alta seis aulas se disponen a ambos lados de un generoso paso central.

El retranqueo de la carpintería de acceso, genera un semicubierto que da reparo a la espera de los padres, en este punto una transparencia diagonal permite ver claramente el patio posterior de juegos y la bandera de formación.

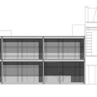
Frente y contrafrente tienen una orientación este y oeste pleno, por lo cual el control solar sobre ambas fachadas fue una preocupación original del proyecto. Se coloco una malla metálica tipo celda, constituida por chapa de 2mm de espesor y 35mm de profundidad, con una trama cuadrada de 40x40mm. Este material, utilizado generalmente en forma horizontal para pisos industriales, respondía correctamente a las necesidades tanto de seguridad como de control de sol. Generando un velo de sombra deseado en el interior de las aulas en los momentos de mayor incidencia solar, según las orientaciones ya sea por la mañana o por la tarde.

Una lucarna orientada al norte sobre la escalera principal baña de luz el sector central de la planta.

El edificio finalmente logra ser ligero, estricto, medido y sugerente, cualidades buscadas desde un principio. Construyendo o mejor dicho proyectando desde la CONSTRUCCION.

 

Ficha Técnica:

Obra: Instituto Modelo del Sur Nivel Primario

Autores: Esteban-Gaffuri-Torrado Arquitectos + Tannenbaum Arquitectos

Proyecto, dirección y administración de obra: Javier Esteban, Ligia Gaffuri, Martin Torrado arqs. - Romina Tannenbaum, Mario Tannenbaum arqs.

Ubicación: Palaa 530. Avellaneda. Provincia de Buenos Aires, Argentina

Consultor estructural: Angel Santos Ingeniero

Superficie del terreno: 550 m2

Superficie construida: 578 m2

Año de proyecto: 2010

Tiempo de obra: 60 dias

 


Imágenes gentileza > Esteban-Gaffuri-Torrado Arquitectos / Fotografia: Gustavo Sosa Pinilla

hacer click en las imágenes para ampliarlas

Links >

Esteban-Gaffuri-Torrado Arquitectos

 

diseño y selección de contenidos >> Arq. A. Arcuri