Buenos Aires / Argentina

inicio especiales sugerir noticia links newsletter  

especiales > House L, Glienicke - Berlín / Pott Architects [03/03/08]

House L, Glienicke - Berlin, Pott Architects
A house that grows out of the landscape.

Life in the countryside, in the midst of nature, has always had a magical, inspiring quality. To create a peaceful home in natural surroundings as a balance to the hectic world of work in the city is a lifestyle ambition which many people find especially appealing. These thoughts were the starting-point for the discussion with a family of four, who had chosen an extensive wooded site on a slope for the realisation of their plan to build themselves a home of distinctive character. The objective was a house designed sensitively
enough to harmonise with its natural surroundings, leaving intact the mature trees and the whole forest-like atmosphere of the setting. The building was to feel wide open to the changing natural seasons and the sunlight, drawing them close into the family’s everyday home life. It was to be an ecologically responsible building, capable of functioning sustainably with minimum demand on resources. Research involving a large number of variations, models and simulations prepared the way for agreement with the clients on an appropriate overall concept. Completed in spring 2006, the house in question is testimony to the thoroughness of the planning process, and points the way forward to new solutions for life in harmony with nature.

Location

The 3600 m² property is situated in Glienicke, in the immediate vicinity of the ‘Tegeler Flies’ nature conservation area. In an initial phase, a dangerously dilapidated villa in the centre of the plot was demolished, restoring the forest-like character of the land. Following a daylight simulation exercise, and on the basis that no trees would be felled for the new building, we determined the ideal siting on a glade running along the northern boundary of the property. The house is sited here across the slope, cutting across a fold in the slope. It opens out southwards, down the fold in the slope, towards the sun. On the north side, it digs into the green rising land and is hardly overlooked at all from outside the property.

Development and use

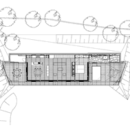
On a first visit to the property, it comes as quite a surprise when one follows the wooded path uphill, skirting the eastern boundary of the property, to discover the glade opening up as one approaches, and the building seeming to grow out of the land. An open-front atrium in the garden storey forms a forecourt and leads into the entrance area. The visitor enters the house in the garden storey and goes straight to the access corridor at the rear, along the south side of which there is a row of individual rooms for children, pastimes, guests and work; to the north is the foyer with wardrobe and service areas. At the midpoint of the access corridor, opposite an open communal area, a narrow, straight stairway leads to the upper storey. The daylight flooding from above into the stair slit beckons upwards, and reaching the top one finds oneself in a room with a view, itself flooded in light and at treetop level. A large area of timber flooring, laid out to take fullest advantage of the light, provides ample space for the communal living room and the parents’ rooms. Space for various specific activities and domestic functions is arranged along the back of the building: storage, kitchen, boudoir, bathroom, wellness room and sauna. The glass front wall (partly openable), the full-length roof space and the spacious balconies help to fuse the indoor and outdoor space, blurring the transitions. Family and social life are played out with nature visible all around. The living area itself lives and changes in time with the daylight and the seasonal changes of the vegetation. External shape of the building, and environmental aspects. The shape of the building follows logically from the topography of the land, the slope being integrated into the design by means of a continuous exterior wall along the rear of the house, and banking to both sides. Flowing from the natural green at the rear are the planted roof area, the open deck in the upper storey and the plinth-like garden storey. With its soft colour tones, the materials used and the complete greening-over, the building is utterly unobtrusive and merges with the landscape. The fully glazed façade facing south means that solar energy can be used to the full and ensures a positive energy balance. At the same time, the house is protected from heat radiation and overheating by the insulating effect of building into the slope. The built-over ground-plan area is regained in the roof garden, which also collects rainwater and allows it to seep away freely in the surrounding soil. An environmentally friendly house, then, that makes use of passive, sustainable means of climate control. In every respect, from its basic concept to its detailed planning, Haus L. is sensitively tailored to the needs of its occupants, and presents innovative solutions for sustainable building in dialogue with nature.


Project: Haus L. Individual House for a four person family

Status: 2006 completed

Location: Berlin . Glienicke Germany

Projectsize: 350 m2 GROSS

Architects: HamannPottArchitekten now Pott Architects and Ulrich Hamann Architekt

Cooperations: Kappes & Partner

Ingenieurbüro: Dr. Müller

Haustechnik: Dr. Specht

Photographs: Rudi Meisel

 

Imágenes gentileza > Pott Architects / Fotógrafo > Rudi Meisel

hacer click en las imágenes para ampliarlas

ampliar imagen

ampliar imagen

ampliar imagen

ampliar imagen

ampliar imagen ampliar imagen ampliar imagen ampliar imagen
ampliar imagen ampliar imagen ampliar imagen ampliar imagen

Links >

Pott Architects

 

diseño y selección de contenidos >> Arq. A. Arcuri