Buenos Aires / Argentina

inicio especiales sugerir noticia links newsletter  

especiales > Casa en Sunami, Japón / Kazunori Fujimoto Architect & Associates [29/09/10]

House in Sunami, Japan

The site is located on the hill spreading the panoramic view of Seto Inland Sea.

In this beautiful scenery, we aimed to the house filled with the air surrounding this area.

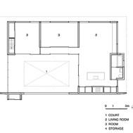
To set the court with skylight at the back of the rooms, it's possible to enjoy the life opening to both of the sea and the mountain.

We selected the shell construction for the roof to get the spread of space.

The slab reinforcement is consist of single layer, and the thickness of the slab is 120mm.

The roof is covering the whole the house no matter which '' inside'' and ''outside''.

Usually, the big beam or column of concrete frame are needed to against for the thrust of the shell.

But in this house, light construction and simple space is realized by arranging a steal frame with the reinforced concrete.

It's free from arbitrary decision and consists of simple construction, but at the same time, there are rich sequence of the space and comfortable relationship between the surroundings.

(Kazunori Fujimoto)

 

Architect: Kazunori Fujimoto - Kazunori Fujimoto Architect & Associates

Location: Mihara, Hiroshima, Japan

Main use: house

Site area: 308m2

Building area: 117.17m2

Total floor area: 115.58m2

Design term: 2009

Construction term: 2010

 

Imágenes gentileza > Kazunori Fujimoto Architect & Associates

hacer click en las imágenes para ampliarlas

ampliar imagen

ampliar imagen

ampliar imagen

ampliar imagen

ampliar imagen ampliar imagen ampliar imagen ampliar imagen
ampliar imagen ampliar imagen ampliar imagen ampliar imagen
ampliar imagen ampliar imagen ampliar imagen ampliar imagen

Links >

Kazunori Fujimoto Architect & Associates

Más imágenes > Flickr

Otras obras > Casa en Ibara, Japón

 

diseño y selección de contenidos >> Arq. A. Arcuri