Buenos Aires / Argentina

inicio especiales sugerir noticia links newsletter  

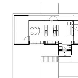
especiales > Casa Schnitzer-Bruch, Mühlgraben - Austria / maaars architektur [04/02/07]

Residence Schnitzer-Bruch

A radical reinterpretation of the classic alpine massive-wood block-technique.

A single levelled prefabricated Hull made of massive wood fins was situated on a concrete basement, wich overhangs at the southside. It includes the technical rooms and the storage.

For the wall construction, wood fins with spigots and sockets are stapled to the needed height, a pair of dried wood dowels is shot through the wall each 30 centimeters and fixes, after the maceration of the dowels through the airhumidity, each fin on its vertical position.

The build of the prefabricated skin including the walls the roofs and the glass parts was done during 9 days.

All the wood parts are untraeted at the in- and the outside, the contrast of the warm hull of wood to the cold and technical glass accords strain to the rooms and focusses the sight to the hills underneath the house.

The heating is done with a woodstove in combination with solar-panels and a controlled air system which are all storing the energy in a buffer storage.


Imágenes gentileza > maaars architektur - Fotógrafo > Bruno Klomfar

hacer click en las imágenes para ampliarlas

ampliar imagen ampliar imagen ampliar imagen
ampliar imagen ampliar imagen ampliar imagen
ampliar imagen ampliar imagen ampliar imagen

Links >

maaars architektur

 

diseño y selección de contenidos >> Arq. A. Arcuri