Buenos Aires / Argentina

inicio especiales sugerir noticia links newsletter  

especiales > Haus 47°40’48”N/13°8’12”E, Austria / Maria Flöckner + Hermann Schnöll  [12/01/09]

Haus 47°40’48”N/13°8’12”E

47°40’48”N/13°8’12”E describes a site in a rural setting which is at the same time specific and universal. The surrounding landscape is unique, but could easily be replaced by another rural or urban location.

The house could equally well be located anywhere else.

Haus 47°40’48”N/13°8’12”E is not created for a specific location, rather it is simply a house in a location - or indeed a location in itself.

This house for a universal setting is merely a hub in a personal network. For some time now one has been able to connect to a service infrastructure quite independently from any social pressure to make that connection in a particular location. This act of connection now takes place inside the house. Even the road network reaches inside the house. The house is an extension of both the vectoral streetscape and the visual landscape (or surroundings).

The horizontally inserted structure comes directly into contact with the gently falling meadow. The surrounding farms, forest edges and mountains emerge emboldened into the landscape. The low, spreading lamina of the living space is reinforced by the two identical concrete slabs. When perceived from outside this living space is part of the surrounding landscape. From inside, these surroundings become part of the living space.

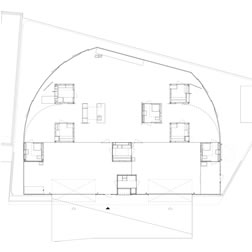
A sense of presence is created by the nine geometrically identical timber modules. The spaces between become places of transition. Surfaces are smooth. Pressure is created.

The resulting living space has neither defined edges nor a homogenous form.

The diverse spaces can be joined and enlarged in a number of ways. The relationships between these spaces are more important than any system of simultaneity. Flexibility in the use of the system grows in step with the intensity of the relationship with the location.

 

 

Haus 47°40’48”N/13°8’12”E

Client: private

Design: Maria Flöckner und Hermann Schnöll

Structural Engineering: gbd Dornbirn, DI Eugen Schuler

Photographer: Stefan Zenzmaier, Kuchl

Site Area: 1,000 m2

Built Area: 558 m2

Design Start: 8/2002

Construction Start: 9/2005

Completion: 4/2007

 

Imágenes gentileza > Maria Flöckner und Hermann Schnöll / Fotos > © Stefan Zenzmaier

hacer click en las imágenes para ampliarlas

ampliar imagen

ampliar imagen

ampliar imagen

ampliar imagen ampliar imagen ampliar imagen

ampliar imagen

ampliar imagen

ampliar imagen

ampliar imagen

ampliar imagen

ampliar imagen

Links >

Maria Flöckner und Hermann Schnöll

 

diseño y selección de contenidos >> Arq. A. Arcuri