Buenos Aires / Argentina

inicio especiales sugerir noticia links newsletter  

especiales > Guest House, Carvalhal, Portugal / PARATELIER Arquitectura [25/05/11]

Habitar las dunas

Lugar

En la reserva natural del pinar de Comporta, característica del habitat costero de las dunas del oceano Atlantico, un increible elemento sorpresa hace este lugar un rincón especial del universo. EL AGUA.

Próximo a la obra, un pequeño lago artificial, intensifica el color BLANCO de la arena, los VERDES y el MARRON de los pinos y el AZUL del cielo.

El sonido de la luz del sol llena toda el area de una atmosfera de paz, tranquilidad y de un tranquilo disfrute. El contacto espiritual con la naturaleza es inevitable. LA SOLEDAD.

Programa

La función primaria del objeto es la de vivienda temporal para invitados. También, la de APARCAMIENTO y zona usada como ALMACÉN para las actividades agrícolas, completan el simple programa requerido por el cliente.

Concepto

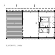
Un volumen, situado paralelamente al lago, esta dividido en tres partes para tres funciones diferentes –el habitar, el almacenar y el aparcar.

La estructura, en su interior realizada de MADERA, se basa en el diseño de un elemento base, que multiplicado crea una construcción ligera, que apoyandose en las dunas no se impone al lugar, pero se integra delicadamente respetando el ambiente.

EL MÓDULO BASE, que constituye todo el objeto, recuerda las entradas tipicas de los edificios pombalinos portugueses tanto en el dibujo y como en sus proporciones.

Para resaltar los colores vivos de la naturaleza local, el volumen se hace transparente, semi-transparente u opaco, siendo capaz de responder con FLEXIBILIDAD a los agentes atmosféricos externos.

Las sombras oscuras sobre la arena blanca fotografian el dialogo entre edificio y ambiente, la imagen posee un CONTRASTE intenso.

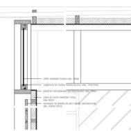
Las paredes y el techo ventilan aislando termicamente la casa, los materiales exprimen la importancia dada a la naturaleza y su elección esta basada en el concepto de SOSTENIBILIDAD ambiental. Así la construcción constituida de la madera al corcho y los materiales organicos empleados como los barnices y tratamientos ecológicos utilizados, hacen esta arquitectura altamente adaptable, sostenibile y en fin, reciclable.

 

Nombre del proyecto: GUEST HOUSE

Emplazamiento: Carvalhal - Portugal

 

PROYECTO

Grupo de proyecto: PARATELIER (Monica Ravazzolo - Leonardo Paiella)

Jefe de grupo: Leonardo Paiella

Colaboradores: Ilaria La Corte, Hugo Amaro

Arquitectura paisajistica: Gobal – João Gomes da Silva, Catarina Raposo

Fotografia: Leonardo Finotti

Texto: Bojan Balen

 

DATOS TECNICOS

Cliente: Rucha A.

Programa: Casa de invitados, depósito agricola

Fecha de proyecto: 2009/2010

Fecha de realización: 2011

Dimensión: 115m2

Superficie Terreno: 5,5 ha

Materiales: estructura de madera, pavimento de corcho, acabado en controplacado

 


Imágenes gentileza > PARATELIER Arquitectura

hacer click en las imágenes para ampliarlas

Links >

PARATELIER Arquitectura

 

diseño y selección de contenidos >> Arq. A. Arcuri