Buenos Aires / Argentina

inicio especiales sugerir noticia links newsletter  

especiales > S Cube Chalet, Kuwait / AGi architects  [21/06/12]

S Cube Chalet, Kuwait

El chalé familiar S Cube, situado frente a la playa, se compone de tres apartamentos de fin de semana. Sus propietarios, tres jóvenes hermanos que han formado ya sus propias familias, desean seguir disfrutando del mismo entorno privilegiado que les ha visto crecer, pero con total independencia e intimidad.

Por ese motivo, el diseño de las viviendas se basa en un programa triplicado, que permite preservar la intimidad de cada una de ellas y disfrutar al máximo de las zonas exteriores y vistas al mar, a través de las distintas terrazas proyectadas.

Soluciones arquitectónicas propuestas por AGi

Con el objetivo puesto en crear viviendas privadas e independientes para cada una de las tres familias -formadas por jóvenes parejas con dos hijos pequeños cada una- AGi architects divide la parcela existente en dos partes, desarrollando dos piezas simétricas, correspondientes a los apartamentos denominados S2 y S3, que quedan separados por una escalera que conduce a la tercera vivienda, S1, ubicada a diferente altura. Así, este último apartamento se sitúa encima de los otros dos y enfrentado a ellos, disfrutando de una gran terraza con vistas al mar. Cada casa cuenta con una zona exterior privada, intimidad respecto a sus vecinos y amplias vistas al mar.

El diseño apuesta por una base compacta que acoge tres piezas muy concentradas. Se trata de un proyecto eficiente, con la fachada sur muy cerrada, apenas rota por pequeñas ventanas horizontales que aportan luz y ventilación cruzada a las cocinas. A su vez, las terrazas cubiertas -a modo de patios- existentes en la planta baja de los dos apartamentos gemelos, permiten crear corrientes de aire y circulación, y sus voladizos superiores enmarcan las vistas al mar prolongando el espacio hacia él.

Son precisamente esos espacios exteriores, junto a la terraza ubicada en el ático del apartamento superior, los auténticos protagonistas del proyecto, ya que las viviendas se organizan en función de ellos. Se trata de casas de playa concebidas para su disfrute exterior.

Programa

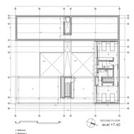
El chalé se desarrolla en tres niveles:

Por un lado, se encuentran los apartamentos S2 y S3, cada uno de los cuales cuenta con un programa planteado en dos niveles:

- Planta baja. Se sitúan aquí el dormitorio principal, cuarto de baño, cocina, sala de estar y gran terraza cubierta abierta al mar.

- Primera planta. Acoge otros dos dormitorios, cuarto de baño y terraza con vistas laterales al mar, que se plantea como una zona de juego para los niños. Las terrazas de ambos apartamentos quedan separadas visualmente por una rejilla.

El apartamento S1, por su lado, se desarrolla en otros dos niveles:

- Primera planta. Al igual que en las otras dos viviendas, se encuentran en este primer nivel el dormitorio principal, cuarto de baño, cocina y sala de estar, además de una terraza que se conecta con la de S3.

- Segunda planta. Dos dormitorios, cuarto de baño y gran terraza abierta hacia el mar.

Principales materiales utilizados

La piedra india arenisca preside los suelos y la pieza principal de la escalera, así como el muro de división entre las viviendas S2 y S3. Los paramentos verticales y techos están acabados en pintura monocapa, mientras que se reserva la madera para revestir las barandillas de la escalera.

El diseño interior es obra de AGi architetcs. Todos los materiales empleados son de procedencia local, mientras que el mobiliario existente es de marcas españolas, suministrado por Gunni & Trentino.


Ficha técnica

Ubicación: Kuwait

Autores: AGi architetcs - Joaquin Pérez-Goicoechea, Nasser B. Abulhasan, Salvador Cejudo

Colaboradores: Robert A. Varghese, Abdul Hafiz Mohammed, Mónica Marqués, José Ángel del Campo

Superficie: 750 m2

Fecha: 2007 - 2011

 

Imágenes gentileza > AGi architetcs / Fotógrafo: Nelson Garrido

hacer click en las imágenes para ampliarlas

Links >

AGi architetcs

 

diseño y selección de contenidos >> Arq. A. Arcuri