Buenos Aires / Argentina

inicio especiales sugerir noticia links newsletter  

especiales > Concurso Centro Cultural de la Municipalidad de Lanús, Argentina / Adrian Spinelli y Marcelo Kovalchuk [30/05/10]

Concurso Centro Cultural de la Municipalidad de Lanús (mención de honor)

El predio está ubicado en el área central del partido de Lanús, el en sur del Gran Buenos Aires.

Se encuentra en calle 25 de Mayo 131 y contiene una construcción que ha sido declarada Monumento Histórico ya que allí funcionó la primera sede de la Municipalidad.

La construcción data de principios del siglo XX, es de estilo neoclásico y corte italianizante y su planta es cuadrada.

La concepción del Centro Cultural se basa fundamentalmente en generar una integración natural entre el complejo como institución y el conjunto de la sociedad, creando un nuevo espacio cultural que aliente e invite a la comunidad a participar y disfrutar del arte y de las actividades que allí se planteen.

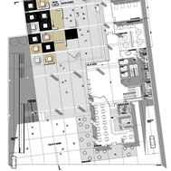
Para lograrlo consideramos retirarnos de la línea municipal y crear una plaza seca, “La plaza de la Historia”, apta para recibir manifestaciones culturales de diversa índole, En ella se pueden organizar eventos al aire libre como música, teatro, cine, etc, para ello hay dispuestos columnas de iluminación que enmarcan este espacio.

Aprovechando el entorno netamente comercial de esta zona de la Av. 25 de Mayo, adaptamos la antigua casona como bar restaurant, con expansiones al exterior y hacia la vereda, la idea es que sea parte de la oferta gastronómica de la zona.

La casa histórica mantiene intactas las 3 fachadas que dan hacia la vía pública con el fin de preservar la memoria del lugar.

Internamente convertida en restaurante nos aseguramos el mejor mantenimiento a lo largo del tiempo, al contrario de lo que ocurre normalmente con este tipo de edificaciones convertidos a espacios administrativos ú otros usos.

En pos de acentuar la integración del conjunto, el frente del nuevo edificio (orientación Sur), sobre la calle y sobre la Plaza de la Historia, está compuesto por una piel de vidrio que muestra las actividades internas del conjunto. En esta fachada se destaca la presencia de las salas de exposiciones, ellas tiene paneles verticales pivotantes que permiten iluminar total ó parcialmente el área de exposición.

Toda esta transparencia, el movimiento de fachadas, de graduación de luz y visuales, la circulación de las personas y las actividades mostradas al exterior crean un frente activo, lleno de movimiento y cambiante donde el edificio actúa como estructura contenedora.

Atravesando el hall de PB, se genera una plaza semipública (Plaza de las Artes) que se ubica sobre la estructura del auditorio y es el lugar de exposición de las obras de los alumnos del Instituto y al mismo tiempo conserva el espíritu del espacio actual, de gran uso dado los escasos espacios públicos de la zona.

La Plaza de las Artes busca ser el nexo o comunicación urbana del instituto y/ó complejo cultural con el resto de la comunidad. De carácter semipúblico es el fuelle entre la parte pública (Plaza de la Historia) y la parte privada (aulas). Pretendemos que en ella los alumnos del instituto trabajen y expongan el resultado de su aprendizaje, mostrándolo a la comunidad y favoreciendo el intercambio de ideas y experiencias, entre sí y con el resto.

Los árboles que se trasplantan y los nuevos, generan una cortina natural que otorga clima a la plaza de las artes; de hoja caduca producen sombra en verano y dejan pasar los rayos del sol en invierno.

El esquema planteado es una ele en cuya rótula se materializan las circulaciones verticales con ascensores, montacargas, escaleras y escaleras de incendio, que vinculan todos los niveles y sectores del Complejo. Sobre la medianera derecha se ubica el área del Instituto de Artes, dividido en cinco niveles con una circulación exterior que busca disminuir el fuerte impacto del sol en las horas de la tarde, en tanto que sobre el volumen del frente se desarrollan las salas de exposiciones, la biblioteca y la Subsecretaría de Cultura.

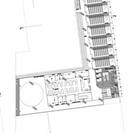
El auditorio para 1200 personas y los dos microcines, se dispusieron enterrados para favorecer la permeabilidad buscada entre el exterior y las plazas a nivel cero.

Es importante destacar que al auditorio se accede tanto desde el interior del edificio, a través del hall principal, como desde el exterior, permitiendo esto habilitar una o ambas entradas de acuerdo a las necesidades impuestas por las actividades que se realicen en el resto del Complejo.

El estacionamiento para cincuenta autos también se propuso enterrado y copia las pendientes del auditorio a fin de reducir los volúmenes de excavación; cuenta con rampas de entrada y salida independientes dispuestas según el sentido de dirección del tránsito de la calle 25 de Mayo para no generar congestiones en los ingresos.

La materialización del complejo está basada en una estructura de hormigón visto y piel vidriada, materiales neutros que no compiten con las preexistencias y son de fácil mantenimiento. Los parasoles son de aluminio y móviles, nos aseguran la generación de sombra durante la época estival (de septiembre a marzo) sin perder visuales al patio. Los mismos son accionados por actuadores lineales de 24volts comandados por una pequeña central (PC), que los regula según el horario, la fecha y la incidencia solar.

 

Autores: Arq Adrian Spinelli, Arq Marcelo Kovalchuk

Renders: Ezequiel Fau

 


Imágenes gentileza > Arq Marcelo Kovalchuk

hacer click en las imágenes para ampliarlas

ampliar imagen

ampliar imagen

ampliar imagen

ampliar imagen

ampliar imagen ampliar imagen ampliar imagen ampliar imagen

Links >

Estudio Schaap Kovalchuk Arquitectura

 

diseño y selección de contenidos >> Arq. A. Arcuri