Buenos Aires / Argentina

inicio especiales sugerir noticia links newsletter  

especiales > Centro Cultural Vladimir Kaspé, Ciudad de México - BH / BROISSIN Y HERNANDEZ DE LA GARZA [21/11/06]

Centro Cultural Vladimir Kaspé, Ciudad de México

El diseño arquitectónico del Centro Cultural Vladimir Kaspé inspirado en el funcionalismo, se concibió con un agudo sentido de escala y espacio preciso, dentro del contexto actual de la Universidad La Salle.

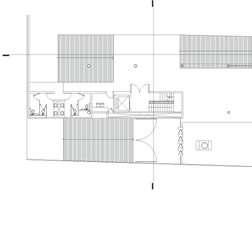
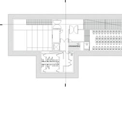
Las piezas que lo conforman, se encuentran ensambladas por medio de una estructura que parte de un sólido volumen de concreto que ancla la obra al terreno, la estructura visible se materializa en columnas metálicas que por razones de equilibrio y función, son la fuerza del edificio. Por su parte el plano engrosado de cristal, ligero y transparente, define el acceso al pabellón y marca también los límites con el entorno inmediato.

Los enormes espacios abiertos tanto en el primer nivel denominado el sótano, en el tercer nivel al aire libre, como en el intermedio, cubierto de una piel de cristal, proporcionan luz y sombras atemporales que dan como resultado una atmósfera de tranquilidad y sencillez, parte fundamental del argumento utilizado en este edificio que hará las funciones de centro cultural de la institución.

Una rampa exterior, cuyo sentido ascendente alude al eterno deseo humano por desentrañar el conocimiento inmemorial de la vida, trasporta a los usuarios a los diferentes espacios. Primero una bóveda que contendrá un importante equipo de cómputo para uso de la comunidad estudiantil, luego en el cuerpo propiamente dicho de la construcción, se resguardará en un área especialmente diseñada para ello, la riqueza del acervo donado por Vladimir Kaspé, asimismo, será el escenario perfecto para o la recepción de conferencias a distancia con países de todo el mundo.

Concluye la rampa en el último nivel, donde a través de una delicada caja de vidrio se accede a un singular y dilatado espacio que puede ser destinado a la exhibición de exposiciones de arte, fotografía, escultura, o por su disposición al movimiento y flexibilidad, a diversas prácticas inherentes a la educación y la cultura.

 

Equipo de proyecto:

Arquitectos: Jorge Hernández de la Garza / Gerardo Broissin / Gabriel Covarrubias González

Colaboradores: María Teresa de la Torre Gorráez, Carlos Rubio, Jessica Vega , Aarón Hevia, José Luis Gutiérrez, Susana Cano

Construcción: GDI - Ing. José Hinojosa

Ingeniería Estructural: Arq. Fernando Castillo

Fotógrafo: Paul Czitrom

Lugar: Ciudad de México

Fecha: 2006

 

Imágenes gentileza > BH / BROISSIN Y HERNANDEZ DE LA GARZA

hacer click en las imágenes para ampliarlas

ampliar imagen ampliar imagen ampliar imagen
ampliar imagen ampliar imagen ampliar imagen
ampliar imagen ampliar imagen ampliar imagen

Links >

BH / BROISSIN Y HERNANDEZ DE LA GARZA

Otras obras: Casa Los Amates, Morelos, México

 

diseño y selección de contenidos >> Arq. A. Arcuri