Buenos Aires / Argentina

inicio especiales sugerir noticia links newsletter  

especiales > Casa TDA, Puerto Escondido, Oaxaca - México / Eduardo Cadaval & Clara Solà-Morales [14/11/07]

El origen es el material

Una casa fresca, para un calor fuera de los parámetros establecidos para el confort estándar de un urbanita; una casa con un mínimo mantenimiento y, si posible, de bajo coste; una casa flexible en el número de usuarios; y flexible en su uso y configuración; una casa que pueda abrirse completamente al exterior o cerrarse y concentrarse en sí misma. Una casa de playa construible en una esquina de mundo.

Fueron las altas temperaturas, el salitre y la mano de obra poco especializada para ejecutar una técnica constructiva en un lugar remoto, los condicionantes que llevaron a tomar la decisión de que esta casa debía ser de hormigón. De hormigón son los puentes, los búnquers, las presas; y lo son por su capacidad estructural y por su resistencia a condiciones extremas. Este es el punto de partida para el arquitecto, y las posibilidades tectónicas y morfológicas del material, una ayuda en la definición formal del proyecto.

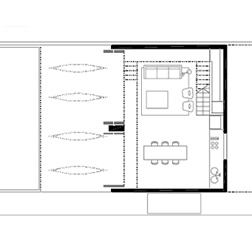
La sección de la casa, con sus voladizos pronunciados, busca llevar al límite la expresión de estas cualidades, pero sobretodo, busca adaptarse a las condiciones específicas de su localización. Se definen 3 elementos para tres condiciones distintas: un cuerpo-torre, que en busca del mar rompe su opacidad en puntos específicos hasta conseguir una apertura total en aquella cota en donde ya nada bloqueará las vistas al pacifico mexicano; un segundo cuerpo, de habitaciones, suspendido sobre el agua y las flores del jardín; y un tercer elemento, construido con la voluntad de ser espacio central, amplio, alto, fresco, distribuidor y canalizador de las distintas actividades que se suceden en la casa. Son estos tres elementos los que se funden en un solo volumen; un objeto de escala confusa y textura rugosa.

Pero es el espacio exterior construido, el umbral bajo el gran voladizo, el espacio más importante de la casa, el foco central de su uso. Este gran espacio tiene las condiciones de un espacio interior, disfrutando de las posibilidades de un entorno hecho a su medida: por un lado, vinculado al amplio núcleo central de la casa, bajo el amparo del equilibrio y el rigor del objeto construido; y a su vez, nutriéndose de la luz, el agua, el aire y con la posibilidad de estar cerca de la exuberancia de la vegetación tropical y sus colores que contrastan con la neutralidad del hormigón. Y todo esto, suspendido en las hamacas, reforzando la solidez de la estructura y lo suave de la forma de habitarla.

Es la forma de vivir este espacio intersticial, la que define la voluntad arquitectónica final del proyecto: la vida en el exterior, abierta, en comunidad; una fotografía viviente de la utopía vital mexicana, es decir, un mundo de convivencia, de desorden, de color y naturaleza; un reflejo del vaivén de las hamacas, del placer del “dolce far niente”.


Casa TDA

Localización: Puerto Escondido, Oaxaca, México.

Proyecto: Eduardo Cadaval & Clara Solà-Morales.

Colaborador: Eugenio Eraña Lagos.

Estructura: Ricardo Camacho de la Fuente.

Obra: Marcial Burgos & Hugo López Solano.

Área Construida: 360 m2.

Fotos: © Santiago Garcés / © Cadaval & Solà-Morales


Imágenes gentileza > Cadaval & Solà-Morales / Fotografías > Santiago Garcés (6-10-11) / Cadaval & Solà-Morales

hacer click en las imágenes para ampliarlas

ampliar imagen ampliar imagen ampliar imagen
ampliar imagen ampliar imagen ampliar imagen
ampliar imagen ampliar imagen ampliar imagen
ampliar imagen ampliar imagen ampliar imagen

Links >

Eduardo Cadaval & Clara Solà-Morales

Otras obras > Proyectos. Exposición Susana Solano. Fundación ICO, Madrid

 

diseño y selección de contenidos >> Arq. A. Arcuri