Buenos Aires / Argentina

inicio especiales sugerir noticia links newsletter  

especiales > Casa Dr. Reginaldo Spenciere - Labruge, Vila do Conde, Portugal / AUZPROJEKT [25/01/10]

Casa Dr. Reginaldo Spenciere - Labruge, Vila do Conde, Portugal / AUZPROJEKT - Jorge Lapa, José Macedo y Pedro Santos

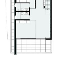
"La cocina y área social están ubicadas en la parte superior para disfrutar de las vistas al mar (y de la luz que refleja); el cuarto, del único habitante permanente, está en el ático (aún más horizonte), liberando el nivel de entrada.

Uno puede ser casi cualquier cosa, en contacto con el suelo-duna.

En la playa, nos relajamos y no andamos vestidos, el traje tradicional queda descontextualizado. El proyecto es una busqueda particular que se desprende del pensamiento general, que ya no sirve (a pensar). Después de todo, esta es una casa para un inmigrante, que a veces recibe amigos y familiares

Alineaciones, altura y pendiente de la cubierta están definidas por el edificio adyacente, sólo los balcones prescinden del área, en el giro de la figura tridimensional establecida en el cuarto modelo.

La construcción (imagen que desvelamos) es una roca, donde los elementos materiales vienen sueltos en las olas. En la sorprendente lógica del naufragio sobre la arena."


"The kitchen and social area were placed on top to enjoy the sea view (and the light reflecting), the bedroom, of the only permanent inhabitant, is a bunk bed placed at the attic (even more horizon), which liberates the ground level for versatility, dragging walls. It can be almost everything, in contact with the ground which wanted to be a dune.

The project is this peculiar research, free from general thought which no longer serves (to think). After all, this is a home to an immigrant, which sometimes can get friends or family.

Alignments, fence and height are defined by the adjacent building, only balconies dispense area, by twisting the figure set in the fourth model. Construction (image found) is a rock, where elements come to loose materials brought by the waves. In surprising logic of debris on the sand."


Imágenes gentileza > AUZPROJEKT

hacer click en las imágenes para ampliarlas

Links >

AUZPROJEKT - Jorge Lapa, José Macedo y Pedro Santos

 

diseño y selección de contenidos >> Arq. A. Arcuri