Buenos Aires / Argentina

inicio especiales sugerir noticia links newsletter  

especiales > Casa 1 Penafiel, Portugal / Cláudio Vilarinho [09/01/09]

Casa 1 Penafiel, Portugal

La primera idea fue crear un volumen blanco de 29 x 10m. montado sobre un 'tapiz' continuo de césped. La segunda fue concebir la casa con 6 'fachadas': las 4 perimetrales + la cubierta + el techo del voladizo. Al bajar desde la cota alta por el sendero existente, el volumen baja y súbitamente se inclina y se proyecta hacia el valle.

El estacionamiento se ubica debajo de la casa y del voladizo de 10m.

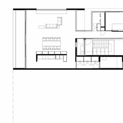
En este nivel se ubica la entrada principal a la casa, a la que se accede a través de un patio que contiene un pequeño árbol, un espacio que actúa como un 'negativo en el centro del cuerpo'.

Este patio, junto a otros cuatro, crean diferentes atmósferas y resuelven tanto cuestiones referidas a la circulación del aire y a los juegos de luz y sombras, como a las necesidades visuales y de espacios de contemplación.

Los materiales:

1. Una piel, un cuerpo;

2. El material, blanco, con sencillo granulado y textura:

a. en las paredes de la fachada,

b. en los techos exteriores,

c. en los pavimentos de los balcones,

d. en los pavimentos de los patios,

e. en la cubierta.

3. El límite del terreno es 'permeable' materializado con piezas verticales de madera de 6 x 6cm.

4. El sistema constructivo es Light Steel Framing.

 

The idea: a white volume (28x10m) that rests on a continuous grass carpet.

The second idea: the house has 6 façades.

When in a highest stage we are descending the existing path, we see a volume that comes down and accompanies us, suddenly this volume leans up and projects itself to the valley.

The parking is located below the house (standing 10m in the air), the floor is made out of cement slabs that enables the circulation of a car while the grass grows.

The access to the main entrance of the house it's done through a "negative in the centre of the body" (a patio that contains a small tree).

Besides this opening in the roof, it has other four; we explore ways of air circulation, shades, contemplation; we want to enable different atmospheres.

The program is the conventional one for a house with four bedrooms.

In the elaboration of the project we had the need to orient the openings for the sights towards the horizon, on the other hand those same openings are predominantly oriented to West and South, leaving the East façade completely closed.

The intention of the matter:

1. a skin, a body;

2. the material, white, with a subtle texture:

a. on the walls of the façade,

b. on the exterior ceilings,

c. on the balconies floors,

d. on the patios floors,

e. and on the roof.

3. We wanted the sealing of the house's terrain to be permeable (wooden slats 6x6cm).

4. The construction system is made out of Light Steel Frame

 

 

Ubicación / Location: Penafiel, Portugal

Fecha / Date: 2005 - … (en construcción / under construction)

Promotor / Client: Privado / Private

Arquitectura / Architecture: Cláudio Vilarinho (claudiovilarinho.com arquitectos e designers)

Ingenierías /Engineering: Objecto, Engenharia e Construção Lda. + Futureng, Lda. + Apótema – Gabinete Projectos Eléctricos, Rita & Gás, Lda.

 

Imágenes gentileza > Cláudio Vilarinho

hacer click en las imágenes para ampliarlas

ampliar imagen

ampliar imagen

ampliar imagen

ampliar imagen

ampliar imagen

ampliar imagen

ampliar imagen

ampliar imagen

ampliar imagen

Links >

Cláudio Vilarinho

 

diseño y selección de contenidos >> Arq. A. Arcuri