Buenos Aires / Argentina

inicio especiales sugerir noticia links newsletter  

especiales > Casa Osler, Brasilia - Brasil / Marcio Kogan [24/11/08]

Osler House, Brasilia

In front of the entrance of the Osler House, located in Brasilia, there is a panel of tiles by the artist Athos Bulcão, designed especially for this wall. Dozens of buildings in Brasilia have panels by Athos, among them are: Planalto Palace, Itamaraty and the National Theater, all by Niemeyer. The artist’s modular tiles are an outstanding feature incorporated into the modern architecture of the modern city: from the beautiful residential buildings of the 60’s on the city’s south wing to the original projects for the institutions of the Brazilian political capital.

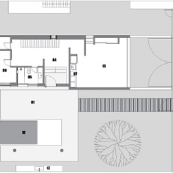
The classic and modern tiles of Athos are here in this house of 250m2 which takes on other designs of the modern city: the windows, the concrete, the plant. Two volumes and a small pool and garden compose the organization of the entire program.

On the ground floor, the rooms open out using rotating wooden panels, which are reminiscent of other elements frequently used in the modernist city. Throughout this area there is cross-ventilation. The small foyer in the entrance connects to the second floor with a delicate staircase.

The upper floor is organized in a prism of glass and concrete and is supported by stilts. The living room is in spatial continuity with the kitchen, separated only by a table used to prepare the food. All of the equipment and furniture of the kitchen are available on this table, in order that nothing vertically interrupts the visual transparency of the volume. On the roof of the ground floor, connected to the living room, the garden terrace extends the external area.

 

 

Osler House

location: Brasília. DF

project: march ,2006

conclusion: january ,2008

site plan area: 797 m2

builted area: 270 m2

author: Marcio Kogan

co-author: Suzana Glogowski

interior design: Diana Radomysler + Marcio Kogan

team: Oswaldo Pessano, Renata Furlanetto, Lair Reis, Samanta Cafardo, Carolina Castroviejo, Eduardo Glycerio, Maria Cristina Motta, Mariana Simas, Gabriel Kogan

photographer: Claudio Dupas / email > cadupas@gmail.com

photographer: Zuleika de Souza

landscape architect: Renata Tilli

general contractor: Ábacus Engenharia

 

Imágenes gentileza > Marcio Kogan

hacer click en las imágenes para ampliarlas

ampliar imagen

ampliar imagen

ampliar imagen

ampliar imagen

ampliar imagen

ampliar imagen

ampliar imagen

ampliar imagen

ampliar imagen

ampliar imagen

ampliar imagen

ampliar imagen

Links >

Marcio Kogan

 

diseño y selección de contenidos >> Arq. A. Arcuri