Buenos Aires / Argentina

inicio especiales sugerir noticia links newsletter  

 especiales > Casa Ómnibus, Aguas Claras - Cahagua - V Región, Chile / Gubbins arquitectos [25/05/06]

Casa Ómnibus, Gubbins arquitectos

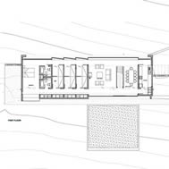
La casa Ómnibus está ubicada en la cercanía de la Quebrada de Aguas Claras, en lo alto de la entrada a Cachagua viniendo desde Laguna de Zapallar, en un terreno con suave pendiente y rodeado de altos y numerosos eucaliptos, y que enfrenta a la cadena de cerros que rodea Cachagua y Zapallar, con una vista lejana del océano Pacifico. La vivienda bajo la forma de un cuerpo horizontal rectangular de 23,5 m. de largo x 7,00 m. de ancho y 3,50 m. de alto, esta instalada sobre un zócalo, desde donde se ingresa subiendo al piso principal y a continuación al techo terraza.

La vida y el espacio del ocio

Con el fin de romper la estacionalidad que los recintos típicos de una vivienda presentan en general en la arquitectura urbana: cocina, estar-comedor, dormitorios, esta vivienda plantea una doble circulación que descompone esos recintos para constituirse en el día, mas que una suma de individualidades, en una suma de lugares complementarios entre si, dando origen a una forma de habitar lejana de la ciudad, y cercana al juego.

La construcción de esta perspectiva longitudinal al interior del cuerpo, mediante la utilización de una cubierta de hormigón de forma irregular , aumenta la sensación de amplitud y continuidad de cada recinto con el total y el entorno, mediante transparencias, reflejos, luminosidad transversal y vertical.

Habitar el exterior desde el interior

Habitar el exterior en una vivienda de descanso se produce no solo a través del recorrido del propio lugar y el bosque, sino que a través de la casa, la cual ofrece a su vez y a través de su propia estructura y disposición, la posibilidad de redescubrir nuevas perspectivas desde la altura del techo terraza; desde la terraza posterior a través de la sala de estar; desde el corredor o galería junto a la fachada principal o cobijado en el zócalo.

Una arquitectura con trazos de sustentabilidad

La fachada principal de 23,5 m por 3,1 m de altura debido a su orientación norte, ofrece la posibilidad de transformarse en un gran captador de radiación solar que entregue en las noches la temperatura acumulada en el dia por la masa propia, pisos, muros y losas de hormigón.

La construcción y la materialidad

El uso del hormigón como aglutinador de una masa necesaria en el lugar, y su color, necesario complemento de los árboles existentes, abren la posibilidad de grandes luces y el uso de diferentes texturas, producto de los moldajes de tabla de la barraca del lugar.

 

Ficha técnica

Obra: Casa Óminibus

Ubicación: Aguas Claras / Cachagua / V Región - Chile

Arquitectos: Gubbins arquitectos - Pedro Gubbins Foxley / Victor Gubbins Browne

Calculista: Soler y asociados

Instalaciones sanitarias: Patricio Moya

Electricidad: Marcelo Silva

Iluminación: Pedro Gubbins

Aluminios: Arnaldo Sulantay

Empresa constructora: Victor Reyman

Superficie del terreno: 5.000 m2

Superficie construida: 180 m2

Materialidad principal: Hormigón armado a la vista, moldaje de tabla bruta 1x8”, Aluminio, Vidrio, Revestimientos de madera de moldaje y tableros enchapados, pisos de piedra pizarra y cemento afinados.

 

Imágenes gentileza > Gubbins arquitectos

hacer click en las imágenes para ampliarlas

Links >

Gubbins arquitectos

I inicio I sugerir noticia I especiales I newsletter I links I agregar a favoritos

 

diseño y selección de contenidos >> Arq. A. Arcuri