|
Buenos Aires / Argentina |
| especiales > Casa en Piedra Roja, Santiago, Chile / Riesco + Rivera Arquitectos Asociados [26/05/12] |
|
|
| |
|
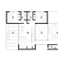
Casa En Piedra Roja El encargo es una casa individual para una familia joven, situada en un área suburbana en desarrollo en el norte de santiago, con un clima mediterráneo árido. Conceptualmente se trabajo con ideas de casas tradicionales de la zona central de chile (mediterráneas). Valorando los espacios intermedios como parte fundamental en la vida diaria y en la integración del exterior al interior. A través de patios interiores de distintas cualidades y zonas techadas a modo de los tradicionales corredores. Que permiten ser habitados tanto en verano (Sombreados) como en invierno (asoleados). La casa se configura como un rectángulo orientado norte sur, al cual se le inyectan burbujas de aire, a modo de patios que se relacionan y cualifican según los programas de sus bordes, que unen visualmente y separan programáticamente estos espacios. Visualmente y a través de la apertura y cerramiento de elementos los Espacios públicos se suman y transforman en un gran espacio intermedio que contiene la vida familiar. Programáticamente la casa se divide en 3 franjas longitudinales, la primera de los dormitorios y el gran corredor que se orientan al norte y el jardín, la segunda de servicio, tales como circulación, almacenamiento y estanterías en la línea trasera, y al centro la que contiene los espacios públicos y los patios. A modo de la casa tradicional de la zona central cada patio adquiere una cualidad específica programática y constructiva. Un patio duro que separa el living y comedor y funciona como acceso principal a la vivienda, un patio verde que separa el living de la sala de estar inyectando humedad como forma de control de las altas temperatura, un patio de juegos para los niños que relaciona la sala de estar con el jardín, y finalmente un patio de trabajo relacionado a la cocina y que funciona como acceso de servicio desde el estacionamiento. Constructivamente la casa se pensó como un gran basamento horizontal de hormigón sobre el cual se crea una estructura regular de perfiles de fierro, los cuales se rellenan verticalmente através de vidrio o tabaquería ventilada. El techo se concibe como un gran elemento horizontal vacío que permite la circulación de aire, que sube por los muros y sale a través de troneras que regulan el tiraje de ventilación. Ficha técnica Nombre obra: CASA EN PIEDRA ROJA Arquitectos: Riesco + Rivera Arquitectos Asociados, Francisca Rivera P. y Jose Riesco U. Ubicación: Santiago, Chile. Clientes: Natalia Chellew y Ricardo Ventura-Junca Materialidad: Acero, Hormigón, Acero Corten, Fibrocemento y Vidrio. Superficie terreno: 1.168 m2 Superficie construida: 236 m2 + terrazas Año proyecto: 2008 Año construcción: 06/2008 -02/2009 Cálculo estructural: Pedro Escobar Construcción: Constructora Casas Modernas Proyecto Iluminación: Paula Garcia-Huidobro
Imágenes gentileza > riesco + rivera arquitectos asociados / Fotografía: Sebastián Wilson León hacer click en las imágenes para ampliarlas |
![]() |
![]() |
![]() |
![]() |
![]() |
![]() |
![]() |
![]() |
![]() |
![]() |
![]() |
![]() |
|
Links > riesco + rivera arquitectos asociados Otras obras > Casa Contador - Weller, Punta del Gallo, Tunquén, Chile |
|||
|
|
|
diseño y selección de contenidos >> Arq. A.
Arcuri
|
|
|
|
|
|