Buenos Aires / Argentina

inicio especiales sugerir noticia links newsletter  

especiales > Casa en Open Door, Provincia de Buenos Aires, Argentina / MENEGHETTI arquitectos [27/02/07]

Casa en Open Door

Memoria descriptiva

Es el sueño de todo arquitecto diseñar su propia casa. La oportunidad llegó luego de comprar un lote de 2600 m2, con una profusa vegetación, en un barrio cerrado cercano a la ciudad de Luján.

En el frente el terreno gana en intimidad al separarse de la calle, mediante una línea continua de añosos fresnos. En el fondo un conjunto de árboles delimita virtualmente los límites del solar y genera un paisaje de tonos variados según la época del año.

Decidimos ahí construir nuestra vivienda de fin de semana.

El diseño de la casa se basa en las siguientes premisas:

> lugar para recibir amigos.

> transparencia para sentirse dentro del paisaje.

> actitud firme frente al terreno.

> flexibilidad y amplitud de los espacios.

> materialización austera con un exhaustivo diseño del detalle y con el confort suficiente para sentir el placer de vivirla.

En el proceso buscamos que la arquitectura genere diversas sensaciones, mediante el uso de la luz, del agua, de los reflejos, de los colores y de las texturas.

El prisma que conforma la casa está apoyado sobre un zócalo de hormigón recedido con respecto al filo del muro exterior, generando mayor altura para ganar en perspectivas y posando la casa de manera sutil sobre el terreno.

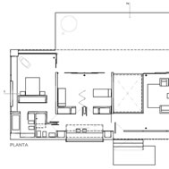
La casa se vacía en el centro y genera un estanque que articula los diferentes espacios y llena de luz el área social y el hall de acceso.

Se vuelve totalmente transparente en el estar comedor generando una doble apertura, hacia el frente y al contrafrente. En el sector de los dormitorios se buscó más privacidad abriéndose sólo hacia el jardín posterior.

La isla-cocina tiene la posibilidad de integrarse al espacio del estar-comedor. El paño vidriado de fondo da a un sauce que generó la ubicación de la casa en uno de sus ejes y que filtra el sol de la mañana. En el otro sentido la decisión fue la de tomar todo el ancho del terreno para que todos los ambientes disfruten de las vistas largas.

Los 4 paños vidriados del estar comedor se corren hasta cerrar el estanque, dejando completamente abierto el espacio hacia la terraza-expansión, cuya galería vincula todos los sectores.

Desde el estar se disfruta del caer de la lluvia en el estanque y del movimiento de los rayos del sol sobre el tabique de hormigón visto. Hacia el sector privado un paso-estudio recibe la luz de una claraboya y con el recurso de paños pivotantes de piso a techo se accede a los dormitorios.

La contemplación del paisaje en el dormitorio principal se da a través de un gran paño vidriado mientras que por una ventana longitudinal lateral entra la luz del atardecer.

MENEGHETTI arquitectos

 

Ficha técnica

OBRA: CASA EN OPEN DOOR

AUTOR: MENEGHETTI arquitectos (Arq. Juan Pablo Meneghetti, Juan Sebastián Meneghetti) + Arqta. Marcela Hitters

EMPRESA CONSTRUCTORA: DIAZ construcciones

CALCULO ESTRUCTURAL: Ing. Humberto Nicastro

UBICACION: La Cañada Polo Club, Open Door, Pdo. De Luján, Bs. As., Argentina

SUPERFICIE DEL TERRENO: 2600 m2

SUPERFICIE CONSTRUIDA: 198 m2 Cub. / 58 m2 Semicub.

TIEMPO DE EJECUCION: 12 meses

AÑO DE PROYECTO: 2005

AÑO DE CONSTRUCCION: 2006

 

Imágenes gentileza > MENEGHETTI arquitectos

hacer click en las imágenes para ampliarlas

ampliar imagen

ampliar imagen

ampliar imagen

ampliar imagen

ampliar imagen ampliar imagen ampliar imagen ampliar imagen
ampliar imagen ampliar imagen ampliar imagen ampliar imagen

Links >

MENEGHETTI arquitectos

I inicio I sugerir noticia I especiales I newsletter I links I agregar a favoritos

 

diseño y selección de contenidos >> Arq. A. Arcuri