|
Buenos Aires / Argentina |
| especiales > Casa en el Bosque, Valle de Bravo, México / Parque Humano - Jorge Covarrubias + Benjamín González [25/05/10] |
|
|
|
| |
|
|
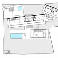
Casa en el Bosque, Valle de Bravo, México Sitio La casa esta localizada en Valle de Bravo, México (19°11’33” N 100°07’50” O ). La temperatura alcanza una máxima de 33°C en verano y una minima -2°C en invierno. La vista al sur del sitio es hacia la reserva ecológica de Cerro Gordo y el lago de Avándaro. Programa Sala, comedor, cocina, estudio, 2 recamaras, alberca, estacionamiento y zona de servicios. Concepto Para la concepción de esta vivienda, nos hemos planteado la pregunta de si somos capaces de construir (sin hablar de ahorros de energía, sustentabilidad y ecología) una conexión con el entorno que mediante su impacto y experiencia, genere una conciencia de respeto por la naturaleza. Así, hemos aprovechado al máximo la pendiente del terreno para lograr una conexión visual a diferentes alturas con los árboles existentes al igual que con el entorno inmediato (montañas y lago). La traza volumétrica del edificio se adapta al arbolado existente, dando 3 pabellones totalmente rodeados de bosque, mismos que nos marcan la pauta para acomodar el programa (áreas publicas – pabellón 1, áreas privadas – pabellón 2 y alberca en pabellón 3). La continuidad entre el entorno natural y edificio es acentuada por el sistema estructural, hecho a base de marcos metálicos del proyecto. La cancelaría (también estructural), asemeja una abstracción de las sombras que se generan en los patios de pinos del convento del Desierto de los Leones. Para el control de la temperatura, hemos levantado los pabellones existentes sobre basamentos de piedra del lugar y cubierto la cancelaría con louvers de madera, mismos que ayudan a responder a las variaciones climáticas de una manera bella y sencilla. Así, el edificio es modificable dependiendo de la época del año y la intimidad de los espacios. La envoltura de la casa, fue evolucionando progresivamente para adaptarse al contexto de la zona, la decisión final de losetas de barro horneado da la apariencia de las casas hechas de tejamanil que encontramos en la arquitectura rural de la zona, además, su reacción al clima existente, hace que el material cambie constantemente dependiendo de la humedad de la época. Site The house is located in Valle de Bravo, Estado de Mexico, Mexico (19°11’33” N 100°07’50” O), weather ranges from 33°C to -2°C. The plot faces Avándaro Lake and the protected forest area of Cerro Gordo, rich in pine and oak trees. Program Living, dining, Kitchen and multiporpuse rm , 2 bedrooms, gazebo and pool. Concept For the concept of this project, we asked ourselves whether or not we were capable of building a house that would respect nature to the fullest and forge a connection with the building’s surroundings (without speaking of energy, sustainability, and ecology) that through its impact and experience would generate that same respect for the natural world. To do so, we have taken advantage of the slope of the land in order to create visual connections at different elevations with the existing vegetation and landscape beyond. The site is a splendid plot covering 3,500 m2 with rich and varied flora, very tall trees, and a view towards the layered hills of Valle de Bravo – a town 150 km south-west of Mexico City. The climate is cool in winter while summer temperatures can reach 33°C and heavy rain falls daily between June and October. The house occupies a natural ledge in the hillside, facing the view to the south and turning its back to the winds coming in from the north. The ground drops away beneath the floor, emphasizing the slope of the land and thereby dramatizing the house’s progress through the site. The house evokes the feeling of floating above the garden, accentuating a sense of contact with nature. Two pavilions, unequal in size, are set in front of the pool area. The first and biggest one contains the living and dining spaces, kitchen and a working studio. The second one: two bedrooms. Each pavilion was carefully placed on the site, incorporating all the existing trees into the program and facing the most important views. The house is deeply rooted in the existing landscape. Upon arrival, the visitor encounters several experiences: the escarpment, the flora, the house, the reflecting pool. Visitors are received under the protection of a steel enclosure, entering through a small door that leads to the living room, thereby emphasizing the contrast between the closed nature of the entrance and the full openness of the living spaces and the valley itself. The continuity between landscape and building is stressed by a glazed structural window system, transcending conventional distinctions between inside and outside. As a result, all the spaces are in direct and intimate contact with the outdoors. The play of light and shadow upon these windows echoes the abstracted shadows of trees cast across the courtyards of the convent in Desierto de los Leones, located near Mexico City. The cladding of the house evolved progressively in order to fit into the context of the town. An artisanal clay veneer was specially developed for the project, similar in texture to the traditional houses that you notice in the area. Its reaction to the weather causes the material to change constantly in response to varying levels of humidity. Casa en el Bosque, Valle de Bravo, México Área Total: 650 m2 Cliente: Privado Fase de Diseño: 2004 – 2005 Fase de Construcción: 2006 - 2009 Equipo de Diseño: Jorge Covarrubias + Benjamín González Henze con Omar Martínez y Isaias López Colaboradores: Cálculo Estructural: Ing. Ricardo Camacho Inst. Eléctricas: Islas Ingeniería Inst. Hidrosanitarias: H20 Solutions Diseño de Interiores: Parque Humano Arq. de Paisaje: Jerónimo Hagerman Proyecto de Iluminación: Parque Humano Contratista General: Constructora TUCA SA
Imágenes gentileza > Parque Humano / Fotografía: Paúl Rivera, ArchPhoto hacer click en las imágenes para ampliarlas |
![]() |
![]() |
![]() |
![]() |
![]() |
![]() |
![]() |
![]() |
![]() |
![]() |
![]() |
![]() |
|
Links > Otras obras > Pabellón en el Bosque, Valle de Bravo, México / Casa Cárdenas, Valle de Bravo, México |
|||
|
|
|
diseño y selección de contenidos >> Arq. A.
Arcuri
|
|
|
|
|
|