|
Buenos Aires / Argentina |
| especiales > Casa de Bloques - La Pedrera, Uruguay / g+ Gualano+Gualano Arquitectos [20/03/11] |
|
|
| |
|
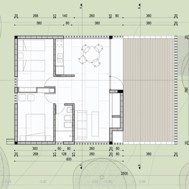
Casa de Bloques - La Pedrera, Uruguay El proyecto Una vivienda de temporada, en La Pedrera, un balneario de costa Atlántica a 220 km de Montevideo, en el departamento de Rocha. Una vivienda económica, fácil, concreta. Esta obra se hizo con una cuadrila de obreros a distancia, por lo tanto sistematizar la construcción, facilitar su montaje, resolver detalles simples, formaba parte de cómo encarar este proyecto. De ahí que se decide utilizar el bloque de hormigón vibrado como "único" material, incorporando los diferentes tamaños y formatos. El sitio Un terreno de 12 x 36 m, en un bosque de eucaliptus jóvenes, dentro de la trama del balneario. Un terreno plano, a pocas cuadras del mar. El programa Dos dormitorios, baño y cocina,
un espacio interior ( comedor - estar), un espacio exterior ( deck -
parrilla). Espacios sencillos, que se definen programática y geométricamente. Interiores 64m2 Exteriores 32m2 La pieza define un contorno, un borde de bloques, macizos y calados, que incorporan en su perímetro al espacio exterior Deck-Parrillero. De esta forma la vivienda, se conforma como una pieza única, abstracta, que contiene al programa, hacia sus "interiores". Hacia el exterior la casa, se conecta, pero no coloniza. Solamente un muro bajo define el ingreso vehicular y peatonal, que aprovecha la sombra de los altos y delgados eucaliptus. En suma, una pieza blanca que se acomoda entre los finos troncos. Haciéndose lugar. g+
Imágenes gentileza > g+ / Gualano+Gualano Arquitectos hacer click en las imágenes para ampliarlas |
![]() |
![]() |
![]() |
![]() |
![]() |
![]() |
![]() |
![]() |
![]() |
![]() |
![]() |
![]() |
![]() |
![]() |
![]() |
![]() |
|
Links > g+ / Gualano+Gualano Arquitectos Otras obras: Parador Penitente, Salto del Penitente, Lavalleja - Uruguay / Casa Buceo, Montevideo - Uruguay |
|||
|
|
|
diseño y selección de contenidos >> Arq. A.
Arcuri
|
|
|
|
|
|