Buenos Aires / Argentina

inicio especiales sugerir noticia links newsletter  

especiales > Cabel Industry, Empoli - Italia / Studio Massimo Mariani [20/04/09]

Cabel Industry - Empoli, Italy

Just out the edge of the town of Empoli, the building is the Cabel headquarters (a company producing software systems for banks), it measures 4.500 square meters and it is sited inside the local industrial area.

Partially set into the ground, the building is composed of two extended floors out the ground level and a vault under. Along the main front the facade is protected by a long slice of public green.

The visitor arrives on the ground level through three suspended bridges launched on a large excavation which lights the vault designed to house expositions and art installations. Night time this empty space becomes a lighting pool which raises architecture from the ground.

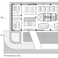
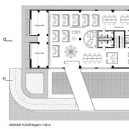
The underground floor hold a printing house and an open-spaces designed for various initiatives; the ground floor interiors are conceptualized as many kind of glass spaces in a modern interaction of liquid working areas like acquarium. On the upper floor there are directional bureaus and representative offices with a patio and terrace. The elevators and distributional stairs take up the middle section of the structural grid, made of stone tiles with steel elevators.

Everything comes out from a single sign: architectural global shape, fastenings, entrance cuts, furniture handles and decorations.

During the day coloured glass create liquid chromatic effects inside black and white offices, instead of night time when coloured cuts project out vivid lighting effects underlining holes, cuts and shapes of the building.

The building is made of precast concrete elements with aluminium cladding on the roof and rounded facades.

Roof cladding hide photovoltaic systems producing 150Kw, so the building is energetically self-sufficient.


Imágenes gentileza > Studio Massimo Mariani

hacer click en las imágenes para ampliarlas

Links >

Studio Massimo Mariani

 

diseño y selección de contenidos >> Arq. A. Arcuri